札幌市中央区北一条西28丁目
札幌市営東西線 円山公園駅 徒歩4分
3LDK / 79.1㎡
1998年02月築
4,480万円



| 物件種別 | 中古マンション |
| 所在地 | GoogleMaps |
| 交通 | |
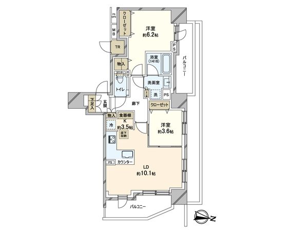
| 間取り | 2LDK |
| 専有面積 | 59.33㎡(約17.94坪) |
| 築年月 | 2019年12月築 |
| 階数 / 階建 | 8階 / 地上15階建 |
| 向き | 東 |
予約制内覧会を開催します!
| 開催日 | 5月23日(土)11:00 ~ 16:00 5月24日(日)11:00 ~ 16:00 |
|---|
-物件のおすすめポイント- ▼立地 ○ 地下鉄東西線「西11丁目」駅 徒歩6分 ○ 札幌市電「中央区役所前」駅 徒歩8分 ○ ダブルアクセス可能 ▼マンションの特徴 ○ 令和元年12月築 ○ ペット飼育可能(飼育細則有り) ▼お部屋の特徴 ○ 専有面積 59.33平米 ○ バルコニー面積 11.62平米 ○ 東・北向き2LDK、二面バルコニー ○ 二面採光のリビング ○ 空間を有効に活用できるアウトフレーム工法 ▼設備 ○ お料理のしやすい食器洗い乾燥機付きのL字型キッチン ○ 全居室に収納有り ○ すっきり片付く鏡裏収納付きの三面鏡洗面化粧台 ○ 浴室テレビ・換気暖房乾燥機付き ○ フルオートバス ○ 暖房・給湯は省エネの「Fact」システム ○ 気密性・断熱性に優れた二重サッシ ○ 住戸玄関横にトランクルーム(使用料無償) ○ 24時間安心のセコムマンションセキュリティシステム採用 ■ ご希望の住まい探しをお手伝いします ━━━━━・・・ 物件の詳細・ご相談はお気軽にお問い合わせください。
| 所在地 | GoogleMaps |
| 価格 | 4,480万円 |
| 交通 | |
| 管理費等 | 8,600円 |
| 修繕積立金 | 7,360円 |
| その他費用 | 町内会費 1,800円 / 年 |
| 間取り | 2LDK |
| 専有面積 | 59.33㎡(約17.94坪) |
| 築年月 | 2019年12月築 |
| 階数 / 階建 | 8階 / 地上15階建 |
| 向き | 東 |
| バルコニー | 11.62㎡ |
| 現況 | 空家 |
| 駐車場 | 空き無 |
| 建物構造 | 鉄筋コンクリート造 |
| 総戸数 | 49戸 |
| 管理会社 | (株)レーベンコミュニティ |
| 管理形態 | 管理会社に全部委託 |
| 管理員の 勤務形態 | 日勤 |
| 土地権利 | 所有権 |
| 分譲会社 | (株)タカラレーベン (新築分譲時における売主) |
| 施工会社 | 飛島建設(株) |
| 設計会社 | (株)KS設計室 |
| 備考 | 専有面積にトランクルーム面積(0.94平米)を含みます。 |
| 引渡時期 | 相談 |
| 取引態様 | 仲介 |
| 更新日 | 2026年05月10日 |
| 次回更新予定 | 2026年05月24日 |
| 物件番号 | FC1BDA05 |
最新のAI技術を活用した相談サービスです。
お客様一人ひとりのニーズに合わせて最適な情報をご提供します。
リハウスAIチャットの詳しい説明はこちら
GoogleMaps
| スーパー | まいばすけっと北2条西14丁目店 約240m(徒歩3分) |
| スーパー | コープさっぽろ植物園店 約720m(徒歩9分) |
| 公園 | 大通公園 約190m(徒歩3分) |
| 病院 | きゅうま内科循環器クリニック 約590m(徒歩8分) |
| 小学校 | 資生館小学校 約1370m(徒歩18分) |
| 中学校 | 中央中学校 約2340m(徒歩30分) |
| その他利便施設1 | ツルハドラッグ西線店 約930m(徒歩12分) |
| その他利便施設2 | セブンイレブン札幌北2条西13丁目店 約270m(徒歩4分) |
| その他利便施設3 | 札幌北一条郵便局 約340m(徒歩5分) |
三井不動産リアルティ札幌株式会社
北海道知事石狩(8)第5813号
0120-312-440
0120-312-440
物件の売却をご検討の方は、 はやめの査定依頼がおすすめです!
買い替えをご検討の方はこちら0120-312-440

