ガーデンハウス本郷通南
2,690万円



| 物件種別 | 中古マンション |
| 所在地 | GoogleMaps |
| 交通 | 札幌市営東西線 南郷7丁目駅 徒歩4分 |
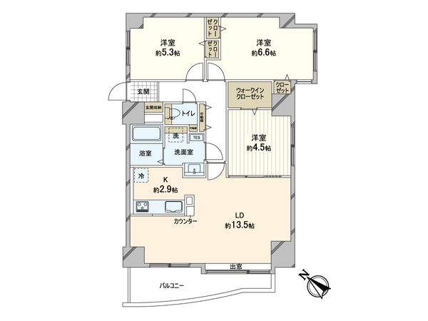
| 間取り | 3LDK |
| 専有面積 | 72.11㎡(約21.81坪) |
| 築年月 | 1994年09月築 |
| 階数 / 階建 | 2階 / 地上11階建 |
| 向き | 南西 |
この物件情報を共有する
毎月のお支払い目安
返済計画を入力すると毎月のお支払い目安を表示できます
- ローン75,935円
- 管理費+修繕積立金19,500円
- その他費用0円
おすすめポイント
設備
- オートロック
-物件のおすすめポイント- ▼立地 ・地下鉄東西線「南郷7丁目」駅 徒歩4分 ▼マンションの特徴 ・平成6年9月築 ・鉄骨鉄筋コンクリート造地上11階建て ・オートロック ▼お部屋の特徴 ・専有面積:約72.11平米(約21.81坪) ・バルコニー面積:7.64平米(約2.31坪) ・南西向き ・2階部分 ・3LDK ・LDKは約16.4帖 ・対面式キッチン ・ウォークインクローゼット有り ▼リフォーム内容(2025年8月完了) ・システムキッチン交換 ・ユニットバス交換(浴室換気乾燥機付き) ・洗面化粧台交換 ・洗浄便座付きトイレ交換 ・壁、天井クロス貼替 ・フローリング貼替 ・クッションフロア、フロアタイル張替 ・エアフープ設置 ・パイプファン交換(約5.3帖の洋室、約6.6帖の洋室) ・建具一部交換 ・玄関収納交換 ・照明器具設置 ・分電盤交換 ・インナーサッシ一部交換(約4.5帖の洋室) ・コート掛け設置
バーチャルオープンハウス
室内を内覧しているように物件を見学することができます。
リノベーション&リフォーム情報
全室クロス/壁紙貼り替え | 台所(キッチン)交換 |
バスルーム交換 | トイレ交換 |
洗面化粧台交換 | 床貼り替え |
扉交換 |
水回り(キッチン、浴室、トイレ、洗面所)(2025年8月)
内装(全室クロス、床、壁、建具)(2025年8月)
物件情報
| 所在地 | GoogleMaps |
| 価格 | 2,690万円 |
| 交通 | 札幌市営東西線 南郷7丁目駅 徒歩4分 |
| 管理費等 | 9,400円 |
| 修繕積立金 | 10,100円 |
| その他費用 | - |
| 間取り | 3LDK |
| 専有面積 | 72.11㎡(約21.81坪) |
| 築年月 | 1994年09月築 |
| 階数 / 階建 | 2階 / 地上11階建 |
| 向き | 南西 |
| バルコニー | 7.64㎡ |
| 現況 | 空家 |
| 駐車場 | 敷地内有 (賃貸) 空き:1台有り 月額 11,000円 (確認日:西暦2025年11月07日現在) |
| 建物構造 | 鉄骨鉄筋コンクリート造 |
| 総戸数 | 30戸 |
| 管理会社 | (株)日動 |
| 管理形態 | 管理会社に一部委託 |
| 管理員の 勤務形態 | 日勤 |
| 土地権利 | 所有権 |
| 分譲会社 | (株)日動 (新築分譲時における売主) |
| 施工会社 | (株)熊谷組 |
| 設計会社 | (株)荒川建築設計事務所 |
| 備考 | - |
| 引渡時期 | 即時 |
| 取引態様 | 仲介 |
| 更新日 | 2025年11月09日 |
| 次回更新予定 | 2025年11月23日 |
| 物件番号 | FC2AUA0A |
周辺情報
GoogleMaps
| スーパー | まいばすけっと南郷通7丁目北店 約250m(徒歩4分) |
| スーパー | コープさっぽろほんどおり店 約280m(徒歩4分) |
| 公園 | みどり公園 約230m(徒歩3分) |
| 病院 | 幌東病院 約130m(徒歩2分) |
| 小学校 | 本郷小学校 約750m(徒歩10分) |
| 中学校 | 白石中学校 約420m(徒歩6分) |
| その他利便施設1 | ツルハドラッグ白石本通店 約1040m(徒歩13分) |
| その他利便施設2 | ローソン札幌本郷通七丁目店 約140m(徒歩2分) |
| その他利便施設3 | 白石本郷郵便局 約370m(徒歩5分) |
取扱店舗
- 営業時間
- 10:00~18:00
- 定休日
- 毎週火曜日・水曜日
- 住所
- 北海道札幌市白石区南郷通1丁目南8-10 白石ガーデンプレイス1階
三井不動産リアルティ札幌株式会社
北海道知事石狩(8)第5813号
三井のリハウス 札幌白石センター
- 営業時間10:00~18:00
- 定休日毎週火曜日・水曜日
0120-074-131
あなたへのおすすめ
札幌市白石区の物件情報
この物件を見学してみませんか?
この物件についてお問い合わせ
物件・住環境の詳しい情報、購入・ローン相談など、ささいなことでもお気軽にお問い合わせください。三井のリハウス 札幌白石センター
- 営業時間10:00~18:00
- 定休日毎週火曜日・水曜日
0120-074-131

物件の売却をご検討の方は、 はやめの査定依頼がおすすめです!
買い替えをご検討の方はこちら見学予約
お問い合わせ
0120-074-131
- 営業時間 10:00~18:00
- 定休日 毎週火曜日・水曜日









