品川区小山3丁目
東急目黒線 武蔵小山駅 徒歩3分
2LDK / 53.08㎡
2008年06月築
15,300万円



| 物件種別 | 中古マンション |
| 所在地 | GoogleMaps |
| 交通 | |
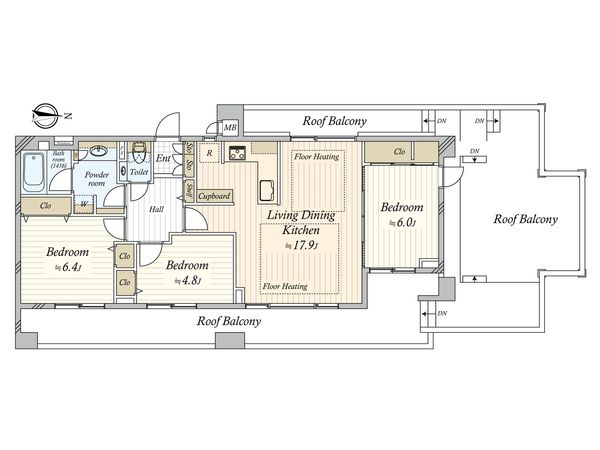
| 間取り | 3LDK |
| 専有面積 | 79.66㎡(約24.09坪) |
| 築年月 | 1996年10月築 |
| 階数 / 階建 | 7階 / 地上7階 地下1階建 |
| 向き | 東 |
■ アクセス ━━━━━━━━━━━━━━━・・・・・ ○ 東急池上線「荏原中延」駅 徒歩6分 ○ 東急大井町線「荏原町」駅 徒歩8分 ○ 東急大井町線・東急池上線「旗の台」駅 徒歩9分 ○ 東急大井町線・都営浅草線「中延」駅 徒歩10分 ■ おすすめポイント ━━━━━━━━━━━━━━━・・・・・ ○ 4駅3路線利用可能で、通勤通学に便利 ○ 専有面積79.66平米、3LDKタイプのお部屋 ○ 最上階7階部分、角部屋につき眺望・通風良好 ○ 約2.8m~約3.2mの曲面天井と両面開口の明るいリビング ○ 広々としたルーフバルコニー付き ○ 全居室収納付き ○ 不在時に便利な宅配ボックスあり ○ 快適な暮らしを守るオートロック付き ○ 昭和大学病院まで徒歩6分(約430m) ○ 延山小学校まで徒歩2分(約110m) ■ 2026年4月リフォーム完成予定 ○ フローリング張替、クロス貼替、給湯器交換 ○ キッチン交換、ユニットバス交換、洗面化粧台交換 ○ トイレ交換、ハウスクリーニング等 リフォーム中もご内覧可能です。
| 所在地 | GoogleMaps |
| 価格 | 15,300万円 |
| 交通 | |
| 管理費等 | 13,200円 |
| 修繕積立金 | 15,900円 |
| その他費用 | - |
| 間取り | 3LDK |
| 専有面積 | 79.66㎡(約24.09坪) |
| 築年月 | 1996年10月築 |
| 階数 / 階建 | 7階 / 地上7階 地下1階建 |
| 向き | 東 |
| バルコニー | - |
| ルーフバルコニー | 60.12㎡ |
| 現況 | 空家 |
| 駐車場 | - |
| 建物構造 | 鉄筋コンクリート造 |
| 総戸数 | 49戸 |
| 管理会社 | 日本ハウズイング(株) |
| 管理形態 | 管理会社に全部委託 |
| 管理員の 勤務形態 | 日勤 |
| 土地権利 | 所有権 |
| 分譲会社 | 三翔開発(株) (新築分譲時における売主) |
| 施工会社 | (株)竹中工務店 |
| 備考 | - |
| 引渡時期 | 相談 |
| 取引態様 | 仲介 |
| 更新日 | 2026年04月22日 |
| 次回更新予定 | 2026年05月06日 |
| 物件番号 | FEUAWA04 |
最新のAI技術を活用した相談サービスです。
お客様一人ひとりのニーズに合わせて最適な情報をご提供します。
リハウスAIチャットの詳しい説明はこちら
GoogleMaps
| スーパー | まいばすけっと西中延3丁目店 約330m(徒歩5分) |
| 公園 | 荏原南公園 約520m(徒歩7分) |
| 病院 | 昭和大学病院 約430m(徒歩6分) |
| 小学校 | 品川区立延山小学校 約110m(徒歩2分) |
| 中学校 | 品川区立荏原平塚学園 約930m(徒歩12分) |
| その他利便施設1 | ローソン昭和大学東病院店 約310m(徒歩4分) |
| その他利便施設2 | ファーマーみらい共創未来 旗の台薬局 約240m(徒歩3分) |
| その他利便施設3 | 荏原郵便局 約500m(徒歩7分) |
0120-926-613
0120-926-613
物件の売却をご検討の方は、 はやめの査定依頼がおすすめです!
買い替えをご検討の方はこちら0120-926-613

