福岡市中央区草香江2丁目
地下鉄七隈線 六本松駅 徒歩4分
3LDK / 70.58㎡
2000年02月築
8,680万円



| 物件種別 | 中古マンション |
| 所在地 | GoogleMaps |
| 交通 | 地下鉄七隈線 六本松駅 徒歩3分 |
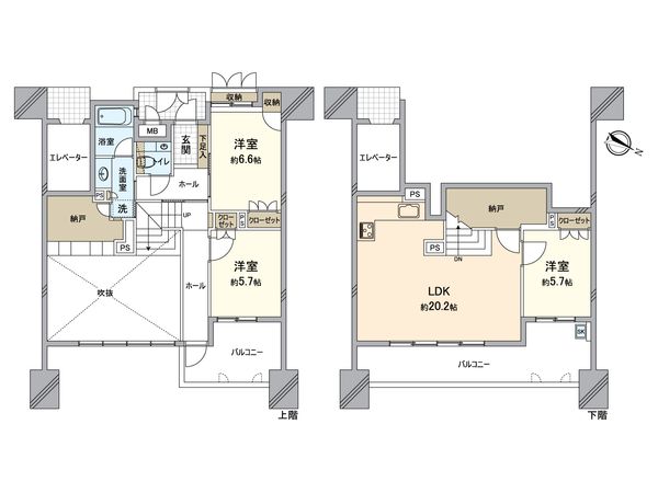
| 間取り | 3SLDK ※S・サービススペースは納戸です |
| 専有面積 | 92.1㎡(約27.86坪) |
| 築年月 | 2001年11月築 |
| 階数 / 階建 | 3階 / 地上14階建 |
| 向き | 北東 |
-物件のおすすめポイント- ▼立地 ・地下鉄七隈線『六本松』駅徒歩3分 ・西鉄バス『六本松二丁目』停徒歩1分 ▼マンションの特徴 ・積水ハウス旧分譲マンション ・ペット飼育可(規約による制限有り) ・駐車場利用可(令和8年4月16日現在、5区画空有り) ▼お部屋の特徴 ・92.10平米、3LDK ・開放的な吹き抜けが特徴のメゾネットタイプ ・豊富な収納量 ・約16.1帖のリビングダイニング ・階下に別住戸が無く物音などの心配が軽減できます ▼設備 ・床暖房有り(LD部分) ・玄関ポーチ有り ・駐車場はチェーンゲート付き ・宅配ボックス有り ・オートロックシステム ・テレビモニタ付きインターホン ▼リフォーム内容(令和8年5月上旬完了予定) ・クロス張替え ・ハウスクリーニング ▼周辺環境 ・草ヶ江小学校徒歩5分、大濠公園まで徒歩10分と子育てがしやすい生活環境です。 ・福岡のランドマークの大濠公園も徒歩圏で、お散歩やジョギングも楽しめます。 ■ご希望の住まい探しをお手伝いします 物件の詳細・ご相談はお気軽にお問い合わせください
| 所在地 | GoogleMaps |
| 価格 | 8,680万円 |
| 交通 | 地下鉄七隈線 六本松駅 徒歩3分 |
| 管理費等 | 13,080円 |
| 修繕積立金 | 27,400円 |
| その他費用 | - |
| 間取り | 3SLDK ※S・サービススペースは納戸です |
| 専有面積 | 92.1㎡(約27.86坪) |
| 築年月 | 2001年11月築 |
| 階数 / 階建 | 3階 / 地上14階建 |
| 向き | 北東 |
| バルコニー | 24.53㎡ |
| 現況 | 空家 |
| 駐車場 | 敷地内有 (賃貸) 空き:5台有り 月額 10,500円〜18,000円 (確認日:西暦2026年04月16日現在) |
| 建物構造 | 鉄骨鉄筋コンクリート造 |
| 総戸数 | 37戸 |
| 管理会社 | 住友不動産建物サービス(株) |
| 管理形態 | 管理会社に全部委託 |
| 管理員の 勤務形態 | 日勤 |
| 土地権利 | 所有権 |
| 分譲会社 | 積水ハウス(株) (新築分譲時における売主) |
| 施工会社 | 三菱建設・西部建設共同企業体 |
| 設計会社 | 積水ハウス(株)、(株)安藤設計 |
| 備考 | 【その他費用】 町内会費 月額:300円 |
| 引渡時期 | 2026年05月上旬以降 |
| 取引態様 | 仲介 |
| 更新日 | 2026年04月18日 |
| 次回更新予定 | 2026年05月02日 |
| 物件番号 | FG3BDA0C |
最新のAI技術を活用した相談サービスです。
お客様一人ひとりのニーズに合わせて最適な情報をご提供します。
リハウスAIチャットの詳しい説明はこちら
GoogleMaps
| スーパー | サニー別府店 約460m(徒歩6分) |
| 公園 | 六本松公園 約260m(徒歩4分) |
| 病院 | 福岡みつき病院 約380m(徒歩5分) |
| 小学校 | 草ケ江小学校 約190m(徒歩3分) |
| 中学校 | 城西中学校 約860m(徒歩11分) |
| その他利便施設1 | ローソン六本松店 約250m(徒歩4分) |
| その他利便施設2 | ドラッグイレブン六本松店 約200m(徒歩3分) |
| その他利便施設3 | 西日本シティ銀行六本松支店 約180m(徒歩3分) |
| その他利便施設4 | 福岡六本松郵便局 約160m(徒歩2分) |
三井不動産リアルティ九州株式会社
国土交通大臣(2)第009717号
0120-922-631
0120-922-631
物件の売却をご検討の方は、 はやめの査定依頼がおすすめです!
買い替えをご検討の方はこちら0120-922-631

