春日市下白水北5丁目
博多南線 博多南駅 バス10分 泉 停歩5分
4LDK / 77.76㎡
2005年10月築
3,090万円



| 物件種別 | 中古マンション |
| 所在地 | GoogleMaps |
| 交通 | |
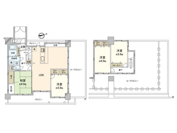
| 間取り | 4LDK |
| 専有面積 | 99.88㎡(約30.21坪) |
| 築年月 | 1996年12月築 |
| 階数 / 階建 | 6階 / 地上7階建 |
| 向き | 南東 |
予約制内覧会を開催します!
| 開催日 | 4月25日(土)11:00 ~ 17:00 4月26日(日)11:00 ~ 17:00 5月9日(土)11:00 ~ 17:00 5月10日(日)11:00 ~ 17:00 5月16日(土)11:00 ~ 17:00 |
|---|
ー物件のおすすめポイントー ▼立地 ・JR博多南線 博多南駅までバスで10分、 西鉄バス 泉 停まで徒歩7分 ▼お部屋の特徴 ・最上階につき眺望・日当たり良好 ・南東・北東・北西の角部屋、3面バルコニー ・専有面積約99.88平米の4LDK ・メゾネットタイプ ・1階・2階にはルーフバルコニーあり ・敷地内駐車場承継可能(月額:9,000円) ▼2026年3月リフォーム済 ・壁・天井クロス貼替(全室) ・CFシート貼替(洗面室、トイレ) ・畳表替え、障子貼替 ■ ご希望のお住まい探しをお手伝いします ━━━━━━━━━━━━━━━・・・・・ 物件の詳細・ご相談はお気軽にお問い合わせください。
| 所在地 | GoogleMaps |
| 価格 | 3,090万円 |
| 交通 | |
| 管理費等 | 8,980円 |
| 修繕積立金 | 20,970円 |
| その他費用 | - |
| 間取り | 4LDK |
| 専有面積 | 99.88㎡(約30.21坪) |
| 築年月 | 1996年12月築 |
| 階数 / 階建 | 6階 / 地上7階建 |
| 向き | 南東 |
| バルコニー | 17.58㎡ |
| ルーフバルコニー | 67.98㎡ |
| 現況 | 空家 |
| 駐車場 | 敷地内有 (賃貸) 空き:1台有り 月額 7,000円〜9,000円 (確認日:西暦2026年01月15日現在) |
| 建物構造 | 鉄筋コンクリート造 |
| 総戸数 | 22戸 |
| 管理会社 | (株)タッケン管理サービス |
| 管理形態 | 管理会社に全部委託 |
| 管理員の 勤務形態 | 巡回 |
| 土地権利 | 所有権 |
| 分譲会社 | 泰平建設(株) (新築分譲時における売主) |
| 施工会社 | 不明 |
| 設計会社 | (株)アームスデザイン&デベロップ |
| 備考 | 【その他費用】 ルーフバルコニー使用料:月額1,020円 |
| 引渡時期 | 相談 |
| 取引態様 | 仲介 |
| 更新日 | 2026年04月16日 |
| 次回更新予定 | 2026年04月30日 |
| 物件番号 | FGABAA07 |
最新のAI技術を活用した相談サービスです。
お客様一人ひとりのニーズに合わせて最適な情報をご提供します。
リハウスAIチャットの詳しい説明はこちら
GoogleMaps
| スーパー | ルミエール春日店 約320m(徒歩4分) |
| 公園 | 下白水第2公園 約460m(徒歩6分) |
| 小学校 | 春日西小学校 約590m(徒歩8分) |
| 中学校 | 春日西中学校 約990m(徒歩13分) |
| その他利便施設1 | ファミリーマート春日下白水店 約580m(徒歩8分) |
| その他利便施設2 | セブンイレブン春日昇町店 約670m(徒歩9分) |
| その他利便施設3 | 春日昇町郵便局 約600m(徒歩8分) |
| その他利便施設4 | 福岡銀行昇町支店 約690m(徒歩9分) |
0120-806-631
0120-806-631
物件の売却をご検討の方は、 はやめの査定依頼がおすすめです!
買い替えをご検討の方はこちら0120-806-631

