伊丹市野間6丁目
阪急神戸線 塚口駅 バス15分 野間 停歩3分
3LDK / 63.85㎡
1993年06月築
1,380万円



| 物件種別 | 中古マンション |
| 所在地 | GoogleMaps |
| 交通 | |
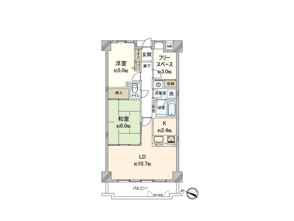
| 間取り | 2SLDK ※S・サービススペースは納戸です |
| 専有面積 | 59.12㎡(約17.88坪) |
| 築年月 | 1994年08月築 |
| 階数 / 階建 | 2階 / 地上7階建 |
| 向き | 西 |
■ おすすめポイント ━━━━━━━━━━━━・・・・・ 〇 JR福知山線「中山寺」駅徒歩23分 〇 59.12平米・2SLDK 〇 オートロック付 〇 各階エレベーター停止 〇 近隣スーパーまで徒歩2分
| 所在地 | GoogleMaps |
| 価格 | 1,380万円 |
| 交通 | |
| 管理費等 | 8,600円 |
| 修繕積立金 | 15,880円 |
| その他費用 | - |
| 間取り | 2SLDK ※S・サービススペースは納戸です |
| 専有面積 | 59.12㎡(約17.88坪) |
| 築年月 | 1994年08月築 |
| 階数 / 階建 | 2階 / 地上7階建 |
| 向き | 西 |
| バルコニー | 7.68㎡ |
| 現況 | 空家 |
| 駐車場 | 敷地内有 (賃貸) 空き:1台有り 月額 8,000円 (確認日:西暦2025年04月02日現在) |
| 建物構造 | 鉄筋コンクリート造 |
| 総戸数 | 67戸 |
| 管理会社 | (株)東急コミュニティ |
| 管理形態 | 管理会社に全部委託 |
| 管理員の 勤務形態 | 日勤 |
| 土地権利 | 所有権 |
| 分譲会社 | 東昌建設(株) (新築分譲時における売主) |
| 施工会社 | 大末建設(株) |
| 設計会社 | (株)創美設計 |
| 備考 | 修繕積立金の改定予定有 2027年1月より316円/平米 |
| 引渡時期 | 相談 |
| 取引態様 | 仲介 |
| 更新日 | 2026年05月15日 |
| 次回更新予定 | 2026年05月29日 |
| 物件番号 | FKABCA0F |
最新のAI技術を活用した相談サービスです。
お客様一人ひとりのニーズに合わせて最適な情報をご提供します。
リハウスAIチャットの詳しい説明はこちら
GoogleMaps
| スーパー | 万代伊丹荒牧店 約160m(徒歩2分) |
| 小学校 | 天神川小学校 約150m(徒歩2分) |
| 中学校 | 荒牧中学校 約670m(徒歩9分) |
| その他利便施設1 | JR福知山線「中山寺」駅 約1840m(徒歩23分) |
| その他利便施設2 | 伊丹駅(阪急 伊丹線) 約4200m(徒歩53分) |
0120-923-631
0120-923-631
物件の売却をご検討の方は、 はやめの査定依頼がおすすめです!
買い替えをご検討の方はこちら0120-923-631

