名古屋市天白区御幸山
名古屋市鶴舞線 塩釜口駅 徒歩13分
2LDK / 138.72㎡
2006年03月築
3,780万円



| 物件種別 | 中古マンション |
| 所在地 | GoogleMaps |
| 交通 | |
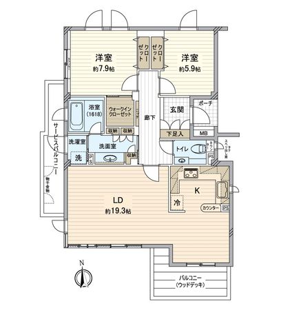
| 間取り | 2LDK |
| 専有面積 | 90.23㎡(約27.29坪) |
| 築年月 | 2001年01月築 |
| 階数 / 階建 | 2階 / 地上3階 地下1階建 |
| 向き | 南 |
〇地下鉄名城線・鶴舞線「八事」駅利用可能 〇ペット飼育可能(規約有) 〇令和4年6月リフォーム実施 ・全室クロス貼り替え ・給湯器交換 ・キッチン(オーブン付きコンロ・レンジフード)交換 ・トイレ交換 ・網戸、アコーディオン網戸交換 〇エントランスの隣に全戸分のトランクルームを設置 〇屋根付き・電動リモコンシャッター有りの平面駐車場 〇内廊下で、各階のエレベーターホールにエアコン設置 〇宅配ボックス設置 〇床暖房付、19帖超えの広々リビングダイニング 〇高台に位置し、眺望・日当たり良好 〇全居室複層ガラス(UVカットフィルム有) 〇ワンフロア2邸
| 所在地 | GoogleMaps |
| 価格 | 3,780万円 |
| 交通 | |
| 管理費等 | 28,500円 |
| 修繕積立金 | 14,600円 |
| その他費用 | トランクルーム 1,400円 / 月 |
| 間取り | 2LDK |
| 専有面積 | 90.23㎡(約27.29坪) |
| 築年月 | 2001年01月築 |
| 階数 / 階建 | 2階 / 地上3階 地下1階建 |
| 向き | 南 |
| バルコニー | 14.98㎡ |
| 現況 | 空家 |
| 駐車場 | 敷地内有 (所有権) 空き:1台有り 月額 5,000円 (確認日:西暦2025年10月30日現在) |
| 建物構造 | 鉄筋コンクリート造 |
| 総戸数 | 6戸 |
| 管理会社 | 積村ビル管理株式会社 |
| 管理形態 | 管理会社に全部委託 |
| 管理員の 勤務形態 | 巡回 |
| 土地権利 | 所有権 |
| 分譲会社 | 積水ハウス株式会社 (新築分譲時における売主) |
| 施工会社 | 前田建設工業株式会社 |
| 設計会社 | 積水ハウス株式会社 |
| 備考 | - |
| 引渡時期 | 相談 |
| 取引態様 | 仲介 |
| 更新日 | 2026年04月30日 |
| 次回更新予定 | 2026年05月14日 |
| 物件番号 | FKZASA05 |
最新のAI技術を活用した相談サービスです。
お客様一人ひとりのニーズに合わせて最適な情報をご提供します。
リハウスAIチャットの詳しい説明はこちら
GoogleMaps
| スーパー | フランテロゼ八事 約750m(徒歩10分) |
| スーパー | ファミリーマート八事弥生が岡店 約780m(徒歩10分) |
| 公園 | 御幸山西公園 約230m(徒歩3分) |
| 病院 | あだちクリニック 約360m(徒歩5分) |
| 小学校 | 表山小学校 約910m(徒歩12分) |
| 中学校 | 御幸山中学校 約640m(徒歩8分) |
| その他利便施設1 | ドラッグスギヤマ八事石坂店 約800m(徒歩10分) |
| その他利便施設2 | イオン八事店 約720m(徒歩9分) |
0120-321-834
リノベーション工事の可能範囲については、本物件の管理組合規約等により一定の制限が加わる場合がございます。詳細については、工事内容の確定後に判明する部分もありますので、この点については事前にお含みおきください。
リノベーションに関するお問い合わせ0120-321-834
物件の売却をご検討の方は、 はやめの査定依頼がおすすめです!
買い替えをご検討の方はこちら0120-321-834

