北区滝野川6丁目
都営三田線 西巣鴨駅 徒歩5分
1LDK / 45.23㎡
2012年03月築
5,998万円



| 物件種別 | 中古マンション |
| 所在地 | GoogleMaps |
| 交通 | |
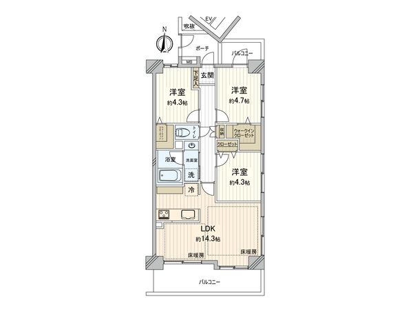
| 間取り | 2LDK |
| 専有面積 | 56.26㎡(約17.01坪) |
| 築年月 | 1999年01月築 |
| 階数 / 階建 | 9階 / 地上14階建 |
| 向き | 西 |
-物件のおすすめポイント- ▼立地 ・都営三田線「新板橋」駅 徒歩3分 ・JR埼京線「板橋」駅 徒歩7分 ・東武東上線「下板橋」駅 徒歩12分 ・再開発が進む板橋駅エリア ▼マンションの特徴 ・安心のオートロックシステム ・ペット飼育可能(細則あり) ▼お部屋の特徴 ・ご家族との対話が楽しめる対面式キッチン ・全居室収納有 ・1416サイズのユニットバス ・LDK部分に床暖房有 ・不在時に便利な宅配ロッカー ▼リフォーム内容(2026年3月完了) ・システムキッチン交換 ・ユニットバス交換 ・洗面化粧台交換 ・トイレ交換 ・洗濯機用防水パン交換 等 ■ご希望の住まい探しをお手伝いします ━━━━━・・・ 物件の詳細・ご相談はお気軽にお問い合わせください。
| 所在地 | GoogleMaps |
| 価格 | 5,998万円 |
| 交通 | |
| 管理費等 | 7,300円 |
| 修繕積立金 | 11,310円 |
| その他費用 | - |
| 間取り | 2LDK |
| 専有面積 | 56.26㎡(約17.01坪) |
| 築年月 | 1999年01月築 |
| 階数 / 階建 | 9階 / 地上14階建 |
| 向き | 西 |
| バルコニー | 9.49㎡ |
| 現況 | 空家 |
| 駐車場 | - |
| 建物構造 | 鉄骨鉄筋コンクリート造 |
| 総戸数 | 95戸 |
| 管理会社 | (株)大京アステージ |
| 管理形態 | 管理会社に全部委託 |
| 管理員の 勤務形態 | 日勤 |
| 土地権利 | 旧法借地権(賃借権) 借地期間・借地料(月額) 2057年03月まで 1,191円 |
| 分譲会社 | (株)大京 (新築分譲時における売主) |
| 施工会社 | 日本国土開発(株) |
| 備考 | - |
| 引渡時期 | 相談 |
| 取引態様 | 仲介 |
| 更新日 | 2026年04月13日 |
| 次回更新予定 | 2026年04月27日 |
| 物件番号 | FLGBGA20 |
最新のAI技術を活用した相談サービスです。
お客様一人ひとりのニーズに合わせて最適な情報をご提供します。
リハウスAIチャットの詳しい説明はこちら
GoogleMaps
| スーパー | コープ板橋駅前店 約370m(徒歩5分) |
| スーパー | ビッグ・エー豊島上池袋店 約1200m(徒歩15分) |
| スーパー | まいばすけっと滝野川6丁目店 約210m(徒歩3分) |
| 公園 | 板橋区立板橋駅前公園 約560m(徒歩7分) |
| 病院 | 帝京大学医学部附属病院 約1800m(徒歩23分) |
| 小学校 | 北区立谷端小学校 約460m(徒歩6分) |
| 中学校 | 滝野川紅葉中学校 約510m(徒歩7分) |
| その他利便施設1 | セブンイレブン北区滝野川6丁目店 約220m(徒歩3分) |
| その他利便施設2 | どらっぐぱぱす板橋1丁目店 約250m(徒歩4分) |
| その他利便施設3 | 滝野川六郵便局 約80m(徒歩1分) |
三井不動産リアルティ株式会社
国土交通大臣(15)第777号
0120-995-431
0120-995-431
物件の売却をご検討の方は、 はやめの査定依頼がおすすめです!
買い替えをご検討の方はこちら0120-995-431

