コスモ浅草桜橋リバーステージ
6,590万円



| 物件種別 | 中古マンション |
| 所在地 | GoogleMaps |
| 交通 | |
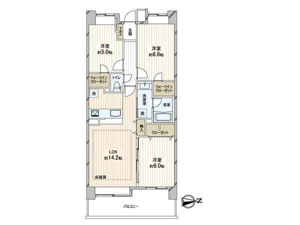
| 間取り | 3LDK |
| 専有面積 | 70.45㎡(約21.31坪) |
| 築年月 | 2000年11月築 |
| 階数 / 階建 | 4階 / 地上15階建 |
| 向き | 東 |
この物件情報を共有する
おすすめポイント
設備
- 床暖房
- 浴室乾燥機
- オートロック
- 食器洗乾燥機
-物件のおすすめポイント- ▼立地 ・東京メトロ日比谷線「南千住」駅 徒歩18分 ・JR常磐線「南千住」駅 徒歩20分 ・つくばエクスプレス「南千住」駅 徒歩20分 ・東武伊勢崎線「浅草」駅 徒歩22分 ・東京メトロ銀座線 「浅草」駅 バス13分 橋場一丁目 バス停歩1分 ▼特徴 ・総戸数129戸の大規模マンション ・不在時に便利な宅配ボックス ・オートロック ・ LD部分には足元を暖めてくれる床暖房付 ・バルコニーから隅田川と東京スカイツリーが望めます(眺望は季節・天候によります) ▼リフォーム内容( 2026年4月実施) ・キッチン交換(食洗機付) ・浴室交換 ・洗面室交換 ・温水洗浄便座付トイレ交換 ・給湯器交換 ・専有部分内配管交換 ・フローリング貼り替え(遮音等級LL40、LD、洋室、廊下) ・フロアタイル貼り替え(玄関、洗面室、トイレ、キッチン) ・クロス貼り替え ・室内クリーニング 他 ■ ご希望の住まい探しをお手伝いします ━━━━━・・・ 物件の詳細・ご相談はお気軽にお問い合わせください。
リノベーション&リフォーム情報
台所(キッチン)交換 | バスルーム交換 |
トイレ交換 | 床貼り替え |
給湯器交換 | 扉交換 |
配管交換 |
水回り(キッチン、浴室、トイレ、給排水管、給湯器)(2026年4月)
内装(床、壁、建具)(2026年4月)
物件情報
| 所在地 | GoogleMaps |
| 価格 | 6,590万円 |
| 交通 | |
| 管理費等 | 8,400円 |
| 修繕積立金 | 17,612円 |
| その他費用 | 口座振替手数料 72円 / 月、町会費 200円 / 月 |
| 間取り | 3LDK |
| 専有面積 | 70.45㎡(約21.31坪) |
| 築年月 | 2000年11月築 |
| 階数 / 階建 | 4階 / 地上15階建 |
| 向き | 東 |
| バルコニー | 12.2㎡ |
| 現況 | 空家 |
| 駐車場 | 敷地内有 (賃貸) 空き:1台有り 月額 23,500円〜24,000円 (確認日:西暦2026年03月24日現在) |
| 建物構造 | 鉄骨鉄筋コンクリート造 |
| 総戸数 | 129戸 |
| 管理会社 | 大和ライフネクスト(株) |
| 管理形態 | 管理会社に全部委託 |
| 管理員の 勤務形態 | 日勤 |
| 土地権利 | 所有権 |
| 分譲会社 | (株)リクルートコスモス 東京支社 (新築分譲時における売主) |
| 備考 | ・室外機置場面積0.80平米 ・大規模修繕工事実施中(令和8年8月完了予定) |
| 引渡時期 | 2026年05月上旬以降 |
| 取引態様 | 仲介 |
| 更新日 | 2026年04月12日 |
| 次回更新予定 | 2026年04月26日 |
| 物件番号 | FLMBGA05 |
この物件のことを
AIに聞いてみませんか?
最新のAI技術を活用した相談サービスです。
お客様一人ひとりのニーズに合わせて最適な情報をご提供します。
リハウスAIチャットの詳しい説明はこちら

周辺情報
GoogleMaps
| スーパー | オーケー橋場店 約190m(徒歩3分) |
| スーパー | まいばすけっと清川2丁目店 約680m(徒歩9分) |
| 公園 | 区立石浜公園 約600m(徒歩8分) |
| 病院 | 浅草病院 約330m(徒歩5分) |
| 小学校 | 台東区立石浜小学校 約490m(徒歩7分) |
| 中学校 | 台東区立桜橋中学校 約580m(徒歩8分) |
| その他利便施設1 | ローソン橋場二丁目店 約180m(徒歩3分) |
| その他利便施設2 | セブンイレブン台東石浜店 約380m(徒歩5分) |
| その他利便施設3 | くすりの福太郎橋場店 約470m(徒歩6分) |
| その他利便施設4 | 台東清川郵便局 約370m(徒歩5分) |
取扱店舗
- 営業時間
- 10:00~18:00
- 定休日
- 毎週火曜日・水曜日
- 住所
- 東京都荒川区南千住7丁目1-1 ブランズタワー南千住1F
三井不動産リアルティ株式会社
国土交通大臣(15)第777号
三井のリハウス 南千住センター
- 営業時間10:00~18:00
- 定休日毎週火曜日・水曜日
0120-959-831
あなたへのおすすめ
台東区の物件情報
この物件を見学してみませんか?
この物件についてお問い合わせ
物件・住環境の詳しい情報、購入・ローン相談など、ささいなことでもお気軽にお問い合わせください。三井のリハウス 南千住センター
- 営業時間10:00~18:00
- 定休日毎週火曜日・水曜日
0120-959-831

物件の売却をご検討の方は、 はやめの査定依頼がおすすめです!
買い替えをご検討の方はこちら見学予約
お問い合わせ
0120-959-831
- 営業時間 10:00~18:00
- 定休日 毎週火曜日・水曜日









