東村山市栄町1丁目
西武新宿線 久米川駅 徒歩3分
3LDK / 66.69㎡
1995年11月築
3,490万円



| 物件種別 | 中古マンション |
| 所在地 | GoogleMaps |
| 交通 | |
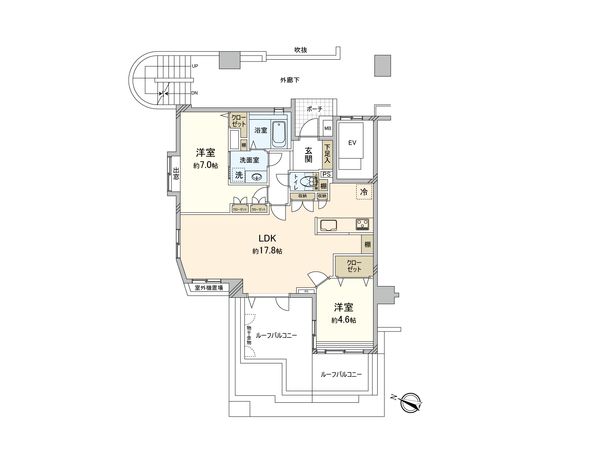
| 間取り | 2LDK |
| 専有面積 | 65.49㎡(約19.81坪) |
| 築年月 | 2002年10月築 |
| 階数 / 階建 | 6階 / 地上9階建 |
| 向き | 西 |
返済計画を入力すると毎月のお支払い目安を表示できます
| 所在地 | GoogleMaps |
| 価格 | 3,490万円 |
| 交通 | |
| 管理費等 | 9,800円 |
| 修繕積立金 | 21,000円 |
| その他費用 | - |
| 間取り | 2LDK |
| 専有面積 | 65.49㎡(約19.81坪) |
| 築年月 | 2002年10月築 |
| 階数 / 階建 | 6階 / 地上9階建 |
| 向き | 西 |
| バルコニー | - |
| ルーフバルコニー | 14.58㎡ |
| 現況 | 空家 |
| 駐車場 | 空き無 |
| 建物構造 | 鉄筋コンクリート造 |
| 総戸数 | 30戸 |
| 管理会社 | 日本ハウズイング(株) |
| 管理形態 | 管理会社に全部委託 |
| 管理員の 勤務形態 | 日勤 |
| 土地権利 | 所有権 |
| 分譲会社 | (株)藤和ハウス (新築分譲時における売主) |
| 施工会社 | (株)志多組 |
| 設計会社 | (株)フォルム建築計画研究所 |
| 備考 | - |
| 引渡時期 | 即時 |
| 取引態様 | 仲介 |
| 更新日 | 2026年01月11日 |
| 次回更新予定 | 2026年01月25日 |
| 物件番号 | FM9BAA08 |
最新のAI技術を活用した相談サービスです。
お客様一人ひとりのニーズに合わせて最適な情報をご提供します。
リハウスAIチャットの詳しい説明はこちら
0120-00-4131
0120-00-4131
物件の売却をご検討の方は、 はやめの査定依頼がおすすめです!
買い替えをご検討の方はこちら0120-00-4131

