相模原市中央区東淵野辺5丁目
横浜線 古淵駅 徒歩17分
3LDK / 66.19㎡
2002年11月築
2,970万円



| 物件種別 | 中古マンション |
| 所在地 | GoogleMaps |
| 交通 | 相模線 南橋本駅 徒歩4分 |
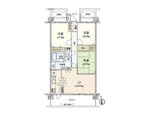
| 間取り | 3LDK |
| 専有面積 | 75.35㎡(約22.79坪) |
| 築年月 | 2003年12月築 |
| 階数 / 階建 | 6階 / 地上8階 地下1階建 |
| 向き | 南 |
■おすすめポイント━━━━━━━━━━━━━━・・・・・ 〇相模線南橋本駅から徒歩4分の好立地 〇6階部分南向住戸につき、陽当り・通風・眺望良好 〇専有面積75.35平米 〇約14.1帖のLDK 〇全居室収納有り 〇ペット飼育可(細則による制限あり) 〇専用駐車場区画有※引継要 〇各住戸にトランクルーム有 ■アクセス ━━━━━━━━━━━━━━━・・・・・ 〇 JR相模線「南橋本」駅 徒歩4分 ※物件の詳細・現地のご見学希望は担当までお気軽にお問い合わせください
| 所在地 | GoogleMaps |
| 価格 | 2,970万円 |
| 交通 | 相模線 南橋本駅 徒歩4分 |
| 管理費等 | 15,050円 |
| 修繕積立金 | 13,490円 |
| その他費用 | 駐車場使用料 6,350円 / 月 |
| 間取り | 3LDK |
| 専有面積 | 75.35㎡(約22.79坪) |
| 築年月 | 2003年12月築 |
| 階数 / 階建 | 6階 / 地上8階 地下1階建 |
| 向き | 南 |
| バルコニー | 13.7㎡ |
| 現況 | 居住中 |
| 駐車場 | 敷地内有 (賃貸) 空き:1台有り 月額 6,350円 (確認日:西暦2026年03月05日現在) |
| 建物構造 | 鉄筋コンクリート造 |
| 総戸数 | 91戸 |
| 管理会社 | 株式会社大京アステージ |
| 管理形態 | 管理会社に全部委託 |
| 管理員の 勤務形態 | 日勤 |
| 土地権利 | 所有権 |
| 分譲会社 | 株式会社ウイング (新築分譲時における売主) |
| 施工会社 | 三平建設株式会社 |
| 設計会社 | 株式会社横峯設計 |
| 備考 | - |
| 引渡時期 | 即時 |
| 取引態様 | 仲介 |
| 更新日 | 2026年04月11日 |
| 次回更新予定 | 2026年04月25日 |
| 物件番号 | FMRBBA11 |
最新のAI技術を活用した相談サービスです。
お客様一人ひとりのニーズに合わせて最適な情報をご提供します。
リハウスAIチャットの詳しい説明はこちら
GoogleMaps
| スーパー | ライフ相模原モール店 約290m(徒歩4分) |
| 公園 | 南橋本あじさい公園 約50m(徒歩1分) |
| 病院 | あさばクリニック 約170m(徒歩3分) |
| 小学校 | 相模原市立小山小学校 約480m(徒歩6分) |
| 中学校 | 相模原市立小山中学校 約590m(徒歩8分) |
| その他利便施設1 | セブンイレブン相模原南橋本2丁目店 約360m(徒歩5分) |
| その他利便施設2 | ウエルシア相模原南橋本店 約470m(徒歩6分) |
| その他利便施設3 | アリオ橋本 約1260m(徒歩16分) |
| その他利便施設4 | ホームセンターコーナン相模原小山店 約350m(徒歩5分) |
| その他利便施設5 | 相模原清新郵便局 約310m(徒歩4分) |
三井不動産リアルティ株式会社
国土交通大臣(15)第777号
0120-959-317
0120-959-317
物件の売却をご検討の方は、 はやめの査定依頼がおすすめです!
買い替えをご検討の方はこちら0120-959-317

