さいたま市浦和区元町3丁目
京浜東北・根岸線 北浦和駅 徒歩11分
3LDK / 65.4㎡
1984年11月築
2,980万円



| 物件種別 | 中古マンション |
| 所在地 | GoogleMaps |
| 交通 | |
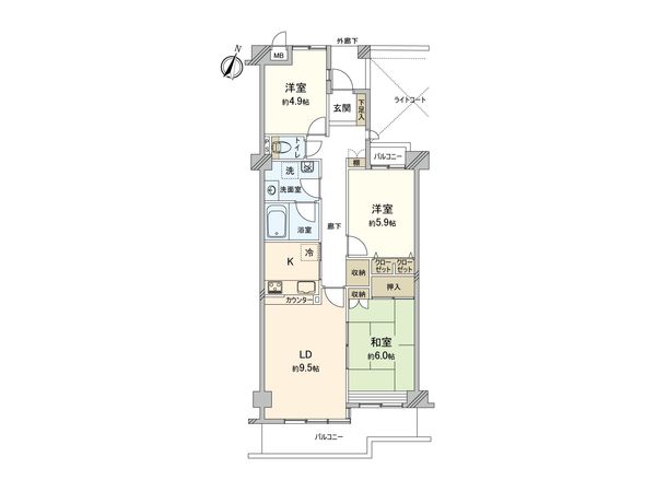
| 間取り | 3LDK |
| 専有面積 | 73.83㎡(約22.33坪) |
| 築年月 | 1985年12月築 |
| 階数 / 階建 | 7階 / 地上7階 地下1階建 |
| 向き | 南 |
-物件のおすすめポイント- ▼立地 ・JR京浜東北線「与野」駅徒歩10分 JR京浜東北線「さいたま新都心」駅徒歩15分 ▼お部屋の特徴 ・最上階7階部分の南向きのお部屋 ・日当たり・眺望良好です ・専有面積:73.83平米(約22.33坪) ・対面式カウンターキッチン ・エレベーター停止階です ▼リフォーム内容(令和4年12月実施) ・キッチン交換 ・浴室交換 ・洗面化粧台交換 ・トイレ交換 ・クロス貼替 ・ハウスクリーニング 他 ▼周辺環境 ・小学校徒歩5分以内です ・スーパー・コンビニ・ドラッグストア等周辺の買い物施設充実しております ■ ご希望の住まい探しをお手伝いします ━━━━━・・・ 物件の詳細・ご相談はお気軽にお問い合わせください。
| 所在地 | GoogleMaps |
| 価格 | 2,980万円 |
| 交通 | |
| 管理費等 | 10,190円 |
| 修繕積立金 | 21,780円 |
| その他費用 | - |
| 間取り | 3LDK |
| 専有面積 | 73.83㎡(約22.33坪) |
| 築年月 | 1985年12月築 |
| 階数 / 階建 | 7階 / 地上7階 地下1階建 |
| 向き | 南 |
| バルコニー | 10.22㎡ |
| 現況 | 空家 |
| 駐車場 | 空き無 |
| 建物構造 | 鉄筋コンクリート造 |
| 総戸数 | 87戸 |
| 管理会社 | (株)東京建物アメニティサポート |
| 管理形態 | 管理会社に全部委託 |
| 管理員の 勤務形態 | 日勤 |
| 土地権利 | 所有権 |
| 分譲会社 | 西武都市開発 (新築分譲時における売主) |
| 施工会社 | 清水建設(株) |
| 備考 | - |
| 引渡時期 | 相談 |
| 取引態様 | 仲介 |
| 更新日 | 2026年04月30日 |
| 次回更新予定 | 2026年05月14日 |
| 物件番号 | FMSBGA11 |
最新のAI技術を活用した相談サービスです。
お客様一人ひとりのニーズに合わせて最適な情報をご提供します。
リハウスAIチャットの詳しい説明はこちら
GoogleMaps
| スーパー | ヤオコー浦和上木崎店 約480m(徒歩6分) |
| 小学校 | さいたま市立上木崎小学校 約260m(徒歩4分) |
| 中学校 | さいたま市立大原中学校 約830m(徒歩11分) |
| その他利便施設1 | セブンイレブンさいたま北袋店 約340m(徒歩5分) |
| その他利便施設2 | 浦和上木崎郵便局 約500m(徒歩7分) |
| その他利便施設3 | スギ薬局浦和上木崎店 約480m(徒歩6分) |
三井不動産リアルティ株式会社
国土交通大臣(15)第777号
0120-993-612
0120-993-612
物件の売却をご検討の方は、 はやめの査定依頼がおすすめです!
買い替えをご検討の方はこちら0120-993-612

