台東区松が谷4丁目
東京メトロ日比谷線 入谷駅 徒歩6分
2LDK / 54.14㎡
2015年12月築
9,180万円



| 物件種別 | 中古マンション |
| 所在地 | GoogleMaps |
| 交通 | |
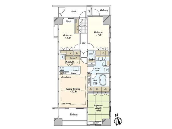
| 間取り | 3LDK |
| 専有面積 | 75.29㎡(約22.77坪) |
| 築年月 | 2002年12月築 |
| 階数 / 階建 | 5階 / 地上12階建 |
| 向き | 南 |
■交通アクセス ○東京メトロ日比谷線「入谷」駅 徒歩8分 ○つくばエクスプレス「浅草」駅 徒歩6分 ○東京メトロ銀座線「田原町」駅 徒歩13分 ■おすすめポイント ○2002年12月築 ○5階部分 南・東・北の3方角住戸につき通風良好 ○専有面積75.29平米の3LDK ○南・北の2面バルコニー ○リビングダイニングにTES式床暖房有 ○対面式システムキッチン ○トイレに手洗いカウンター有 ○浴室サイズ1418・追い焚き機能有 ○浴室暖房乾燥機有 ○床段差の少ないフラットフロア設計 ○ピッキング対策に優れたディンプルキーのダブルロック ○TVモニター付インターホン ○オートロック
| 所在地 | GoogleMaps |
| 価格 | 9,180万円 |
| 交通 | |
| 管理費等 | 16,000円 |
| 修繕積立金 | 18,830円 |
| その他費用 | - |
| 間取り | 3LDK |
| 専有面積 | 75.29㎡(約22.77坪) |
| 築年月 | 2002年12月築 |
| 階数 / 階建 | 5階 / 地上12階建 |
| 向き | 南 |
| バルコニー | 8.55㎡ |
| 現況 | 居住中 |
| 駐車場 | 空き無 |
| 建物構造 | 鉄骨鉄筋コンクリート造 |
| 総戸数 | 20戸 |
| 管理会社 | (株)クローバーコミュニティ |
| 管理形態 | 管理会社に全部委託 |
| 管理員の 勤務形態 | 巡回 |
| 土地権利 | 所有権 |
| 分譲会社 | (株)日本エスコン (新築分譲時における売主) |
| 施工会社 | (株)ハンシン建設 |
| 設計会社 | (株)秀建築研究事務所 |
| 備考 | ■ポーチ面積:5.25平米 ■室外機置場面積:1.07平米 |
| 引渡時期 | 相談 |
| 取引態様 | 仲介 |
| 更新日 | 2026年04月06日 |
| 次回更新予定 | 2026年04月20日 |
| 物件番号 | FN6BDA01 |
最新のAI技術を活用した相談サービスです。
お客様一人ひとりのニーズに合わせて最適な情報をご提供します。
リハウスAIチャットの詳しい説明はこちら
GoogleMaps
| スーパー | まいばすけっと合羽橋北店 約30m(徒歩1分) |
| スーパー | ライフ浅草店 約440m(徒歩6分) |
| 公園 | 区立入谷南公園 約180m(徒歩3分) |
| 病院 | 城所医院 約430m(徒歩6分) |
| 小学校 | 区立大正小学校 約510m(徒歩7分) |
| 中学校 | 区立駒形中学校 約340m(徒歩5分) |
| その他利便施設1 | 中央図書館 約200m(徒歩3分) |
| その他利便施設2 | セブンイレブン台東西浅草3丁目店 約250m(徒歩4分) |
三井不動産リアルティ株式会社
国土交通大臣(15)第777号
0120-929-431
0120-929-431
物件の売却をご検討の方は、 はやめの査定依頼がおすすめです!
買い替えをご検討の方はこちら0120-929-431

