目黒区東山2丁目
東急田園都市線 池尻大橋駅 徒歩9分
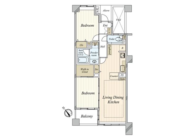
2LDK / 63.33㎡
1995年08月築
14,490万円



| 物件種別 | 中古マンション |
| 所在地 | GoogleMaps |
| 交通 | |
| 間取り | 2LDK |
| 専有面積 | 64.53㎡(約19.52坪) |
| 築年月 | 1998年03月築 |
| 階数 / 階建 | 2階 / 地上3階 地下1階建 |
| 向き | 南西 |
■アクセス ━━━━━━━━━━━━━━━・・・・・ 〇東京メトロ日比谷線・東急東横線「中目黒」駅 徒歩9分 〇東急田園都市線「池尻大橋」駅 徒歩15分 〇徒歩15分圏内で2駅3路線利用可能な立地 ■おすすめポイント ━━━━━━━━━━━━━━━・・・・・ 〇目黒区東山アドレス 〇丸紅(株)旧分譲 〇三菱地所コミュニティ(株)による管理 〇南西向き 〇64.53平米2LDKのお部屋 〇約15帖のLDK 〇家具の配置しやすい整形な間取り 〇各居室約6.0帖以上 〇ウォークインクローゼット付 ■リフォーム履歴(令和8年1月実施) ━━━━━━━━━━━━━━━・・・・・ 〇交換:建具 〇張替:クロス、フロアタイル(洗面室・トイレ) 〇ハウスクリーニング他 ■ライフインフォメーション ━━━━━━━━━━━━━━━・・・・・ 〇ローソン目黒東山店・・・・・・・・・・約240m(徒歩3分) 〇まいばすけっと目黒青葉台1丁目店・・・約350m(徒歩5分) 〇トモズ中目黒店・・・・・・・・・・・・約600m(徒歩8分) 〇ライフ中目黒店・・・・・・・・・・・・約650m(徒歩9分) 〇目黒区立東山公園・・・・・・・・・・・約700m(徒歩9分) 〇スーパーみらべる目黒大橋店・・・・・・約850m(徒歩11分) 〇自衛隊中央病院・・・・・・・・・・・・約900m(徒歩12分) 〇目黒区区立烏森小学校・・・・・・・・約180m(徒歩3分) 〇目黒区立東山中学校・・・・・・・・・約550m(徒歩7分)
| 所在地 | GoogleMaps |
| 価格 | 14,490万円 |
| 交通 | |
| 管理費等 | 10,830円 |
| 修繕積立金 | 12,910円 |
| その他費用 | - |
| 間取り | 2LDK |
| 専有面積 | 64.53㎡(約19.52坪) |
| 築年月 | 1998年03月築 |
| 階数 / 階建 | 2階 / 地上3階 地下1階建 |
| 向き | 南西 |
| バルコニー | 4.69㎡ |
| 現況 | 空家 |
| 駐車場 | - |
| 建物構造 | 鉄筋コンクリート造 |
| 総戸数 | 24戸 |
| 管理会社 | 三菱地所コミュニティ(株) |
| 管理形態 | 管理会社に全部委託 |
| 管理員の 勤務形態 | 日勤 |
| 土地権利 | 所有権 |
| 分譲会社 | 丸紅(株) (新築分譲時における売主) |
| 施工会社 | 大木建設(株) |
| 設計会社 | (株)IAO竹田設計 |
| 備考 | - |
| 引渡時期 | 相談 |
| 取引態様 | 仲介 |
| 更新日 | 2026年04月13日 |
| 次回更新予定 | 2026年04月27日 |
| 物件番号 | FP6AGA98 |
最新のAI技術を活用した相談サービスです。
お客様一人ひとりのニーズに合わせて最適な情報をご提供します。
リハウスAIチャットの詳しい説明はこちら
GoogleMaps
| スーパー | まいばすけっと目黒青葉台1丁目店 約350m(徒歩5分) |
| スーパー | ライフ中目黒店 約650m(徒歩9分) |
| スーパー | みらべる目黒大橋店 約850m(徒歩11分) |
| 公園 | 目黒区立東山公園 約700m(徒歩9分) |
| その他利便施設1 | ローソン目黒東山店 約240m(徒歩3分) |
| その他利便施設2 | 中目黒駅 約680m(徒歩9分) |
0120-031-931
リノベーション工事の可能範囲については、本物件の管理組合規約等により一定の制限が加わる場合がございます。詳細については、工事内容の確定後に判明する部分もありますので、この点については事前にお含みおきください。
リノベーションに関するお問い合わせ0120-031-931
物件の売却をご検討の方は、 はやめの査定依頼がおすすめです!
買い替えをご検討の方はこちら0120-031-931

