パークスクエア三ツ沢公園 ブリーズテラス
5,680万円



| 物件種別 | 中古マンション |
| 所在地 | GoogleMaps |
| 交通 | |
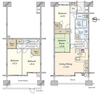
| 間取り | 2LDK |
| 専有面積 | 76.74㎡(約23.21坪) |
| 築年月 | 2021年01月築 |
| 階数 / 階建 | 2階 / 地上11階建 |
| 向き | 東 |
この物件情報を共有する
毎月のお支払い目安
返済計画を入力すると毎月のお支払い目安を表示できます
- ローン160,338円
- 管理費+修繕積立金31,040円
- その他費用2,390円
おすすめポイント
設備
- 床暖房
- ウォークインクローゼット
- ゲストルーム
おすすめポイント ○ 約20.9帖のゆとりあるLDK ○ 令和6年7月リフォーム済 ○ ウォークインクローゼットをはじめ、豊富な収納 ~リフォーム履歴(令和6年7月完了)~ ・間取り変更(2SLDK→2LDK ) ・LD/フローリング上張り、ダウンライト追加設置 ・キッチン・洗面室/水栓変更 ・浴室:ファインバブルシャワーヘッドへ変更 ・キッチン:ガスコンロをIHコンロに変更 ・洋室(約6.5帖)/収納増設 ・全居室/循環ファン設置 ・玄関・LD/壁一部にエコカラット設置 ・トイレ交換 ・洋室および玄関/二重窓設置、姿見設置 ■三ツ沢公園 徒歩2分、全262邸の築浅マンション 横浜駅周辺を生活圏にしながらも、自然に触れ合える三ツ沢公園近接。横浜の高台から広がる空を望み、豊かな自然を享受する恵まれた住環境に誕生しました。 ■敷地面積約12,400平米のスケールを活かした、細部まで工夫を凝らしたランドスケープ 北側を三ツ沢公園と同レベルとして、南に向けて緩やかに高低差がつく立地特性を活かして、北西側に公園とつながりやすいパークサイドゲートを設け、南側には歩車分離としたメインエントランスとなるアーバンサイドゲートを設けました。南北のゲートを設けることで、都市と公園、両方の生活スタイルとスムーズにつながる配慮がなされています。 ■共用棟の「オーナーズ・コート」には充実の共用施設 ○ ウェルカム・ラウンジ ○ ライブラリー・コーナー ○ コミュニティ・ルーム(集会室) ○ キッチン・スタジオ ○ フィットネス&スパラウンジ ○ 和室ゲストルーム(有料) ○ AVコーナー(有料) ○ 24時間ゴミ出し可能な集積所 ■カーライフのサポートはもちろん、バイクと自転車にもきめ細かな配慮を ○ 駐車場:敷地内に247台の自走式駐車場・洗車コーナー(有料)もございます。 ○ 駐輪場:全393台分のスペース ○ バイク置場:26台分のスペース ○ レンタサイクル・サービス(有料) ■コンシェルジュサービス 日々の暮らしの各種サービスを提供するコンシェルジュカウンターでは、業者の紹介や旅行・航空券の手配サービスなど幅広いサービスを提供しています。
リノベーション&リフォーム情報
台所(キッチン)交換 | バスルーム交換 |
トイレ交換 |
水回り(キッチン、浴室、トイレ)(2024年7月)
LD/フローリング上張り、ダウンライト追加設置 ガスコンロをIHコンロに変更 ⑥洋室(約6.5帖)/収納増設 全居室/循環ファン設置(ヘルスエアー搭載) 玄関・LD/壁一部にエコカラット設置、…(2024年7月)
物件情報
| 所在地 | GoogleMaps |
| 価格 | 5,680万円 |
| 交通 | |
| 管理費等 | 20,300円 |
| 修繕積立金 | 10,740円 |
| その他費用 | 自治会費 300円 / 月、インターネット 2,090円 / 月 |
| 間取り | 2LDK |
| 専有面積 | 76.74㎡(約23.21坪) |
| 築年月 | 2021年01月築 |
| 階数 / 階建 | 2階 / 地上11階建 |
| 向き | 東 |
| バルコニー | 11.19㎡ |
| 現況 | 空家 |
| 駐車場 | - |
| 建物構造 | 鉄筋コンクリート造 |
| 総戸数 | 141戸 |
| 管理会社 | 日本ハウズイング株式会社 |
| 管理形態 | 管理会社に全部委託 |
| 管理員の 勤務形態 | 日勤 |
| 土地権利 | 所有権 |
| 分譲会社 | (株)熊谷組 (新築分譲時における売主) |
| 施工会社 | (株)熊谷組 |
| 設計会社 | (株)熊谷組 |
| 備考 | - |
| 引渡時期 | 相談 |
| 取引態様 | 仲介 |
| 更新日 | 2025年11月07日 |
| 次回更新予定 | 2025年11月21日 |
| 物件番号 | FR3ASA06 |
この物件のことを
AIに聞いてみませんか?
最新のAI技術を活用した相談サービスです。
お客様一人ひとりのニーズに合わせて最適な情報をご提供します。
周辺情報
GoogleMaps
| スーパー | まいばすけっと横浜楠町店 約950m(徒歩12分) |
| 公園 | 宮ヶ谷公園 約650m(徒歩9分) |
| 病院 | 三ツ沢ハイタウンクリニック 約550m(徒歩7分) |
| 小学校 | 横浜市立宮谷小学校 約660m(徒歩9分) |
| 中学校 | 横浜市立軽井沢中学校 約310m(徒歩4分) |
| その他利便施設1 | セブンイレブン横浜浅間台店 約640m(徒歩8分) |
| その他利便施設2 | 横浜浅間町郵便局 約930m(徒歩12分) |
取扱店舗
三井のリハウス 新川崎センター
- 営業時間10:00~18:00
- 定休日毎週火曜日・水曜日
0120-313-770
あなたへのおすすめ
同じマンションの貸出物件情報
横浜市西区の物件情報
この物件を見学してみませんか?
この物件についてお問い合わせ
物件・住環境の詳しい情報、購入・ローン相談など、ささいなことでもお気軽にお問い合わせください。三井のリハウス 新川崎センター
- 営業時間10:00~18:00
- 定休日毎週火曜日・水曜日
0120-313-770

物件の売却をご検討の方は、 はやめの査定依頼がおすすめです!
買い替えをご検討の方はこちら見学予約
お問い合わせ
0120-313-770
- 営業時間 10:00~18:00
- 定休日 毎週火曜日・水曜日










