モナーク福生
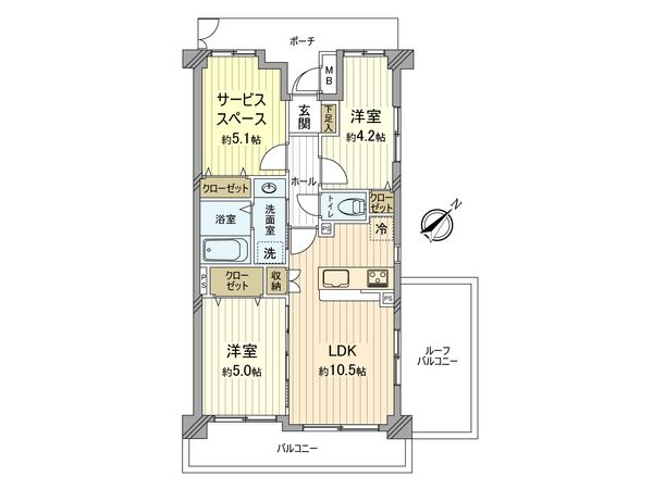
2SLDK/57.85㎡(約17.49坪)
2,090万円



物件情報
おすすめポイント
周辺情報
取扱店舗
| 物件種別 | 中古マンション |
| 所在地 | GoogleMaps |
| 交通 | |
| 間取り | 2SLDK ※S・サービススペースは納戸です |
| 専有面積 | 57.85㎡(約17.49坪) |
| 築年月 | 1998年06月築 |
| 階数 / 階建 | 4階 / 地上7階建 |
| 向き | 南東 |
この物件情報を共有する
おすすめポイント
設備
- 納戸
■ アクセス ━━━━━━━━━━━━・・・・・ 〇JR八高線 「東福生」駅 徒歩7分 〇JR青梅線 「福生」駅 徒歩18分 ■ おすすめポイント ━━━━━━━━━━━━・・・・・ 〇2025年12月リフォーム完了 〇南東と北東向きの角部屋 〇専有面積57.85平米の2SLDK 〇7.24平米のバルコニー 〇3.64平米のルーフバルコニー 〇ポーチ面積9.27平米 〇宅配ボックス設置あり 〇ペット飼育2匹まで可(細則あり)
リノベーション&リフォーム情報
全室クロス/壁紙貼り替え | 台所(キッチン)交換 |
バスルーム交換 | トイレ交換 |
洗面化粧台交換 | 床貼り替え |
扉交換 | 配管交換 |
水回り(キッチン、浴室、トイレ、洗面所、給排水管)(2025年12月)
内装(全室クロス、床、建具、ハウスクリーニング)(2025年12月)
物件情報
| 所在地 | GoogleMaps |
| 価格 | 2,090万円 |
| 交通 | |
| 管理費等 | 8,110円 |
| 修繕積立金 | 13,880円 |
| その他費用 | - |
| 間取り | 2SLDK ※S・サービススペースは納戸です |
| 専有面積 | 57.85㎡(約17.49坪) |
| 築年月 | 1998年06月築 |
| 階数 / 階建 | 4階 / 地上7階建 |
| 向き | 南東 |
| バルコニー | 7.24㎡ |
| ルーフバルコニー | 3.64㎡ |
| 現況 | 空家 |
| 駐車場 | 空き無 |
| 建物構造 | 鉄筋コンクリート造 |
| 総戸数 | 47戸 |
| 管理形態 | 管理会社に全部委託 |
| 管理員の 勤務形態 | 日勤 |
| 土地権利 | 所有権 |
| 分譲会社 | (株)田中建設 (新築分譲時における売主) |
| 施工会社 | (株)田中建設 |
| 設計会社 | (株)エル設計事務所 |
| 備考 | - |
| 引渡時期 | 相談 |
| 取引態様 | 仲介 |
| 更新日 | 2026年04月16日 |
| 次回更新予定 | 2026年04月30日 |
| 物件番号 | FR6AGA9E |
この物件のことを
AIに聞いてみませんか?
最新のAI技術を活用した相談サービスです。
お客様一人ひとりのニーズに合わせて最適な情報をご提供します。
リハウスAIチャットの詳しい説明はこちら

周辺情報
GoogleMaps
| 病院 | 目白第二病院 約100m(徒歩2分) |
| 小学校 | 福生市立福生第一小学校 約1720m(徒歩22分) |
| 中学校 | 福生市立福生第一中学校 約2500m(徒歩32分) |
| その他利便施設1 | カインズ西友福生店 約1290m(徒歩17分) |
| その他利便施設2 | ドン・キホーテ多摩瑞穂店 約870m(徒歩11分) |
取扱店舗
三井のリハウス 昭島センター
- 営業時間10:00~18:00
- 定休日毎週火曜日・水曜日
0120-231-314
あなたへのおすすめ
福生市の物件情報
この物件を見学してみませんか?
この物件についてお問い合わせ
物件・住環境の詳しい情報、購入・ローン相談など、ささいなことでもお気軽にお問い合わせください。三井のリハウス 昭島センター
- 営業時間10:00~18:00
- 定休日毎週火曜日・水曜日
0120-231-314

物件の売却をご検討の方は、 はやめの査定依頼がおすすめです!
買い替えをご検討の方はこちら見学予約
お問い合わせ
0120-231-314
- 営業時間 10:00~18:00
- 定休日 毎週火曜日・水曜日




