東京ツインパークス ライトウィング
2SLDK/93.04㎡(約28.14坪)
39,990万円



物件情報
おすすめポイント
取扱店舗
| 物件種別 | 中古マンション |
| 所在地 | GoogleMaps |
| 交通 | |
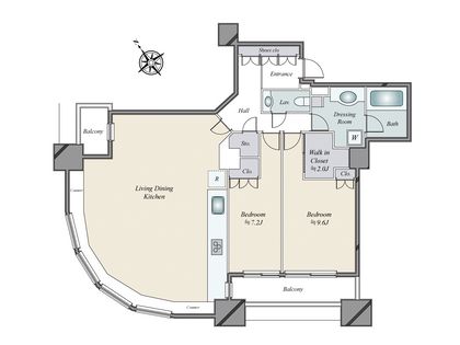
| 間取り | 2SLDK ※S・サービススペースは納戸です |
| 専有面積 | 93.04㎡(約28.14坪) |
| 築年月 | 2002年09月築 |
| 階数 / 階建 | 37階 / 地上47階 地下2階建 |
| 向き | 南東 |
この物件情報を共有する
毎月のお支払い目安
返済計画を入力すると毎月のお支払い目安を表示できます
- ローン1,128,861円
- 管理費+修繕積立金62,750円
- その他費用8,005円
お支払い目安1,199,616円
おすすめポイント
設備
- 床暖房
- ウォークインクローゼット
- 納戸
- ディスポーザー
- ゲストルーム
- 食器洗乾燥機
特徴
- 全居室フローリング
- 三不/三不レジ旧分譲
~~各居室から浜離宮の借景~~ ■リノベーション工事実施【2025年6月末完了】 ・キッチン、洗面(洗面所・トイレ部)新規交換 田中工藝によるオーダー仕様 ・浴室、トイレ、洗濯機(ミーレ)新規設置 ・床暖房機器(ガス) ・全室床・クロス 新規張替、エアコン全4機 新規交換 他 ■ マンションの特徴 ○ 高強度・制震構造のタワーレジデンス ○ 三菱地所一級建築士事務所による設計 ○ 24時間有人管理(9~20時フロントサービス、夜間警備員常駐) ○ ふたつのタワーをつなぐ御影石づくりのエントランスホール ○ 車寄せのあるコーチエントランスは車路6mの幅が確保されており、運転手用の控え室もあります。 ■ 共用施設(一部有償) ○ ラウンジ(L棟、R棟1階) ○ フィットネス(R棟4階) ○ ビューラウンジ(L棟26階) ○ カードルーム(L棟26階) ○ パーティールーム(L棟26階、R棟26階) ○ ゲストルーム(L棟26階、R棟27階) 他
リノベーション&リフォーム情報
台所(キッチン)交換 | バスルーム交換 |
トイレ交換 | 洗面化粧台交換 |
給湯器交換 | 配管交換 |
水回り(キッチン、浴室、トイレ、洗面所、給排水管、給湯器)(2025年6月)
内装(全面)(2025年6月)
物件情報
| 所在地 | GoogleMaps |
| 価格 | 39,990万円 |
| 交通 | |
| 管理費等 | 34,000円 |
| 修繕積立金 | 28,750円 |
| その他費用 | インターネット接続料 1,595円 / 月、給湯暖房基本料 2,500円 / 月、ヒーツ修繕積立金 3,910円 / 月 |
| 間取り | 2SLDK ※S・サービススペースは納戸です |
| 専有面積 | 93.04㎡(約28.14坪) |
| 築年月 | 2002年09月築 |
| 階数 / 階建 | 37階 / 地上47階 地下2階建 |
| 向き | 南東 |
| バルコニー | 8.06㎡ |
| 現況 | 空家 |
| 駐車場 | 敷地内有 (賃貸) 空き:10台有り 月額 41,000円〜51,000円 (確認日:西暦2025年04月01日現在) |
| 建物構造 | 鉄骨鉄筋コンクリート造 |
| 総戸数 | 423戸 |
| 管理会社 | 三井不動産レジデンシャルサービス(株) |
| 管理形態 | 管理会社に全部委託 |
| 管理員の 勤務形態 | 常勤 |
| 土地権利 | 所有権 |
| 分譲会社 | 三菱地所(株)、三井不動産(株)、他 (新築分譲時における売主) |
| 施工会社 | 大成建設(株) |
| 設計会社 | 三菱地所(株) |
| 備考 | - |
| 引渡時期 | 相談 |
| 取引態様 | 仲介 |
| 更新日 | 2025年11月14日 |
| 次回更新予定 | 2025年11月28日 |
| 物件番号 | FSAAGA20 |
この物件のことを
AIに聞いてみませんか?
最新のAI技術を活用した相談サービスです。
お客様一人ひとりのニーズに合わせて最適な情報をご提供します。
取扱店舗
三井のリアルプラン 六本木サロン
- 営業時間
- 10:00~18:00
- 定休日
- 毎週火曜日・水曜日※11月30日(日)は、入居ビルの定期点検に伴う停電のため、六本木サロン店舗のご利用ができません。ご相談事は、誠に恐れ入りますが上記フリーコールまでご連絡をお願いいたします。
- 住所
- 東京都港区六本木1-8-7MFPR六本木麻布台ビル1F
三井不動産リアルティ株式会社
国土交通大臣(15)第777号
三井のリアルプラン 六本木サロン
- 営業時間10:00~18:00
- 定休日毎週火曜日・水曜日※11月30日(日)は、入居ビルの定期点検に伴う停電のため、六本木サロン店舗のご利用ができません。ご相談事は、誠に恐れ入りますが上記フリーコールまでご連絡をお願いいたします。
0120-907-413
あなたへのおすすめ
港区の物件情報
この物件を見学してみませんか?
この物件についてお問い合わせ
物件・住環境の詳しい情報、購入・ローン相談など、ささいなことでもお気軽にお問い合わせください。三井のリアルプラン 六本木サロン
- 営業時間10:00~18:00
- 定休日毎週火曜日・水曜日※11月30日(日)は、入居ビルの定期点検に伴う停電のため、六本木サロン店舗のご利用ができません。ご相談事は、誠に恐れ入りますが上記フリーコールまでご連絡をお願いいたします。
0120-907-413

物件の売却をご検討の方は、 はやめの査定依頼がおすすめです!
買い替えをご検討の方はこちら見学予約
お問い合わせ
0120-907-413
- 営業時間 10:00~18:00
- 定休日 毎週火曜日・水曜日※11月30日(日)は、入居ビルの定期点検に伴う停電のため、六本木サロン店舗のご利用ができません。ご相談事は、誠に恐れ入りますが上記フリーコールまでご連絡をお願いいたします。

















