港区六本木5丁目
都営大江戸線 麻布十番駅 徒歩4分
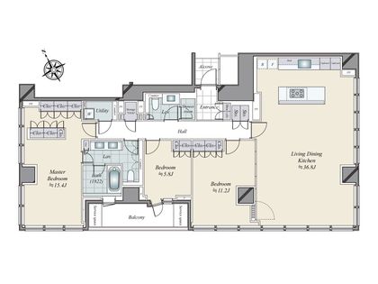
2LDK / 88.61㎡
2015年09月築
54,800万円



| 物件種別 | 中古マンション |
| 所在地 | GoogleMaps |
| 交通 | |
| 間取り | 2LDK |
| 専有面積 | 85.18㎡(約25.76坪) |
| 築年月 | 2019年09月築 |
| 階数 / 階建 | 3階 / 地上23階 地下2階建 |
| 向き | 南西 |
■物件特徴 ○ 開発の進む六本木一丁目の高台立地、麻布台ヒルズ至近 ○ 東京メトロ南北線「六本木一丁目」駅 徒歩3分 ○ 東京メトロ日比谷線「神谷町」駅 徒歩6分 ○ 2019年8月築 ○ 森トラスト(株)旧分譲×(株)竹中工務店施工 ○ 免震構造・超高強度コンクリートを採用 ○ 24時間有人管理(夜間警備員) ○ 各階ゴミ置場 ○ 充実したコンシェルジュサービス 【ハイルーフ駐車場承継可能(要確認)】 ■住戸特徴 ○ 85.18平米/南西・北西角住戸 ○ 約19帖のリビングダイニング ○ 広々としたオープンカウンターキッチン ○ 開放感のある開口・ハイサッシ ○ 令和2年7月頃室内アップデート実施 ●リビングダイニング ・支柱タイル貼付 ・天井補強、デザイン照明設置 ・一部アクセントタイル変更、壁掛テレビ設置 ●廊下部分 ・壁一部アクセントクロス張替、天井クロス張替 ・収納部分電源追加、引棚設置 ●主寝室 ・一部アクセントクロス張替 ・ベッドヘッド設置 ・照明追加 ●寝室 ・一部アクセントクロス張替 ●トイレ 一部アクセントクロス張替
| 所在地 | GoogleMaps |
| 価格 | 54,800万円 |
| 交通 | |
| 管理費等 | 42,410円 |
| 修繕積立金 | 20,440円 |
| その他費用 | - |
| 間取り | 2LDK |
| 専有面積 | 85.18㎡(約25.76坪) |
| 築年月 | 2019年09月築 |
| 階数 / 階建 | 3階 / 地上23階 地下2階建 |
| 向き | 南西 |
| バルコニー | 3.53㎡ |
| 現況 | 居住中 |
| 駐車場 | 敷地内有 (賃貸) 空き:4台有り 月額 50,000円〜60,000円 (確認日:西暦2026年01月24日現在) |
| 建物構造 | 鉄筋コンクリート造 |
| 総戸数 | 71戸 |
| 管理会社 | 森トラストレジデンシャルサービス株式会社 |
| 管理形態 | 管理会社に全部委託 |
| 管理員の 勤務形態 | 日勤 |
| 土地権利 | 所有権 |
| 分譲会社 | 森トラスト(株) (新築分譲時における売主) |
| 施工会社 | (株)竹中工務店 |
| 設計会社 | (株)竹中工務店 |
| 備考 | - |
| 引渡時期 | 相談 |
| 取引態様 | 仲介 |
| 更新日 | 2026年04月16日 |
| 次回更新予定 | 2026年04月30日 |
| 物件番号 | FSABAA0A |
最新のAI技術を活用した相談サービスです。
お客様一人ひとりのニーズに合わせて最適な情報をご提供します。
リハウスAIチャットの詳しい説明はこちら
三井不動産リアルティ株式会社
国土交通大臣(15)第777号
0120-907-413
0120-907-413
物件の売却をご検討の方は、 はやめの査定依頼がおすすめです!
買い替えをご検討の方はこちら0120-907-413

