港区麻布台3丁目
東京メトロ南北線 六本木一丁目駅 徒歩7分
2LDK / 63.7㎡
2014年01月築
38,800万円



| 物件種別 | 新築マンション |
| 所在地 | GoogleMaps |
| 交通 | |
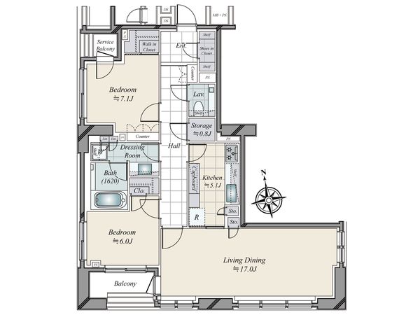
| 間取り | 2SLDK ※S・サービススペースは納戸です |
| 専有面積 | 88.67㎡(約26.82坪) |
| 築年月 | 2025年10月築 |
| 階数 / 階建 | 14階 / 地上17階 地下2階建 |
| 向き | 南 |
■アクセス━━━━━━━━━━━━━━━・・・・・ ○ 都営大江戸線「麻布十番」駅 徒歩5分 ○ 東京メトロ日比谷線「六本木」駅 徒歩10分 ■マンションの特徴━━━━━━━━━━━━━━━・・・・・ ○ 麻布台ヒルズが近く利便性の高い立地 ○ 旭化成不動産レジデンス(株)旧分譲 ○ 麻布小学校学区域、ブリティッシュスクール徒歩圏内 ○ ダブルオートロック ○ 各階ゴミ置場あり、24時間ゴミ捨て可能 ○ ホテルライクな内廊下設計 ○ ペット飼育可(細則あり) ○ 宅配ボックスあり ■お部屋のご紹介━━━━━━━━━━━━━━━・・・・・ ○ 築後未入居 ○ 14階部分、東京タワーを望む眺望(天候による) ○ 同フロアに2邸のみの贅沢なプライベート空間 ○ 天井高2.6メートル(LDK、洋室) ○ LDK、主寝室に床暖房あり ○ 約5.1帖の収納豊富なキッチン ○ 1620タイプの浴室 ○ LDK、各洋室に天井カセットエアコン設置 ○ 充実した収納スペース
| 所在地 | GoogleMaps |
| 価格 | 38,800万円 |
| 交通 | |
| 管理費等 | 50,370円 |
| 修繕積立金 | 11,970円 |
| その他費用 | - |
| 間取り | 2SLDK ※S・サービススペースは納戸です |
| 専有面積 | 88.67㎡(約26.82坪) |
| 築年月 | 2025年10月築 |
| 階数 / 階建 | 14階 / 地上17階 地下2階建 |
| 向き | 南 |
| バルコニー | 5.05㎡ |
| 現況 | 空家 |
| 駐車場 | 空き無 |
| 建物構造 | 鉄筋コンクリート造 |
| 総戸数 | 34戸 |
| 管理会社 | 旭化成不動産コミュニティ株式会社 |
| 管理形態 | 管理会社に全部委託 |
| 管理員の 勤務形態 | 日勤 |
| 土地権利 | 所有権 |
| 分譲会社 | 旭化成不動産レジデンス(株) (新築分譲時における売主) |
| 施工会社 | 飛島建設(株) |
| 設計会社 | (株)UG都市建築 |
| 備考 | サービスバルコニー面積:2.00平米 |
| 引渡時期 | 相談 |
| 取引態様 | 仲介 |
| 更新日 | 2026年04月27日 |
| 次回更新予定 | 2026年05月11日 |
| 物件番号 | FSABDA13 |
最新のAI技術を活用した相談サービスです。
お客様一人ひとりのニーズに合わせて最適な情報をご提供します。
リハウスAIチャットの詳しい説明はこちら
三井不動産リアルティ株式会社
国土交通大臣(15)第777号
0120-907-413
0120-907-413
物件の売却をご検討の方は、 はやめの査定依頼がおすすめです!
買い替えをご検討の方はこちら0120-907-413

