福岡市南区平和2丁目
西鉄天神大牟田線 西鉄平尾駅 徒歩15分
3LDK / 84.12㎡
1975年06月築
2,480 万円



| 物件種別 | 中古マンション |
| 所在地 | GoogleMaps |
| 交通 | 西鉄天神大牟田線 西鉄平尾駅 徒歩17分 西鉄バス「平和二丁目」停 徒歩3分 |
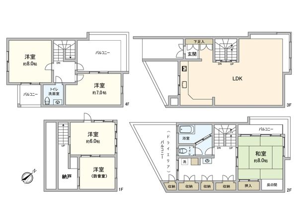
| 間取り | 5SLDK ※S・サービススペースは納戸です |
| 専有面積 | 146.7㎡(約44.37坪) |
| 築年月 | 1981年05月築 |
| 階数 / 階建 | 4階 / 地上4階建 |
| 向き | 南西 |
返済計画を入力すると毎月のお支払い目安を表示できます
-物件のおすすめポイント- ▼立地 ・緑が多く閑静な住宅地に所在 ▼マンションの特徴 ・4階メゾネットの独立性が高い住戸です ・ペット飼育可(規約の制限有り) ▼お部屋の特徴 ・リビングの大きな窓から福岡市街を望む ・3階には開放的なバルコニーあり ・専有面積146.7平米の5SLDK 【敷地面積および共有部分】 231番2(759.14平米):1/31 235番2(2,601.12平米):95047/310万 その他の土地(244.51平米):3066/10万 ■ご希望の住まい探しをお手伝いします ━━━━━ ・・・ 物件の詳細・ご相談はお気軽にお問い合わせください。
| 所在地 | GoogleMaps |
| 価格 | 2,480万円 |
| 交通 | 西鉄天神大牟田線 西鉄平尾駅 徒歩17分 西鉄バス「平和二丁目」停 徒歩3分 |
| 管理費等 | 19,000円 |
| 修繕積立金 | 24,206円 |
| その他費用 | - |
| 間取り | 5SLDK ※S・サービススペースは納戸です |
| 専有面積 | 146.7㎡(約44.37坪) |
| 築年月 | 1981年05月築 |
| 階数 / 階建 | 4階 / 地上4階建 |
| 向き | 南西 |
| バルコニー | 27.8㎡ |
| 現況 | 空家 |
| 駐車場 | 敷地内有 (賃貸) 空き:1台有り 月額 10,000円 (確認日:西暦2025年10月23日現在) |
| 建物構造 | 鉄筋コンクリート造 |
| 総戸数 | 34戸 |
| 管理会社 | 東福互光株式会社 |
| 管理形態 | 管理会社に全部委託 |
| 管理員の 勤務形態 | 日勤 |
| 土地権利 | 所有権 |
| 分譲会社 | 株式会社ムカイ (新築分譲時における売主) |
| 施工会社 | 上村建設株式会社 |
| 設計会社 | アトリエ美山 |
| 備考 | 【その他費用】 町内会費:年額3,600円(毎年4月と9月に1,800円徴収) ※2025年9月~2026年3月まで大規模修繕工事実施予定 |
| 引渡時期 | 相談 |
| 取引態様 | 仲介 |
| 更新日 | 2025年10月23日 |
| 次回更新予定 | 2025年11月06日 |
| 物件番号 | FSMASA02 |
GoogleMaps
| スーパー | マキイ山荘通り店 約860m(徒歩11分) |
| 公園 | 平和東公園 約260m(徒歩4分) |
| 公園 | 上高宮南公園 約540m(徒歩7分) |
| 公園 | 上高宮北公園 約600m(徒歩8分) |
| 小学校 | 西高宮小学校 約810m(徒歩11分) |
| 中学校 | 高宮中学校 約1550m(徒歩20分) |
| その他利便施設1 | セブンイレブン福岡平和2丁目店 約790m(徒歩10分) |
| その他利便施設2 | ドラッグセガミ平尾山荘通り店 約820m(徒歩11分) |
0120-977-831
0120-977-831
物件の売却をご検討の方は、 はやめの査定依頼がおすすめです!
買い替えをご検討の方はこちら0120-977-831
