柏市若柴
つくばエクスプレス 柏の葉キャンパス駅 徒歩4分
2LDK / 65.49㎡
2020年12月築
7,430万円



| 物件種別 | 中古マンション |
| 所在地 | GoogleMaps |
| 交通 | つくばエクスプレス 柏の葉キャンパス駅 徒歩6分 |
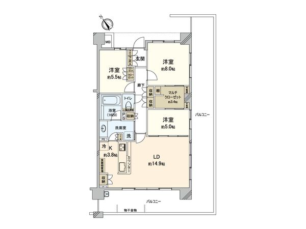
| 間取り | 3LDK |
| 専有面積 | 88.06㎡(約26.63坪) |
| 築年月 | 2010年02月築 |
| 階数 / 階建 | 2階 / 地上7階建 |
| 向き | 南西 |
■ おすすめポイント ━━━━・・・・・ ○ 7階建の2階部分、南西×南東角住戸につき日照良好 ○ 専有面積約88平米のゆとりある3LDK ○ 三井不動産レジデンシャル(株)旧分譲マンション ○ LDは約14.9帖 ○ 各居室収納あり ○ ペット飼育可(飼育細則有) ○ 住戸全体戸数890戸(ガーデンコートF116戸) ■ 設備・仕様 ━━━━━・・・・・ ○ 食器洗浄乾燥機 ○ ミストサウナ付浴室暖房乾燥機 ○ フルオートバス ○ 1620サイズの浴室 ○ リビング・ダイニングに「TES温水式床暖房」 ○ エコジョーズ(高効率TES熱源機) ○ リモコン付節水シャワートイレ ○ 足元保安灯(停電時に自動点灯) ○ 二重床・二重天井 ■ 防犯・セキュリティ ━━・・・・・ ○ 365日24時間体制の有人管理セキュリティ ○ 玄関ドアは防犯センサー機付 ○ カラーモニター付インターホン(録画機能搭載) ■ 共用施設 ━━━━━・・・・・ ○ 便利なコンシェルジュサービス ○ ワークショップルーム ○ パーティラウンジ ○ スタジオ ○ ライブラリ ○ コレクティブハウス ○ ビオトープ ○ コモン菜園 ○ コモンプラザ ○ 24時間ゴミ出し可能 ○ 敷地内2ヶ所に設けた「ペット足洗い場」 ■ リフォーム履歴 ━━━━━・・・・・ 〇 ビルトインガスコンロ交換済(令和8年4月) 〇 トイレ交換(タンクレストイレ)・トイレCF貼替、トイレクロス張替(令和8年5月完了予定)
| 所在地 | GoogleMaps |
| 価格 | 7,430万円 |
| 交通 | つくばエクスプレス 柏の葉キャンパス駅 徒歩6分 |
| 管理費等 | 20,250円 |
| 修繕積立金 | 14,820円 |
| その他費用 | - |
| 間取り | 3LDK |
| 専有面積 | 88.06㎡(約26.63坪) |
| 築年月 | 2010年02月築 |
| 階数 / 階建 | 2階 / 地上7階建 |
| 向き | 南西 |
| バルコニー | 47.3㎡ |
| 現況 | 居住中 |
| 駐車場 | 敷地内有 (賃貸) 空き:20台有り 月額 5,000円〜10,000円 (確認日:西暦2025年12月22日現在) |
| 建物構造 | 鉄筋コンクリート造 |
| 総戸数 | 116戸 |
| 管理会社 | 三井不動産レジデンシャルサービス(株) |
| 管理形態 | 管理会社に全部委託 |
| 管理員の 勤務形態 | 日勤 |
| 土地権利 | 所有権 |
| 分譲会社 | 三井不動産レジデンシャル(株) (新築分譲時における売主) |
| 施工会社 | (株)鴻池組 |
| 設計会社 | (株)鴻池組 |
| 備考 | ■保留地 柏都市計画事業柏北部中央地区一体型特定土地区画整理事業147街区1画地 ■土地登記費用預託金:440,000円 ■全体管理費:月額12,060円、F棟管理費:月額8,190円 ■全体修繕積立金:月額1,450円、F棟修繕積立金:月額13,370円 |
| 引渡時期 | 2026年07月下旬以降 |
| 取引態様 | 仲介 |
| 更新日 | 2026年04月25日 |
| 次回更新予定 | 2026年05月09日 |
| 物件番号 | FSNAWA11 |
最新のAI技術を活用した相談サービスです。
お客様一人ひとりのニーズに合わせて最適な情報をご提供します。
リハウスAIチャットの詳しい説明はこちら
GoogleMaps
| 病院 | 辻仲病院柏の葉 約150m(徒歩2分) |
| 小学校 | 柏の葉小学校 約1750m(徒歩22分) |
| 中学校 | 柏の葉中学校 約1750m(徒歩22分) |
| その他利便施設1 | 柏の葉T-SITE 約250m(徒歩4分) |
| その他利便施設2 | 柏の葉キャンパス駅 約450m(徒歩6分) |
| その他利便施設3 | ららぽーと柏の葉 約360m(徒歩5分) |
0120-988-887
0120-988-887
物件の売却をご検討の方は、 はやめの査定依頼がおすすめです!
買い替えをご検討の方はこちら0120-988-887

