世田谷区成城5丁目
小田急電鉄小田原線 成城学園前駅 徒歩3分
3LDK / 112.85㎡
2018年09月築
47,000万円



| 物件種別 | 中古マンション |
| 所在地 | GoogleMaps |
| 交通 | |
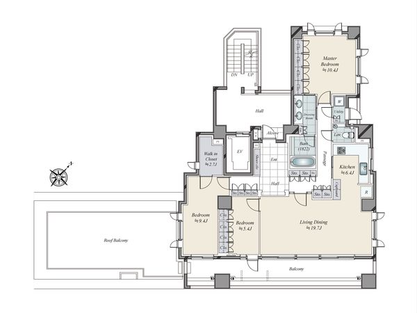
| 間取り | 3LDK |
| 専有面積 | 131.01㎡(約39.63坪) |
| 築年月 | 2005年02月築 |
| 階数 / 階建 | 9階 / 地上12階 地下1階建 |
| 向き | 南 |
■マンションおすすめポイント ○ 駅近・好立地 東急田園都市線「用賀」駅徒歩4分、「桜新町」駅徒歩9分。駅から近く、生活利便性が高い立地 ○ 高台に位置し、南側は第一種低層住居専用地域のため前面に建物がなく、眺望通風良好 ○ ペット飼育可(規約あり)ペットサニタリー設置。ペットと快適に暮らせる環境。 ○ 24時間ゴミ出し可能 ○ 宅配ボックス(不在時でも荷物受取可) ■お部屋の特徴 ○ 専有面積131.01平米3LDK ○ ルーフバルコニー面積39.76平米+バルコニー面積25.05平米 ○ 本マンション9階部分は本住戸のみ(4方角部屋) ○ 充実した設備・仕様 ・床暖房(リビング・キッチン) ・ディスポーザー・浄水器付きシステムキッチン ・オートバス・浴室換気乾燥機 ・TVモニター付きインターホン ・天井埋込み型カセットエアコン
| 所在地 | GoogleMaps |
| 価格 | 47,000万円 |
| 交通 | |
| 管理費等 | 29,600円 |
| 修繕積立金 | 56,990円 |
| その他費用 | ルーフバルコニー使用料 1,190円 / 月 |
| 間取り | 3LDK |
| 専有面積 | 131.01㎡(約39.63坪) |
| 築年月 | 2005年02月築 |
| 階数 / 階建 | 9階 / 地上12階 地下1階建 |
| 向き | 南 |
| バルコニー | 25.05㎡ |
| ルーフバルコニー | 39.76㎡ |
| 現況 | 居住中 |
| 駐車場 | 敷地内有 (賃貸) 空き:7台有り 月額 8,000円〜30,000円 (確認日:西暦2025年11月20日現在) |
| 建物構造 | 鉄筋コンクリート造 |
| 総戸数 | 65戸 |
| 管理会社 | (株)モリモトクオリティ |
| 管理形態 | 管理会社に全部委託 |
| 管理員の 勤務形態 | 日勤 |
| 土地権利 | 所有権 |
| 分譲会社 | (株)モリモト (新築分譲時における売主) |
| 施工会社 | 東急建設(株) |
| 設計会社 | (株)スペーステック一級建築士事務所 |
| 備考 | - |
| 引渡時期 | 相談 |
| 取引態様 | 仲介 |
| 更新日 | 2026年05月11日 |
| 次回更新予定 | 2026年05月25日 |
| 物件番号 | FW9AUA0A |
最新のAI技術を活用した相談サービスです。
お客様一人ひとりのニーズに合わせて最適な情報をご提供します。
リハウスAIチャットの詳しい説明はこちら
0120-78-3131
リノベーション工事の可能範囲については、本物件の管理組合規約等により一定の制限が加わる場合がございます。詳細については、工事内容の確定後に判明する部分もありますので、この点については事前にお含みおきください。
リノベーションに関するお問い合わせ0120-78-3131
物件の売却をご検討の方は、 はやめの査定依頼がおすすめです!
買い替えをご検討の方はこちら0120-78-3131

