港区高輪1丁目
都営三田線 白金高輪駅 徒歩1分
3LDK / 84.48㎡
2022年11月築
40,800万円



| 物件種別 | 中古マンション |
| 所在地 | GoogleMaps |
| 交通 | 都営浅草線 高輪台駅 徒歩4分 |
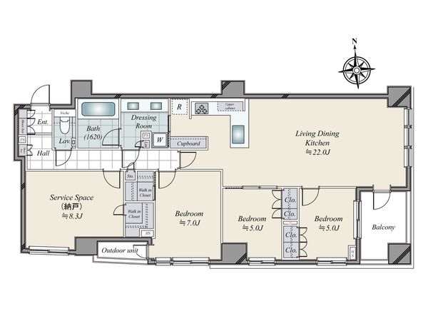
| 間取り | 3SLDK ※S・サービススペースは納戸です |
| 専有面積 | 101.81㎡(約30.79坪) |
| 築年月 | 2022年07月築 |
| 階数 / 階建 | 4階 / 地上8階 地下1階建 |
| 向き | 東 |
-物件のおすすめポイント- ▼立地 ・都営浅草線「高輪台」駅徒歩4分の好立地 ・JR「品川」駅徒歩9分、複数路線利用可能 ▼マンションの特徴 ・令和4年築の鉄筋コンクリート造、全34戸 ・分譲は株式会社オープンハウス・ディベロップメント ・管理は株式会社東急コミュニティーによる巡回方式 ▼お部屋の特徴 ・専有面積約101平米超の3LDK+約8.3帖サービスルーム ・東・南向き角住戸で明るく開放的なリビング約22帖 ・リビング窓からグランドプリンスホテルの緑を望む ・実質4LDKとして利用可能なゆとりの間取り ・ウォークインクローゼット2か所完備で収納充実 ▼設備 ・床暖房完備のLDKで快適な室内環境 ・天井カセットエアコン、Miele食洗機を採用 ・玄関・廊下・洗面室に大判タイルと間接照明設置 ・洗面2ボウル、1620サイズの浴室でゆとりある水回り ・キッチン・洗面はシーザーストーン天板使用 ▼周辺環境 ・品川駅西口地区再開発隣接、無電柱化・歩道拡幅予定 ・徒歩圏にスーパーや商業施設が充実 ・高輪台駅周辺は落ち着いた住宅街で利便性良好 ■ ご希望の住まい探しをお手伝いします ━━━━━・・・ 物件の詳細・ご相談はお気軽にお問い合わせください。
| 所在地 | GoogleMaps |
| 価格 | 40,800万円 |
| 交通 | 都営浅草線 高輪台駅 徒歩4分 |
| 管理費等 | 26,900円 |
| 修繕積立金 | 25,500円 |
| その他費用 | インターネット・町会費 1,520円 / 月 |
| 間取り | 3SLDK ※S・サービススペースは納戸です |
| 専有面積 | 101.81㎡(約30.79坪) |
| 築年月 | 2022年07月築 |
| 階数 / 階建 | 4階 / 地上8階 地下1階建 |
| 向き | 東 |
| バルコニー | 6.08㎡ |
| 現況 | 空家 |
| 駐車場 | - |
| 建物構造 | 鉄筋コンクリート造 |
| 管理形態 | 管理会社に全部委託 |
| 管理員の 勤務形態 | 巡回 |
| 土地権利 | 所有権 |
| 分譲会社 | - |
| 備考 | - |
| 引渡時期 | 相談 |
| 取引態様 | 仲介 |
| 更新日 | 2026年04月30日 |
| 次回更新予定 | 2026年05月14日 |
| 物件番号 | FW9BTA0D |
最新のAI技術を活用した相談サービスです。
お客様一人ひとりのニーズに合わせて最適な情報をご提供します。
リハウスAIチャットの詳しい説明はこちら
0120-78-3131
0120-78-3131
物件の売却をご検討の方は、 はやめの査定依頼がおすすめです!
買い替えをご検討の方はこちら0120-78-3131

