足立区栗原3丁目
東武伊勢崎・大師線 西新井駅 徒歩10分
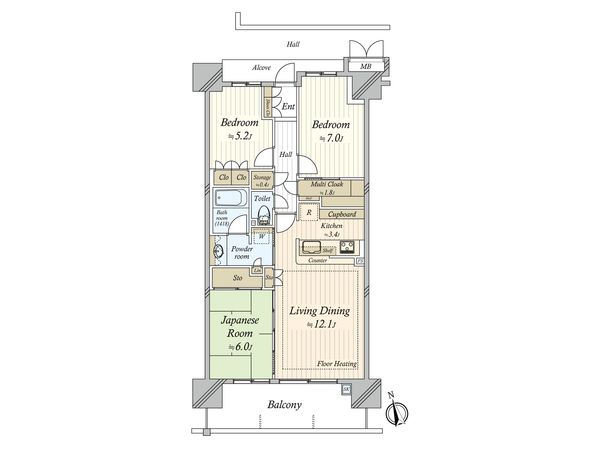
3LDK / 81.94㎡
2003年02月築
7,380万円



| 物件種別 | 中古マンション |
| 所在地 | GoogleMaps |
| 交通 | 日暮里舎人ライナー 足立小台駅 徒歩5分 |
| 間取り | 3LDK |
| 専有面積 | 75.93㎡(約22.96坪) |
| 築年月 | 2012年01月築 |
| 階数 / 階建 | 2階 / 地上14階建 |
| 向き | 南西 |
~水辺に心なごませるリバーサイドレジデンス~ 【グランマークスツインフォート】 ▼立地 ・日暮里舎人ライナー「足立小台」駅 徒歩5分 ▼充実した周辺施設、耐震性向上、水辺利用 ・徒歩約1分に大型商業施設あり (スーパーマーケット、ドラッグストア、ホームセンター) ・鋼管コンクリート杭による耐震性の向上 ・スーパー堤防による洪水対策 ▼マンションの特徴 ・2012年(平成24年)1月築 ・総戸数248戸(A棟110戸、B棟138戸) ・ALSOKのセキュリティシステム採用 ・24時間ゴミ出し可能 ・宅配ボックス ・オートロック ・ペット飼育可(細則有) ・メンテナンス性、遮音性に優れた二重天井 ・断熱性が高まる複層ガラス ▼お部屋の特徴 ・専有面積75.93平米の3LDK ・居室天井高は約2.6m ・会話が弾む対面式キッチン(ディスポーザー付) ・ノック開閉式ビルトイン食洗機 ・浄水器一体型シャワー水栓 ・生ごみ処理に便利なディスポーザー ・キッチンに備付カップボード ・キッチンカウンター下に備付収納あり ・廊下に姿見鏡 ・洗濯機置場に上部吊戸棚 ・浴室サイズ(1418) ・またぎが少ない低床タイプのユニットバス ・24時間換気付き浴室換気乾燥暖房 ・洗浄便座付のトイレ ・TES温水式床暖房(LD部分) ・収納豊富なお部屋です ・奥行約2mの広々としたバルコニー ・カラーモニター付インターホン ■ご希望の住まい探しをお手伝いします ━━━━━ ・・・ 物件の詳細・ご相談はお気軽にお問い合わせください。
| 所在地 | GoogleMaps |
| 価格 | 7,380万円 |
| 交通 | 日暮里舎人ライナー 足立小台駅 徒歩5分 |
| 管理費等 | 9,500円 |
| 修繕積立金 | 17,780円 |
| その他費用 | - |
| 間取り | 3LDK |
| 専有面積 | 75.93㎡(約22.96坪) |
| 築年月 | 2012年01月築 |
| 階数 / 階建 | 2階 / 地上14階建 |
| 向き | 南西 |
| バルコニー | 12.6㎡ |
| 現況 | 居住中 |
| 駐車場 | - |
| 建物構造 | 鉄筋コンクリート造 |
| 総戸数 | 138戸 |
| 管理会社 | (株)長谷工コミュニティ |
| 管理形態 | 管理会社に全部委託 |
| 管理員の 勤務形態 | 日勤 |
| 土地権利 | 所有権 |
| 分譲会社 | 東レ建設(株)、京阪電鉄不動産(株) (新築分譲時における売主) |
| 施工会社 | (株)長谷工コーポレーション |
| 設計会社 | (株)長谷工コーポレーション |
| 備考 | - |
| 引渡時期 | 相談 |
| 取引態様 | 仲介 |
| 更新日 | 2026年05月17日 |
| 次回更新予定 | 2026年05月31日 |
| 物件番号 | FX4AUA08 |
最新のAI技術を活用した相談サービスです。
お客様一人ひとりのニーズに合わせて最適な情報をご提供します。
リハウスAIチャットの詳しい説明はこちら
GoogleMaps
| スーパー | オーケー足立小台店 約110m(徒歩2分) |
| スーパー | コモディイイダ小台店 約1280m(徒歩16分) |
| 公園 | 区立小台東公園 約690m(徒歩9分) |
| 病院 | 夢眠クリニック埼京 約690m(徒歩9分) |
| 小学校 | 足立区立宮城小学校 約1240m(徒歩16分) |
| 中学校 | 足立区立江南中学校 約1600m(徒歩20分) |
| その他利便施設1 | どらっぐぱぱす小台店 約1060m(徒歩14分) |
| その他利便施設2 | 島忠ホームズ足立小台店 約110m(徒歩2分) |
| その他利便施設3 | ファミリーマート小台二丁目店 約770m(徒歩10分) |
三井不動産リアルティ株式会社
国土交通大臣(15)第777号
0120-996-331
0120-996-331
物件の売却をご検討の方は、 はやめの査定依頼がおすすめです!
買い替えをご検討の方はこちら0120-996-331

