ネオハイツ東生駒
3,180万円



| 物件種別 | 中古マンション |
| 所在地 | GoogleMaps |
| 交通 | 近鉄難波・奈良線 東生駒駅 徒歩3分 |
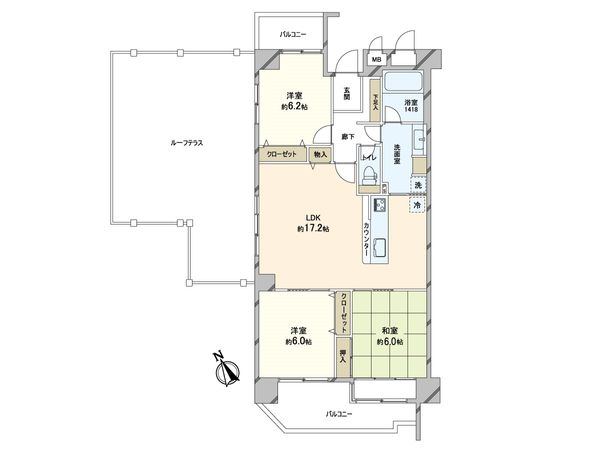
| 間取り | 3LDK |
| 専有面積 | 82.34㎡(約24.9坪) |
| 築年月 | 1991年12月築 |
| 階数 / 階建 | 5階 / 地上8階建 |
| 向き | 南西 |
この物件情報を共有する
おすすめポイント
設備
- 浴室乾燥機
- オートロック
◇おすすめポイント ・近鉄難波・奈良線「東生駒」駅 徒歩3分 ・8階建マンションの5階部分につき眺望良好 ・50.91平米のルーフテラス付き住戸 ・広々とした約17.2帖のLDK ・対面式システムキッチン ・全居室6帖以上 ・全居室収納有 ・浴室換気乾燥暖房機 ・浄水器一体型水栓 ・オートロック付きマンション ・不在時に嬉しい宅配ボックス有 ・徒歩5分圏内にスーパー・コンビニが揃う便利な立地 *リフォーム内容(2026年5月実施) ・キッチン、浴室、トイレ、洗面化粧台新調 ・建具、給湯器新調 ・全室クロス張替え(壁・天井) ・全居室フローリング張替え、畳新調、襖・障子張替え ・クッションフロア張替え(洗面室・トイレ) *周辺環境 ・ハーベス東生駒店 徒歩4分(約270m) ・ファミリーマート近鉄東生駒駅前店 徒歩4分(約310m) ・生駒市立桜ケ丘小学校 徒歩13分(約980m) ■ ご希望の住まい探しをお手伝いします ━━━━━・・・ 物件の詳細・ご相談はお気軽にお問い合わせください。
リノベーション&リフォーム情報(予定含む)
全室クロス/壁紙貼り替え | 台所(キッチン)交換 |
バスルーム交換 | トイレ交換 |
洗面化粧台交換 | 床貼り替え |
給湯器交換 |
水回り(キッチン、浴室、トイレ、洗面所、給湯器)(2026年5月)
内装(全室クロス、床、壁)(2026年5月)
物件情報
| 所在地 | GoogleMaps |
| 価格 | 3,180万円 |
| 交通 | 近鉄難波・奈良線 東生駒駅 徒歩3分 |
| 管理費等 | 14,400円 |
| 修繕積立金 | 9,800円 |
| その他費用 | ルーフテラス使用料 2,040円 / 月、CATV使用料 700円 / 月 |
| 間取り | 3LDK |
| 専有面積 | 82.34㎡(約24.9坪) |
| 築年月 | 1991年12月築 |
| 階数 / 階建 | 5階 / 地上8階建 |
| 向き | 南西 |
| バルコニー | 8.66㎡ |
| 現況 | 空家 |
| 駐車場 | 空き無 |
| 建物構造 | 鉄筋コンクリート造 |
| 総戸数 | 44戸 |
| 管理会社 | 大和ライフネクスト(株) |
| 管理形態 | 管理会社に全部委託 |
| 管理員の 勤務形態 | 日勤 |
| 土地権利 | 所有権 |
| 分譲会社 | 大和団地(株) (新築分譲時における売主) |
| 施工会社 | モリタ建設(株) |
| 設計会社 | 岸本建築設計事務所 |
| 備考 | ※ルーフテラス面積:50.91平米 |
| 引渡時期 | 相談 |
| 取引態様 | 仲介 |
| 更新日 | 2026年04月30日 |
| 次回更新予定 | 2026年05月14日 |
| 物件番号 | FXUBDA06 |
この物件のことを
AIに聞いてみませんか?
最新のAI技術を活用した相談サービスです。
お客様一人ひとりのニーズに合わせて最適な情報をご提供します。
リハウスAIチャットの詳しい説明はこちら

周辺情報
GoogleMaps
| スーパー | ハーベス東生駒店 約270m(徒歩4分) |
| 公園 | 辻町第八公園 約280m(徒歩4分) |
| 病院 | 生駒市立病院 約500m(徒歩7分) |
| 小学校 | 生駒市立桜ケ丘小学校 約980m(徒歩13分) |
| 中学校 | 生駒市立生駒中学校 約2000m(徒歩25分) |
| その他利便施設1 | スギ薬局生駒店 約850m(徒歩11分) |
| その他利便施設2 | ファミリーマート近鉄東生駒駅前店 約310m(徒歩4分) |
| その他利便施設3 | 生駒市図書館 約450m(徒歩6分) |
| その他利便施設4 | 東生駒駅(近鉄 奈良線) 約240m(徒歩3分) |
取扱店舗
三井のリハウス 学園前センター
- 営業時間10:00~18:00
- 定休日毎週火曜日・水曜日
0120-389-321
同じマンションの売買物件情報
生駒市の物件情報
この物件を見学してみませんか?
この物件についてお問い合わせ
物件・住環境の詳しい情報、購入・ローン相談など、ささいなことでもお気軽にお問い合わせください。三井のリハウス 学園前センター
- 営業時間10:00~18:00
- 定休日毎週火曜日・水曜日
0120-389-321

物件の売却をご検討の方は、 はやめの査定依頼がおすすめです!
買い替えをご検討の方はこちら見学予約
お問い合わせ
0120-389-321
- 営業時間 10:00~18:00
- 定休日 毎週火曜日・水曜日


