芦屋市南宮町
阪神本線 打出駅 徒歩8分
4LDK / 106.69㎡
1997年08月築
4,280万円



| 物件種別 | 中古マンション |
| 所在地 | GoogleMaps |
| 交通 | |
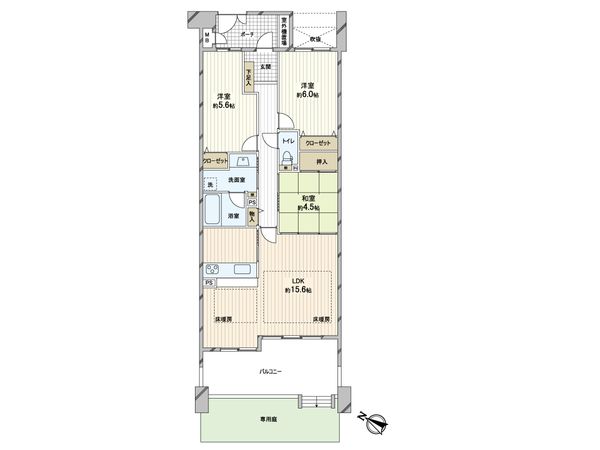
| 間取り | 3LDK |
| 専有面積 | 70.8㎡(約21.41坪) |
| 築年月 | 1997年08月築 |
| 階数 / 階建 | 1階 / 地上5階 地下1階建 |
| 向き | 西 |
返済計画を入力すると毎月のお支払い目安を表示できます
■ おすすめポイント ━━━━━━━━━━━━━━━・・・・ 〇 専用庭付きでガーデニングやお子様の遊び場にもなります。 〇 ハイサッシで開放感のあるリビングです。 〇 70.8平米の3LDKでゆとりのある間取り 〇 バルコニー&床暖房付きリビング 〇 阪神本線「打出」駅 徒歩8分 ■令和7年10月リフォーム完了―――――――――――― 〇 キッチン:食洗機付きシステムキッチンを新調 〇 トイレ:温水洗浄便座を新調 〇 床材:フローリング全室張替え 〇 給湯設備:給湯器を交換 〇 建具:室内建具を新調 〇 インターホン:モニター付きインターホンを新調 〇 浴室:浴室乾燥機付きユニットバスを新調 〇 洗面台:洗面化粧台を新調 〇 洗濯機置場:洗濯パンを新調 〇 壁紙:クロス全室張替え 〇 分電盤:交換 〇 照明:ダウンライト新設
| 所在地 | GoogleMaps |
| 価格 | 4,280万円 |
| 交通 | |
| 管理費等 | 11,820円 |
| 修繕積立金 | 11,330円 |
| その他費用 | - |
| 間取り | 3LDK |
| 専有面積 | 70.8㎡(約21.41坪) |
| 築年月 | 1997年08月築 |
| 階数 / 階建 | 1階 / 地上5階 地下1階建 |
| 向き | 西 |
| バルコニー | 17.7㎡ |
| 現況 | 空家 |
| 駐車場 | 空き無 |
| 建物構造 | 鉄筋コンクリート造 |
| 総戸数 | 167戸 |
| 管理会社 | 三菱地所コミュニティ(株) |
| 管理形態 | 管理会社に全部委託 |
| 管理員の 勤務形態 | 日勤 |
| 土地権利 | 所有権 |
| 分譲会社 | 丸紅(株) (新築分譲時における売主) |
| 施工会社 | (株)藤木工務店 |
| 設計会社 | (株)IAO竹田設計 |
| 備考 | - |
| 引渡時期 | 相談 |
| 取引態様 | 仲介 |
| 更新日 | 2026年02月08日 |
| 次回更新予定 | 2026年02月22日 |
| 物件番号 | FXZAGA27 |
最新のAI技術を活用した相談サービスです。
お客様一人ひとりのニーズに合わせて最適な情報をご提供します。
リハウスAIチャットの詳しい説明はこちら
GoogleMaps
| その他利便施設1 | 打出駅(阪神 本線) 約590m(徒歩8分) |
| その他利便施設2 | 芦屋駅(JR西日本 東海道本線) 約1670m(徒歩21分) |
| その他利便施設3 | 芦屋駅(阪神 本線) 約1800m(徒歩23分) |
0120-84-3212
0120-84-3212
物件の売却をご検討の方は、 はやめの査定依頼がおすすめです!
買い替えをご検討の方はこちら0120-84-3212

