神戸市垂水区青山台6丁目
山陽電鉄本線 滝の茶屋駅 徒歩19分 送迎バス 山陽本線垂水駅バス10分徒歩2分
2LDK / 65.55㎡
2025年03月築
4,480万円



| 物件種別 | 中古マンション |
| 所在地 | GoogleMaps |
| 交通 | |
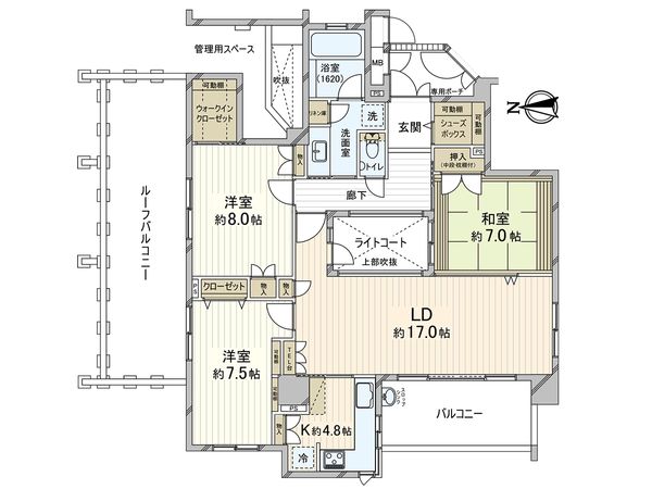
| 間取り | 3LDK |
| 専有面積 | 101.85㎡(約30.8坪) |
| 築年月 | 2008年06月築 |
| 階数 / 階建 | 5階 / 地上5階建 |
| 向き | 西 |
おすすめポイント----- ○ 5階部分の最上階住戸 ○ 角部屋(南・西・北に開口部有) ○ 平面分譲駐車場権利付き ○ 明石海峡大橋が一望できます。 ○ 101.85平米の広々とした3LDK ○ ペット飼育可能(規約制限有) ○ ライトコートから陽の光が差し込みます。 ○ バス停「西霞ヶ丘」まで停歩1分 ※垂水駅までバスで12分 リフォーム履歴(令和2年7月)----- ○ 浴室交換 ○ トイレ交換 ○ クッションフロア張替え(洗面所・トイレ) ○ クロス張替え(全居室) ○ 食洗機取り換え(キッチン) ○ 畳交換 ○ 給湯器交換
| 所在地 | GoogleMaps |
| 価格 | 4,480万円 |
| 交通 | |
| 管理費等 | 12,730円 |
| 修繕積立金 | 19,350円 |
| その他費用 | インターネット使用料 1,254円 / 月、ルーフバルコニー使用料 2,680円 / 月 |
| 間取り | 3LDK |
| 専有面積 | 101.85㎡(約30.8坪) |
| 築年月 | 2008年06月築 |
| 階数 / 階建 | 5階 / 地上5階建 |
| 向き | 西 |
| バルコニー | 9.4㎡ |
| ルーフバルコニー | 23.81㎡ |
| 現況 | 空家 |
| 駐車場 | 敷地内有 (所有権) 空き:1台有り 月額 4,470円 (確認日:西暦2026年02月12日現在) |
| 建物構造 | 鉄筋コンクリート造 |
| 総戸数 | 25戸 |
| 管理会社 | グローバルコミュニティ(株) |
| 管理形態 | 管理会社に全部委託 |
| 管理員の 勤務形態 | 巡回 |
| 土地権利 | 所有権 |
| 分譲会社 | ヤマト住建(株) (新築分譲時における売主) |
| 施工会社 | (株)間組 |
| 設計会社 | (株)NAK建築事務所 |
| 備考 | 駐車場欄は、本物件の分譲駐車場の内容を記載しています。 |
| 引渡時期 | 相談 |
| 取引態様 | 仲介 |
| 更新日 | 2026年05月28日 |
| 次回更新予定 | 2026年06月11日 |
| 物件番号 | FY1ASA07 |
最新のAI技術を活用した相談サービスです。
お客様一人ひとりのニーズに合わせて最適な情報をご提供します。
リハウスAIチャットの詳しい説明はこちら
GoogleMaps
| スーパー | コープミニ霞ヶ丘 約800m(徒歩10分) |
| スーパー | コープミニ東舞子 約850m(徒歩11分) |
| 公園 | 西霞ケ丘公園 約10m(徒歩1分) |
| 病院 | 谷山内科クリニック 約280m(徒歩4分) |
| 小学校 | 霞ケ丘小学校 約600m(徒歩8分) |
| 中学校 | 歌敷山中学校 約500m(徒歩7分) |
| その他利便施設1 | セブンイレブン神戸垂水星が丘1丁目店 約450m(徒歩6分) |
| その他利便施設2 | 垂水郵便局 約650m(徒歩9分) |
| その他利便施設3 | キリン堂垂水星が丘店 約550m(徒歩7分) |
三井不動産リアルティ株式会社
国土交通大臣(15)第777号
0120-9332-31
0120-9332-31
物件の売却をご検討の方は、 はやめの査定依頼がおすすめです!
買い替えをご検討の方はこちら0120-9332-31

