藤和明石公園ハイタウン 弐号棟
3LDK/66㎡(約19.96坪)
1日前に価格変更
1,890万円



物件情報
おすすめポイント
周辺情報
取扱店舗
| 物件種別 | 中古マンション |
| 所在地 | GoogleMaps |
| 交通 | |
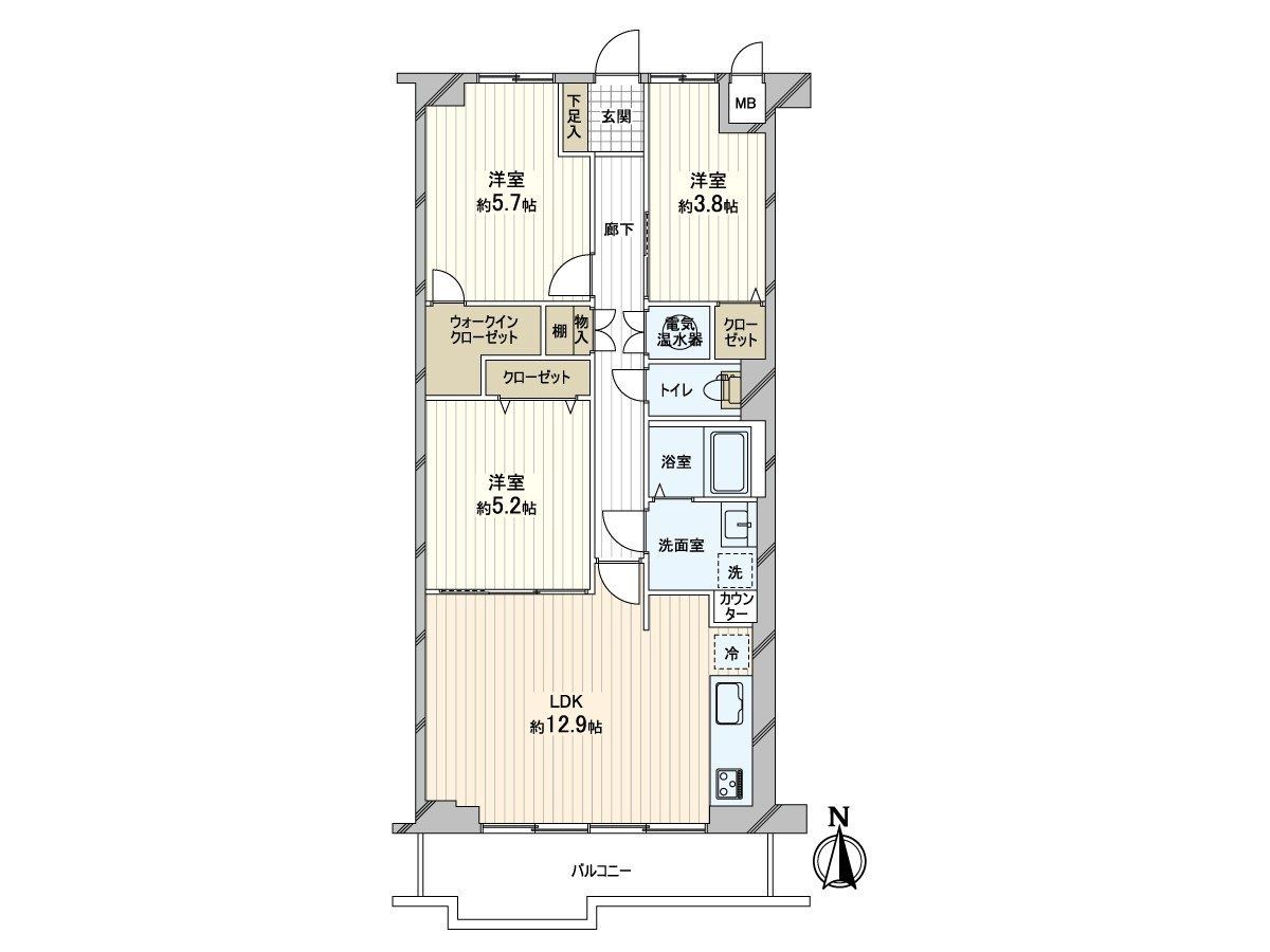
| 間取り | 3LDK |
| 専有面積 | 66㎡(約19.96坪) |
| 築年月 | 1981年02月築 |
| 階数 / 階建 | 8階 / 地上9階建 |
| 向き | 南 |
この物件情報を共有する
おすすめポイント
設備
- ウォークインクローゼット
特徴
- 全居室フローリング
■ おすすめポイントーーーーーー ○ JR山陽本線「明石」駅 徒歩15分 ○ 南向きのため陽当たり良好 ○ 8階部分のため眺望・通風良好 ○ 268戸の大規模マンション ■ リフォーム内容(令和7年12月上旬 完了予定)ーーーーー ○ システムキッチン新規交換 ○ ユニットバス新規交換 ○ 洗面化粧台新規交換 ○ トイレ新規交換 ○ 建具新規交換(クローゼット含む各居室) ○ クロス貼替(廊下、LDK含む各居室) ○ フローリング張替(廊下、LDK含む各居室)
リノベーション&リフォーム情報
全室クロス/壁紙貼り替え | 台所(キッチン)交換 |
バスルーム交換 | トイレ交換 |
洗面化粧台交換 | 床貼り替え |
扉交換 |
水回り(キッチン、浴室、トイレ、洗面所)(2025年12月)
内装(全室クロス、床、建具)(2025年12月)
物件情報
| 所在地 | GoogleMaps |
| 価格 | 1,890万円 |
| 交通 | |
| 管理費等 | 7,090円 |
| 修繕積立金 | 10,090円 |
| その他費用 | - |
| 間取り | 3LDK |
| 専有面積 | 66㎡(約19.96坪) |
| 築年月 | 1981年02月築 |
| 階数 / 階建 | 8階 / 地上9階建 |
| 向き | 南 |
| バルコニー | 7.05㎡ |
| 現況 | 空家 |
| 駐車場 | 空き無 |
| 建物構造 | 鉄骨鉄筋コンクリート造 |
| 総戸数 | 268戸 |
| 管理会社 | 三菱地所コミュニティ(株) |
| 管理形態 | 管理会社に全部委託 |
| 管理員の 勤務形態 | 日勤 |
| 土地権利 | 所有権 |
| 分譲会社 | 藤和不動産(株) (新築分譲時における売主) |
| 施工会社 | フジタ工業(株)、明石土建工業(株) |
| 設計会社 | フジタ工業(株) |
| 備考 | - |
| 引渡時期 | 相談 |
| 取引態様 | 仲介 |
| 更新日 | 2026年05月24日 |
| 次回更新予定 | 2026年06月07日 |
| 物件番号 | FYEAGA93 |
この物件のことを
AIに聞いてみませんか?
最新のAI技術を活用した相談サービスです。
お客様一人ひとりのニーズに合わせて最適な情報をご提供します。
リハウスAIチャットの詳しい説明はこちら

周辺情報
GoogleMaps
| その他利便施設1 | 明石駅(JR西日本 山陽本線) 約1180m(徒歩15分) |
| その他利便施設2 | パピオス明石 約1400m(徒歩18分) |
取扱店舗
三井のリハウス 西神中央センター
- 営業時間
- 10:00~18:00
- 定休日
- 毎週火曜日・水曜日
- 住所
- 兵庫県神戸市西区糀台5丁目9-4 西神中央駅ビル2F
三井不動産リアルティ株式会社
国土交通大臣(15)第777号
三井のリハウス 西神中央センター
- 営業時間10:00~18:00
- 定休日毎週火曜日・水曜日
0120-9770-31
あなたへのおすすめ
明石市の物件情報
この物件を見学してみませんか?
この物件についてお問い合わせ
物件・住環境の詳しい情報、購入・ローン相談など、ささいなことでもお気軽にお問い合わせください。三井のリハウス 西神中央センター
- 営業時間10:00~18:00
- 定休日毎週火曜日・水曜日
0120-9770-31

物件の売却をご検討の方は、 はやめの査定依頼がおすすめです!
買い替えをご検討の方はこちら見学予約
お問い合わせ
0120-9770-31
- 営業時間 10:00~18:00
- 定休日 毎週火曜日・水曜日


