神戸市西区春日台3丁目
地下鉄西神・山手線 西神中央駅 バス10分 春日台3丁目 停歩3分
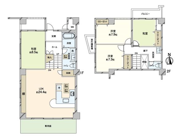
4LDK / 96.3㎡
1993年08月築
2,280万円



| 物件種別 | 中古マンション |
| 所在地 | GoogleMaps |
| 交通 | 地下鉄西神・山手線 西神中央駅 バス7分 春日台小学校 停歩6分 |
| 間取り | 4LDK |
| 専有面積 | 118.49㎡(約35.84坪) |
| 築年月 | 1992年08月築 |
| 階数 / 階建 | 1階 / 地上6階建 |
| 向き | 南 |
返済計画を入力すると毎月のお支払い目安を表示できます
■おすすめポイントーーーーーーーーーーーー ○ 戸建感覚のメゾネットタイプ ○ 南・西・北の三方角住戸 ○ 階下に住戸なし ○ 専用庭あり ○ 平面駐車場空きあり(サイズ制限あり)
| 所在地 | GoogleMaps |
| 価格 | 2,280万円 |
| 交通 | 地下鉄西神・山手線 西神中央駅 バス7分 春日台小学校 停歩6分 |
| 管理費等 | 9,300円 |
| 修繕積立金 | 25,000円 |
| その他費用 | エレベーター管理費 4,200円 / 月、CATV使用料 600円 / 月、専用庭使用料 450円 / 月 |
| 間取り | 4LDK |
| 専有面積 | 118.49㎡(約35.84坪) |
| 築年月 | 1992年08月築 |
| 階数 / 階建 | 1階 / 地上6階建 |
| 向き | 南 |
| バルコニー | - |
| 現況 | 居住中 |
| 駐車場 | 敷地内有 (賃貸) 空き:4台有り 月額 1,000円 (確認日:西暦2025年10月31日現在) |
| 建物構造 | 鉄筋コンクリート造 |
| 総戸数 | 18戸 |
| 管理会社 | 日本総合住生活(株) |
| 管理形態 | 管理会社に一部委託 |
| 管理員の 勤務形態 | 日勤 |
| 土地権利 | 所有権 |
| 分譲会社 | 住宅・都市整備公団 (新築分譲時における売主) |
| 施工会社 | (株)イチケン、(株)熊谷組 |
| 設計会社 | 住宅・都市整備公団 |
| 備考 | - |
| 引渡時期 | 相談 |
| 取引態様 | 仲介 |
| 更新日 | 2025年11月28日 |
| 次回更新予定 | 2025年12月12日 |
| 物件番号 | FYEASA0A |
最新のAI技術を活用した相談サービスです。
お客様一人ひとりのニーズに合わせて最適な情報をご提供します。
リハウスAIチャットの詳しい説明はこちら
GoogleMaps
| スーパー | コープ西神 約270m(徒歩4分) |
| 小学校 | 神戸市立春日台小学校 約150m(徒歩2分) |
| 中学校 | 神戸市立平野中学校 約100m(徒歩2分) |
| その他利便施設1 | 神戸春日台郵便局 約240m(徒歩3分) |
三井不動産リアルティ株式会社
国土交通大臣(15)第777号
0120-9770-31
リノベーション工事の可能範囲については、本物件の管理組合規約等により一定の制限が加わる場合がございます。詳細については、工事内容の確定後に判明する部分もありますので、この点については事前にお含みおきください。
リノベーションに関するお問い合わせ0120-9770-31
物件の売却をご検討の方は、 はやめの査定依頼がおすすめです!
買い替えをご検討の方はこちら0120-9770-31

