ライオンズマンション上賀茂
3LDK/113.51㎡(約34.33坪)
5,980万円

リハウスおすすめ物件


物件情報
おすすめポイント
周辺情報
取扱店舗
| 物件種別 | 中古マンション |
| 所在地 | GoogleMaps |
| 交通 | 地下鉄烏丸線 北大路駅 バス12分 朝露ヶ原町 停歩1分 |
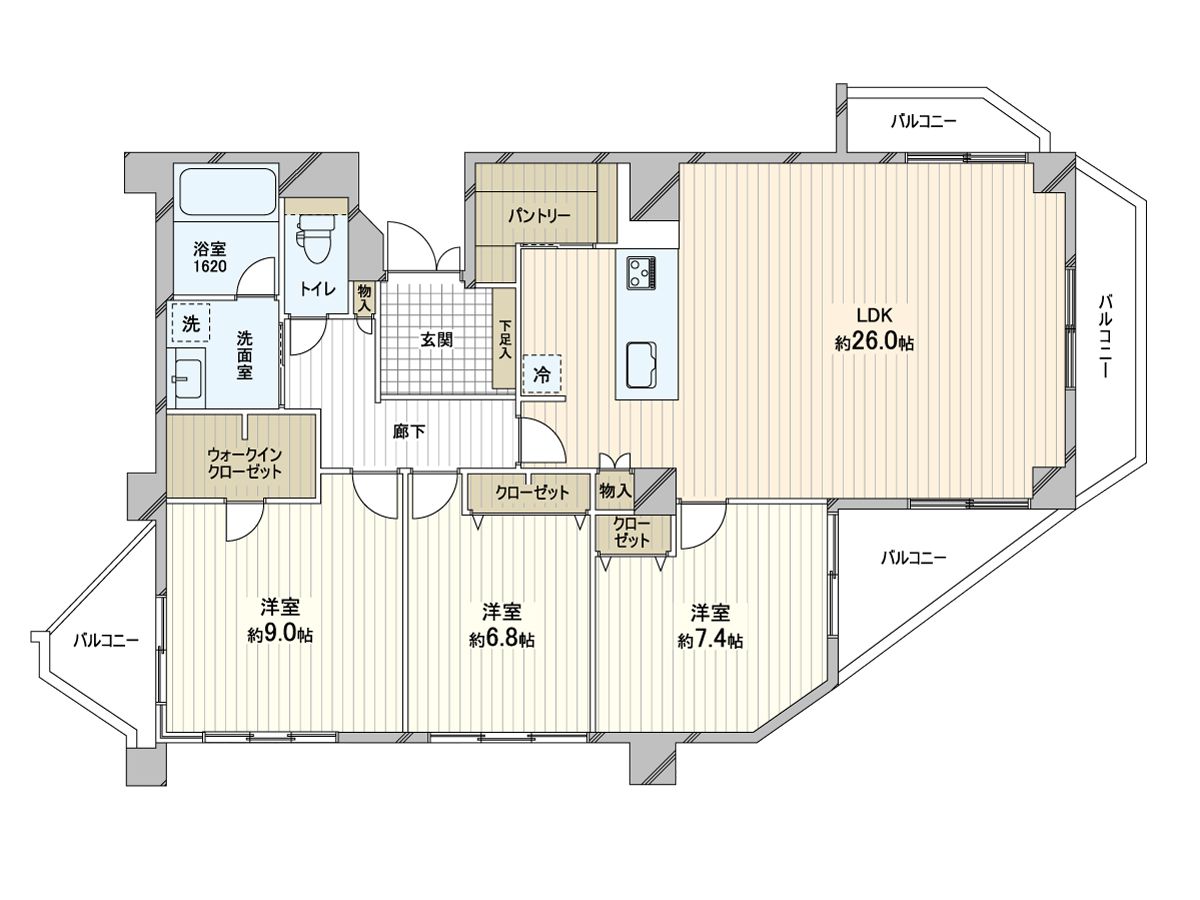
| 間取り | 3LDK |
| 専有面積 | 113.51㎡(約34.33坪) |
| 築年月 | 1989年09月築 |
| 階数 / 階建 | 3階 / 地上6階 地下1階建 |
| 向き | 北 |
この物件情報を共有する
予約制内覧会を開催します!
| 開催日 | 11月8日(土)10:00 ~ 16:00 11月9日(日)10:00 ~ 16:00 11月15日(土)10:00 ~ 16:00 11月16日(日)10:00 ~ 16:00 11月22日(土)10:00 ~ 16:00 |
|---|
毎月のお支払い目安
返済計画を入力すると毎月のお支払い目安を表示できます
- ローン168,807円
- 管理費+修繕積立金52,730円
- その他費用0円
お支払い目安221,537円
おすすめポイント
設備
- ウォークインクローゼット
- 浴室乾燥機
- 食器洗乾燥機
■ おすすめポイント ━━━━━━━━━━━━━━━・・・・・ ○ 3階部分北東角住戸 ○ 113.51平米の3LDKタイプ ○ 4面バルコニーにつき日当たり・通風良好 ○ ペット飼育可(管理規約による制限有) ○ 令和7年8月リフォーム完了
リノベーション&リフォーム情報
台所(キッチン)交換 | バスルーム交換 |
トイレ交換 | 洗面化粧台交換 |
水回り(キッチン、浴室、トイレ、洗面所)(2025年8月)
内装(全面)(2025年8月)
物件情報
| 所在地 | GoogleMaps |
| 価格 | 5,980万円 |
| 交通 | 地下鉄烏丸線 北大路駅 バス12分 朝露ヶ原町 停歩1分 |
| 管理費等 | 40,700円 |
| 修繕積立金 | 12,030円 |
| その他費用 | - |
| 間取り | 3LDK |
| 専有面積 | 113.51㎡(約34.33坪) |
| 築年月 | 1989年09月築 |
| 階数 / 階建 | 3階 / 地上6階 地下1階建 |
| 向き | 北 |
| バルコニー | 16.66㎡ |
| 現況 | 空家 |
| 駐車場 | 空き無 |
| 建物構造 | 鉄筋コンクリート造 |
| 総戸数 | 12戸 |
| 管理会社 | 株式会社大京アステージ |
| 管理形態 | 管理会社に全部委託 |
| 管理員の 勤務形態 | 巡回 |
| 土地権利 | 所有権 |
| 分譲会社 | 株式会社大京 (新築分譲時における売主) |
| 施工会社 | 鉄建建設株式会社 |
| 設計会社 | 株式会社二葉設計事務所 |
| 備考 | - |
| 引渡時期 | 相談 |
| 取引態様 | 仲介 |
| 更新日 | 2025年11月03日 |
| 次回更新予定 | 2025年11月17日 |
| 物件番号 | FYHARA05 |
周辺情報
GoogleMaps
| スーパー | フレスコ御薗橋店 約550m(徒歩7分) |
| 小学校 | 京都市立柊野小学校 約1300m(徒歩17分) |
| 中学校 | 京都市立加茂川中学校 約710m(徒歩9分) |
| その他利便施設1 | セブンイレブン京都上賀茂朝露ケ原町店 約260m(徒歩4分) |
| その他利便施設2 | 京都柊野郵便局 約560m(徒歩7分) |
取扱店舗
三井のリハウス 京都北センター
- 営業時間
- 10:00~18:00
- 定休日
- 毎週火曜日・水曜日
- 住所
- 京都府京都市左京区下鴨本町11-5 LANDSCAPE下鴨1F・2F
三井不動産リアルティ株式会社
国土交通大臣(15)第777号
三井のリハウス 京都北センター
- 営業時間10:00~18:00
- 定休日毎週火曜日・水曜日
0120-93-3431
あなたへのおすすめ
同じマンションの売買物件情報
京都市北区の物件情報
この物件を見学してみませんか?
この物件についてお問い合わせ
物件・住環境の詳しい情報、購入・ローン相談など、ささいなことでもお気軽にお問い合わせください。三井のリハウス 京都北センター
- 営業時間10:00~18:00
- 定休日毎週火曜日・水曜日
0120-93-3431

物件の売却をご検討の方は、 はやめの査定依頼がおすすめです!
買い替えをご検討の方はこちら見学予約
お問い合わせ
0120-93-3431
- 営業時間 10:00~18:00
- 定休日 毎週火曜日・水曜日



