神戸市灘区備後町2丁目
東海道本線(米原~神戸) 六甲道駅 徒歩5分
2SLDK / 73.76㎡
1985年01月築
3,780万円



| 物件種別 | 中古マンション |
| 所在地 | GoogleMaps |
| 交通 | |
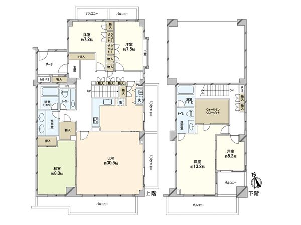
| 間取り | 5LDK |
| 専有面積 | 193.98㎡(約58.67坪) |
| 築年月 | 1992年03月築 |
| 階数 / 階建 | 6階 / 地上8階建 |
| 向き | 南西 |
予約制内覧会を開催します!
| 開催日 | 5月23日(土)10:00 ~ 16:00 5月24日(日)10:00 ~ 16:00 5月30日(土)10:00 ~ 16:00 5月31日(日)10:00 ~ 16:00 |
|---|
■メゾネットタイプの193.98平米の5LDK ■LDK約30.5帖で開放感あります ■日当り・眺望良好です ■室内丁寧にご利用されております ■2018年9月室内一部リフォーム済 ■LDK・全洋室のフローリング張替 ■全室クロス張替 ■和室の畳・襖・障子張替 ■トイレ交換(上階・下階) ■給湯器交換 ■洗面化粧台交換
| 所在地 | GoogleMaps |
| 価格 | 3,780万円 |
| 交通 | |
| 管理費等 | 73,753円 |
| 修繕積立金 | 69,570円 |
| その他費用 | トランクルーム使用料 2,000円 / 月 |
| 間取り | 5LDK |
| 専有面積 | 193.98㎡(約58.67坪) |
| 築年月 | 1992年03月築 |
| 階数 / 階建 | 6階 / 地上8階建 |
| 向き | 南西 |
| バルコニー | 50.63㎡ |
| 現況 | 空家 |
| 駐車場 | 敷地内有 (賃貸) 空き:1台有り 月額 25,000円 (確認日:西暦2025年12月25日現在) |
| 建物構造 | 鉄筋コンクリート造 |
| 総戸数 | 12戸 |
| 管理会社 | 住友不動産建物サービス(株) |
| 管理形態 | 管理会社に全部委託 |
| 管理員の 勤務形態 | 日勤 |
| 土地権利 | 所有権 |
| 分譲会社 | 住友不動産(株) (新築分譲時における売主) |
| 施工会社 | (株)大林組 |
| 備考 | - |
| 引渡時期 | 相談 |
| 取引態様 | 仲介 |
| 更新日 | 2026年05月14日 |
| 次回更新予定 | 2026年05月28日 |
| 物件番号 | FYYARA09 |
最新のAI技術を活用した相談サービスです。
お客様一人ひとりのニーズに合わせて最適な情報をご提供します。
リハウスAIチャットの詳しい説明はこちら
三井不動産リアルティ株式会社
国土交通大臣(15)第777号
0120-9215-31
0120-9215-31
物件の売却をご検討の方は、 はやめの査定依頼がおすすめです!
買い替えをご検討の方はこちら0120-9215-31

