平塚市天沼
東海道本線(東京~熱海) 平塚駅 徒歩17分
3LDK / 82.27㎡
2006年07月築
4,380万円



| 物件種別 | 中古マンション |
| 所在地 | GoogleMaps |
| 交通 | 東海道本線(東京~熱海) 平塚駅 徒歩7分 |
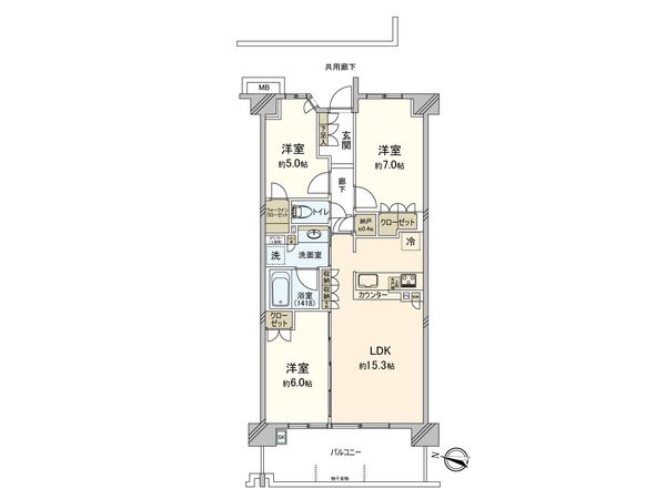
| 間取り | 3LDK |
| 専有面積 | 72.41㎡(約21.9坪) |
| 築年月 | 2012年10月築 |
| 階数 / 階建 | 3階 / 地上7階建 |
| 向き | 西 |
-物件のおすすめポイント- ▼マンションについて ・野村不動産旧分譲のブランドマンション ・緑豊かな雰囲気と自然の風合いを大切にしたマテリアル 時の経過とともに誇りと愛着を深めていく全134邸のレジデンス ▼立地 ・ ・ ・東海道線「平塚」駅平坦徒歩7分 ・2024年10月にOPENしたアークスクエア湘南平塚には、ホームセンター「スーパービバホーム」 家電量販店「ヤマダデンキ」食品スーパーマーケット「エイビイ」が揃っており、日々の暮らしを豊かに彩ります ▼物件の特徴 ・ ・ ・フロアコーティングを2024年9月に実施。室内丁寧にお使いです ・奥行約2mの開放的なバルコニー ・足元からポカポカ温まる床暖房付きで、家全体が心地よいぬくもりに包まれます ・家族との会話も弾む対面式キッチン ・衣類や小物をすっきり整理できるウォークインクローゼット付 ・ペット飼育可(規約制限あり) ・24時間ゴミ出し可能 ▼周辺環境 ・ ・ ・平塚市立花水小学校 徒歩12分(約940m) ・平塚市立浜岳中学校 徒歩10分(約730m) ・アークスクエア湘南平塚 徒歩7分(約550m) ・エイビイ平塚店 徒歩4分 (約280m) ・セブンイレブン平塚桃浜町店 徒歩6分(約430m) ■ 担当者より一言 ━━━━━━━━━━━━━━━・・・・・ お電話でのご相談も受付けておりますので、お気軽にお問合せ下さいませ。 皆様からのお問い合わせ心よりお待ちしております。
| 所在地 | GoogleMaps |
| 価格 | 4,380万円 |
| 交通 | 東海道本線(東京~熱海) 平塚駅 徒歩7分 |
| 管理費等 | 9,300円 |
| 修繕積立金 | 10,390円 |
| その他費用 | 共視聴施設負担金 215円 / 月、受入町内会費 250円 / 月 |
| 間取り | 3LDK |
| 専有面積 | 72.41㎡(約21.9坪) |
| 築年月 | 2012年10月築 |
| 階数 / 階建 | 3階 / 地上7階建 |
| 向き | 西 |
| バルコニー | 11.91㎡ |
| 現況 | 居住中 |
| 駐車場 | 空き無 |
| 建物構造 | 鉄筋コンクリート造 |
| 総戸数 | 134戸 |
| 管理会社 | 野村不動産パートナーズ株式会社 |
| 管理形態 | 管理会社に全部委託 |
| 管理員の 勤務形態 | 日勤 |
| 土地権利 | 所有権 |
| 分譲会社 | 野村不動産株式会社 (新築分譲時における売主) |
| 施工会社 | 株式会社長谷工コーポレーション |
| 設計会社 | 株式会社長谷工コーポレーション |
| 備考 | - |
| 引渡時期 | 相談 |
| 取引態様 | 仲介 |
| 更新日 | 2026年05月16日 |
| 次回更新予定 | 2026年05月30日 |
| 物件番号 | FZ2BBA0A |
最新のAI技術を活用した相談サービスです。
お客様一人ひとりのニーズに合わせて最適な情報をご提供します。
リハウスAIチャットの詳しい説明はこちら
GoogleMaps
| スーパー | オーケー平塚店 約460m(徒歩6分) |
| 病院 | 桃浜内科クリニック 約260m(徒歩4分) |
| 小学校 | 平塚市立花水小学校 約940m(徒歩12分) |
| 中学校 | 平塚市立浜岳中学校 約730m(徒歩10分) |
| その他利便施設1 | アークスクエア湘南平塚 約550m(徒歩7分) |
| その他利便施設2 | セブンイレブン平塚桃浜町店 約430m(徒歩6分) |
| その他利便施設3 | 平塚駅前郵便局 約810m(徒歩11分) |
0120-053-031
0120-053-031
物件の売却をご検討の方は、 はやめの査定依頼がおすすめです!
買い替えをご検討の方はこちら0120-053-031

