西宮市老松町
阪急甲陽線 苦楽園口駅 徒歩17分
2SLDK / 77.06㎡
2010年02月築
3,880万円



| 物件種別 | 中古マンション |
| 所在地 | GoogleMaps |
| 交通 | |
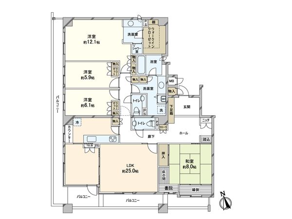
| 間取り | 4LDK |
| 専有面積 | 158.68㎡(約48坪) |
| 築年月 | 1992年11月築 |
| 階数 / 階建 | 3階 / 地上7階建 |
| 向き | 南 |
○三井不動産(株)旧分譲マンション ○専有面積158.68平米あり ○南西角住戸 ○駐車場専用使用権あり ○LDKは約25.0帖あり ○洋室約12.1帖にはシャワー室、洗面所、ウォークインクローゼットあり ○各居室がバルコニーに面した間取り ○トイレは2ヶ所あり ○廊下はホテルライクな生活を演出する内廊下仕様 ○エレベーターは2住戸に1つ設置があり、プライバシーに配慮した設計となっております。
| 所在地 | GoogleMaps |
| 価格 | 3,880万円 |
| 交通 | |
| 管理費等 | 31,200円 |
| 修繕積立金 | 15,660円 |
| その他費用 | - |
| 間取り | 4LDK |
| 専有面積 | 158.68㎡(約48坪) |
| 築年月 | 1992年11月築 |
| 階数 / 階建 | 3階 / 地上7階建 |
| 向き | 南 |
| バルコニー | 31.13㎡ |
| 現況 | 空家 |
| 駐車場 | 敷地内有 (所有権) 空き:1台有り 月額 15,000円 (確認日:西暦2025年11月30日現在) |
| 建物構造 | 鉄筋コンクリート造 |
| 総戸数 | 62戸 |
| 管理会社 | 三井不動産レジデンシャルサービス株式会社 |
| 管理形態 | 管理会社に全部委託 |
| 管理員の 勤務形態 | 日勤 |
| 土地権利 | 所有権 |
| 分譲会社 | 三井不動産(株) (新築分譲時における売主) |
| 施工会社 | (株)新井組 |
| 設計会社 | (株)新井組 |
| 備考 | - |
| 引渡時期 | 相談 |
| 取引態様 | 仲介 |
| 更新日 | 2026年04月30日 |
| 次回更新予定 | 2026年05月14日 |
| 物件番号 | FZGAWA01 |
最新のAI技術を活用した相談サービスです。
お客様一人ひとりのニーズに合わせて最適な情報をご提供します。
リハウスAIチャットの詳しい説明はこちら
GoogleMaps
| スーパー | 万代西宮前浜店 約610m(徒歩8分) |
| スーパー | サンディ香櫨園店 約790m(徒歩10分) |
| 病院 | 医療法人社団西宮回生病院 約420m(徒歩6分) |
| 小学校 | 西宮市立浜脇小学校 約1160m(徒歩15分) |
| 中学校 | 西宮市立浜脇中学校 約1160m(徒歩15分) |
| その他利便施設1 | セブンイレブン西宮大浜町店 約620m(徒歩8分) |
| その他利便施設2 | 西宮香枦園郵便局 約980m(徒歩13分) |
0120-76-3931
0120-76-3931
物件の売却をご検討の方は、 はやめの査定依頼がおすすめです!
買い替えをご検討の方はこちら0120-76-3931

