大田区東馬込2丁目
都営浅草線 馬込駅 徒歩7分
4SLDK
建物面積:108.47㎡
土地面積:110㎡
2026年07月築(予定)
8,599万円



| 物件種別 | 新築戸建 |
| 所在地 | GoogleMaps |
| 交通 | |
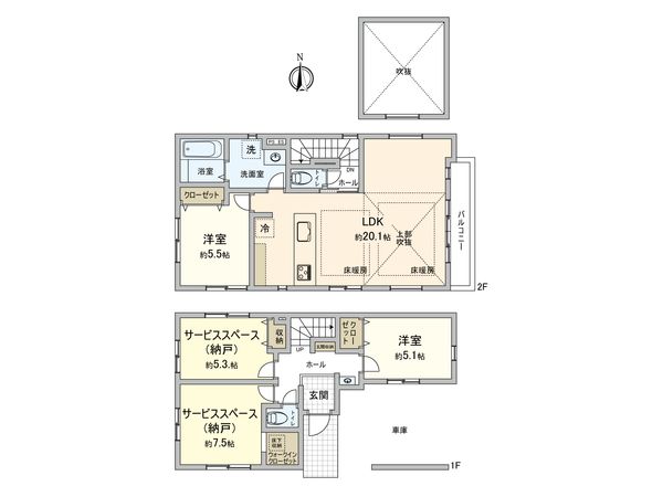
| 間取り | 2SLDK ※S・サービススペースは納戸です |
| 建物面積 | 117.52㎡(約35.54坪) |
| 土地面積 | 82.19㎡(約24.86坪) |
| 築年月 | 2025年10月築 |
返済計画を入力すると毎月のお支払い目安を表示できます
■ アクセス ━━━━━━━━━━━━━━━━━・・・・・ ○ 京浜急行電鉄本線「雑色」駅 徒歩13分 ○ JR京浜東北・根岸線「蒲田」駅 徒歩18分 ○ 東急多摩川線「蒲田」駅 徒歩18分 ○ 東急池上線「蒲田」駅 徒歩18分 ■ おすすめポイント ━━━━━━━━━━━━━━・・・・・ ○ 通勤・通学に便利な4路線2駅利用可能 ○ 建物面積 117.52平米(約35.5坪)の2LDK+2S ○ 駐車スペース1台分あり(車種による) ○ 区立志茂田小学校まで徒歩8分(約640m)で子育て環境良好 ○ 3面採光で明るくゆとりある約20.1帖のLDK(床暖房付) ○ 料理をしながら会話が楽しめる対面式キッチン(浄水器・食洗機付) ○ 窓付きで換気しやすく明るい洗面所 ○ 1階・2階のトイレは快適な温水洗浄便座付 ○ ウォークインクローゼット、床下収納など収納力豊富 ○ 雨の日でも安心な浴室乾燥機付
| 所在地 | GoogleMaps |
| 価格 | 8,599万円 |
| 交通 | |
| その他費用 | - |
| 間取り | 2SLDK ※S・サービススペースは納戸です |
| 建物面積 | 117.52㎡(約35.54坪) |
| 土地面積 | 82.19㎡(約24.86坪) |
| 築年月 | 2025年10月築 |
| 建物構造 | 木造2階建 |
| 現況 | 空家 |
| 駐車場 | 有 |
| 土地権利 | 所有権 |
| 地目 | 宅地 |
| 接道状況 | 東側: 約 4m (私道) |
| 建ぺい率 | 60% |
| 容積率 | 200% |
| 用途地域 | 準工業地域 |
| 都市計画 | 市街化区域 |
| 備考 | ○ 建物面積のうち、車庫面積15.73平米含みます ○ 間取りは2LDK+2Sとなります ○ 私道負担あり(私道部分13.86平米 持分1/1) ○ 本物件は都市計画道路内(計画決定)に存します |
| 引渡時期 | 相談 |
| 取引態様 | 仲介 |
| 更新日 | 2025年11月22日 |
| 次回更新予定 | 2025年12月06日 |
| 物件番号 | F06AGB04 |
最新のAI技術を活用した相談サービスです。
お客様一人ひとりのニーズに合わせて最適な情報をご提供します。
GoogleMaps
| スーパー | まいばすけっと新蒲田3丁目店 約350m(徒歩5分) |
| スーパー | オーケーサガン店 約980m(徒歩13分) |
| 公園 | タイヤ公園 約550m(徒歩7分) |
| 病院 | みらいメディカルクリニック西六郷 約160m(徒歩2分) |
| 小学校 | 大田区立志茂田小学校 約640m(徒歩8分) |
| 中学校 | 大田区立志茂田中学校 約500m(徒歩7分) |
| その他利便施設1 | ファミリーマート大田西六郷一丁目店 約80m(徒歩1分) |
| その他利便施設2 | 大田西六郷郵便局 約130m(徒歩2分) |
0120-994-131
0120-994-131
物件の売却をご検討の方は、 はやめの査定依頼がおすすめです!
買い替えをご検討の方はこちら0120-994-131
