尼崎市額田町
阪急神戸線 園田駅 徒歩16分
2SLDK
建物面積:110.21㎡
土地面積:52.1㎡
2026年02月築(予定)
3,780万円



| 物件種別 | 新築戸建 |
| 所在地 | GoogleMaps |
| 交通 | |
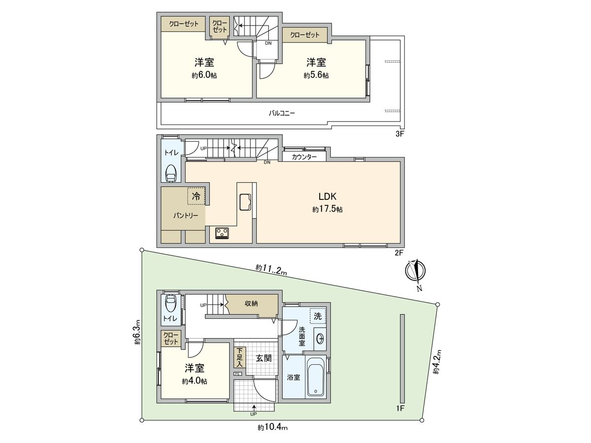
| 間取り | 3LDK |
| 建物面積 | 89.47㎡(約27.06坪) |
| 土地面積 | 56.39㎡(約17.05坪) |
| 築年月 | 2026年03月築(予定) |
返済計画を入力すると毎月のお支払い目安を表示できます
■阪神「出屋敷」駅徒歩3分 ■100年住宅 ■耐震等級3 ■断熱性能等級5 ■αダンバーEXⅡ設置 ■LDK約17.5帖 ■L型キッチンで作業スペースを広くとる事ができます。 シンク側は対面タイプでLDの様子を見ながらの作業が可能です。 ■キッチン背面にはオープンパントリーがあり、食品等豊富な収納量 ■ナノバブル発生装置設置済みの為、すべての水回りでナノバブル水が使用できます。 ■ガス乾燥機「乾太くん」設置済み ■1階洋室にはホスクリーン設置 ■3階にはL字で開放的なバルコニー
| 所在地 | GoogleMaps |
| 価格 | 3,780万円 |
| 交通 | |
| その他費用 | - |
| 間取り | 3LDK |
| 建物面積 | 89.47㎡(約27.06坪) |
| 土地面積 | 56.39㎡(約17.05坪) |
| 築年月 | 2026年03月築(予定) |
| 建物構造 | 木造3階建 |
| 現況 | 未完成 |
| 駐車場 | 有 |
| 土地権利 | 所有権 |
| 地目 | 宅地 |
| 接道状況 | 北側: 約 5.4m (公道) |
| 建ぺい率 | 60% |
| 容積率 | 200% |
| 用途地域 | 第一種住居地域 |
| 都市計画 | 市街化区域 |
| 建築確認番号 | 第KS125-6120-52706号 |
| 備考 | 上記建物面積のうち1F車庫面積8.69㎡含む |
| 引渡時期 | 2026年04月上旬以降 |
| 取引態様 | 仲介 |
| 更新日 | 2026年01月23日 |
| 次回更新予定 | 2026年02月06日 |
| 物件番号 | F1CBAA07 |
最新のAI技術を活用した相談サービスです。
お客様一人ひとりのニーズに合わせて最適な情報をご提供します。
リハウスAIチャットの詳しい説明はこちら
GoogleMaps
| 公園 | 竹谷公園 約340m(徒歩5分) |
| 小学校 | 竹谷小学校 約410m(徒歩6分) |
| 中学校 | 中央中学校 約2500m(徒歩32分) |
| その他利便施設1 | 関西スーパー出屋敷店 約170m(徒歩3分) |
| その他利便施設2 | デイリーヤマザキ阪神出屋敷店 約360m(徒歩5分) |
| その他利便施設3 | 尼崎竹谷郵便局 約470m(徒歩6分) |
0120-429-317
0120-429-317
物件の売却をご検討の方は、 はやめの査定依頼がおすすめです!
買い替えをご検討の方はこちら0120-429-317

