練馬区南田中4丁目
西武池袋・豊島線 練馬高野台駅 徒歩14分
5LDK
建物面積:110.95㎡
土地面積:111.89㎡
2026年02月築(予定)
8,499万円



| 物件種別 | 新築戸建 |
| 所在地 | GoogleMaps |
| 交通 | 西武池袋・豊島線 練馬高野台駅 徒歩5分 |
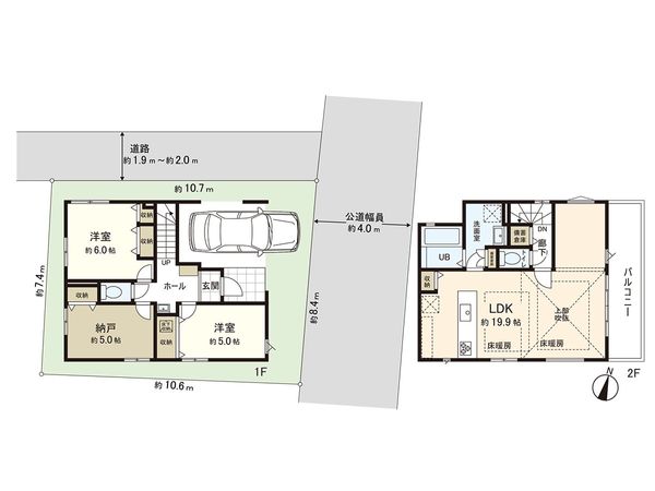
| 間取り | 2SLDK ※S・サービススペースは納戸です |
| 建物面積 | 102.01㎡(約30.85坪) |
| 土地面積 | 88.51㎡(約26.77坪) ※別途私道約50.08㎡有 (共有持分 1/10) |
| 築年月 | 2025年09月築 |
予約制内覧会を開催します!
| 開催日 | 1月10日(土)11:00 ~ 17:00 1月11日(日)11:00 ~ 17:00 1月17日(土)11:00 ~ 17:00 1月18日(日)11:00 ~ 17:00 1月24日(土)11:00 ~ 17:00 |
|---|
返済計画を入力すると毎月のお支払い目安を表示できます
■所在・交通アクセス━━━━━━━━━━━・・・・・ ○ 西武池袋線「練馬高野台」駅 徒歩5分 ■おすすめポイント━━━━━━━━━━━━・・・・・ ○ 土地面積88.51平米 (約26.77坪) 〇 建物面積102.01平米 (約30.85坪) ○ 第一種低層居住専用地域 ※建蔽率60%、容積率100% 〇 東側約4.0m公道に面す ○ 北側通路のため開放感あり 〇 2SLDK ○ LDKに面した東向きワイドバルコニー ・布団などの大きなものを干すのに便利 ・テーブルやイスが置いて寛ぎの時間を ○ 全居室フローリング仕様 ○ 全居室収納あり ○ 災害時の食料や水・生活用品を保管できる備蓄庫 〇 約19.9帖のLDK ・リビング上部に吹抜 ・食品の保管に便利なパントリー ・床暖房つきで寒い日も足元ポカポカ ○ 水回りが集約していますので家事効率UP ○ 会話が弾む対面式システムキッチン ○ 浴室乾燥機付きユニットバス ○ 浴室に窓あり ○ 1・2階にトイレ設置 ○ 駐車スペースあり(※車種による) ■ ご希望の住まい探しをお手伝いします ━━━━━・・・ 物件の詳細・ご相談はお気軽にお問い合わせください。
| 所在地 | GoogleMaps |
| 価格 | 8,499万円 |
| 交通 | 西武池袋・豊島線 練馬高野台駅 徒歩5分 |
| その他費用 | - |
| 間取り | 2SLDK ※S・サービススペースは納戸です |
| 建物面積 | 102.01㎡(約30.85坪) |
| 土地面積 | 88.51㎡(約26.77坪) ※別途私道約50.08㎡有 (共有持分 1/10) |
| 築年月 | 2025年09月築 |
| 建物構造 | 木造2階建 |
| 現況 | 空家 |
| 駐車場 | 有 |
| 土地権利 | 所有権 |
| 地目 | 宅地 |
| 接道状況 | 東側: 約 4m (公道) |
| 建ぺい率 | 60% |
| 容積率 | 100% |
| 用途地域 | 第一種低層住居専用地域 |
| 都市計画 | 市街化区域 |
| 備考 | ※建物面積に備蓄倉庫の部分約1.65平米含む 上記建物面積のうち1F車庫面積12.21㎡含む |
| 引渡時期 | 即時 |
| 取引態様 | 仲介 |
| 更新日 | 2026年01月05日 |
| 次回更新予定 | 2026年01月19日 |
| 物件番号 | F22AGADA |
最新のAI技術を活用した相談サービスです。
お客様一人ひとりのニーズに合わせて最適な情報をご提供します。
リハウスAIチャットの詳しい説明はこちら
GoogleMaps
| スーパー | ピーコックストア高野台店 約450m(徒歩6分) |
| スーパー | ヨークフーズ練馬高野台店 約320m(徒歩4分) |
| 公園 | 長光寺橋公園 約460m(徒歩6分) |
| 病院 | 順天堂大学医学部附属練馬病院 約580m(徒歩8分) |
| 小学校 | 練馬区立石神井東小学校 約440m(徒歩6分) |
| 中学校 | 練馬区立南が丘中学校 約930m(徒歩12分) |
| その他利便施設1 | セブンイレブン練馬南田中3丁目店 約230m(徒歩3分) |
| その他利便施設2 | ファミリーマート練馬富士見台店 約430m(徒歩6分) |
| その他利便施設3 | ツルハドラッグ練馬南田中店 約140m(徒歩2分) |
| その他利便施設4 | 練馬南田中郵便局 約360m(徒歩5分) |
三井不動産リアルティ株式会社
国土交通大臣(15)第777号
0120-19-0031
0120-19-0031
物件の売却をご検討の方は、 はやめの査定依頼がおすすめです!
買い替えをご検討の方はこちら0120-19-0031

