小金井市前原町4丁目
中央本線 武蔵小金井駅 徒歩15分
3LDK
建物面積:75.06㎡
土地面積:93.88㎡
新築
6,780万円



| 物件種別 | 新築戸建 |
| 所在地 | GoogleMaps |
| 交通 | 中央本線 武蔵小金井駅 徒歩16分 |
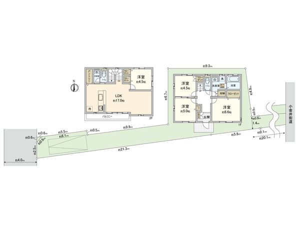
| 間取り | 4LDK |
| 建物面積 | 90.72㎡(約27.44坪) |
| 土地面積 | 154.26㎡(約46.66坪) |
| 築年月 | 2026年01月築(予定) |
返済計画を入力すると毎月のお支払い目安を表示できます
-物件のおすすめポイント- ▼立地 ・中央線「武蔵小金井」駅 徒歩16分 ・武蔵小金井駅からは平坦な道のり ・玉川上水・緑地帯により近く、緑豊かな環境 ※本物件は西側道で接道要件を満たしております。 東側は出入り可能ですが建築基準法の接道条件は満たしておりません。 ▼建物の特徴 ・土地面積約154.26平米 ・建物面積約90.72平米の4LDK ▼お部屋の特徴 ・約17帖の広々としたLDK ・南バルコニーのため陽当たり良好 ▼設備 ・対面式キッチン ・豊富な収納スペース 各居室収納あり/キッチン横パントリー 階段下収納/床下収納 ・各フロアにトイレあり ▼周辺環境 ・小金井市立第二小学校徒歩4分(約280m)、小金井市立第一中学校徒歩5分(約380m)と通学も安心です ・周辺には生活利便施設が豊富にございます 徒歩10分圏内には、コンビニ/病院/公園 徒歩15分圏内には、スーパー/ドラッグストア/郵便局 ■ご希望の住まい探しをお手伝いします ━━━━━ ・・・ 物件の詳細・ご相談はお気軽にお問い合わせください。
| 所在地 | GoogleMaps |
| 価格 | 6,780万円 |
| 交通 | 中央本線 武蔵小金井駅 徒歩16分 |
| その他費用 | - |
| 間取り | 4LDK |
| 建物面積 | 90.72㎡(約27.44坪) |
| 土地面積 | 154.26㎡(約46.66坪) |
| 築年月 | 2026年01月築(予定) |
| 建物構造 | 木造2階建 |
| 現況 | 未完成 |
| 駐車場 | 有 |
| 土地権利 | 所有権 |
| 地目 | 宅地 |
| 接道状況 | 西側: 約 4m (私道) |
| 建ぺい率 | 40%・60% |
| 容積率 | 80%・160% |
| 用途地域 | 第一種低層住居専用地域/第一種住居地域 |
| 都市計画 | 市街化区域 |
| 建築確認番号 | 第25UDI1T建02076号 |
| 備考 | - |
| 引渡時期 | 相談 |
| 取引態様 | 仲介 |
| 更新日 | 2025年12月11日 |
| 次回更新予定 | 2025年12月25日 |
| 物件番号 | F26AUA07 |
最新のAI技術を活用した相談サービスです。
お客様一人ひとりのニーズに合わせて最適な情報をご提供します。
リハウスAIチャットの詳しい説明はこちら
GoogleMaps
| スーパー | いなげや 小金井本町店 約1040m(徒歩13分) |
| スーパー | ダイエー小金井店・イオンフードスタイル 約1120m(徒歩14分) |
| 公園 | 都立小金井公園 約320m(徒歩4分) |
| 病院 | 社会福祉法人聖ヨハネ会桜町病院 約470m(徒歩6分) |
| 小学校 | 小金井市立第二小学校 約280m(徒歩4分) |
| 中学校 | 小金井市立第一中学校 約380m(徒歩5分) |
| その他利便施設1 | ファミリーマート小金井桜町店 約90m(徒歩2分) |
| その他利便施設2 | セブンイレブンムサシ小金井北口店 約670m(徒歩9分) |
| その他利便施設3 | ウエルシア武蔵小金井駅前店 約1190m(徒歩15分) |
| その他利便施設4 | 小金井郵便局 約840m(徒歩11分) |
三井不動産リアルティ株式会社
国土交通大臣(15)第777号
0120-323-661
0120-323-661
物件の売却をご検討の方は、 はやめの査定依頼がおすすめです!
買い替えをご検討の方はこちら0120-323-661

