日野市神明2丁目
中央本線 日野駅 徒歩15分
3SLDK
建物面積:101.85㎡
土地面積:130.65㎡
2026年05月築(予定)
6,699万円



| 物件種別 | 新築戸建 |
| 所在地 | GoogleMaps |
| 交通 | 中央本線 日野駅 徒歩11分 |
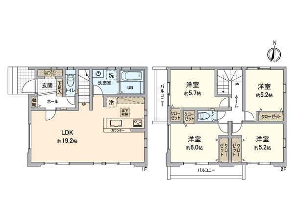
| 間取り | 4LDK |
| 建物面積 | 97.71㎡(約29.55坪) |
| 土地面積 | 123.76㎡(約37.43坪) |
| 築年月 | 2026年07月築(予定) |
予約制内覧会を開催します!
| 開催日 | 5月18日(月)11:00 ~ 17:00 5月19日(火)11:00 ~ 17:00 5月20日(水)11:00 ~ 17:00 5月21日(木)11:00 ~ 17:00 5月22日(金)11:00 ~ 17:00 |
|---|
-物件のおすすめポイント- ▼立地 ・JR中央線「日野」駅徒歩11分 ・南向きバルコニーにつき陽あたり良好(天候による) ▼建物の特徴 ・木造2階建て新築分譲住宅 ・駐車スペース2台分あり ※車種による制限有り ▼お部屋の特徴 ・約19.2畳の広々LDK、床下収納付き ・収納充実な全居室クローゼット ・一坪サイズの浴室 ・洗面室と浴室が隣接し家事動線良好 ▼設備 ・24時間換気システム、浴室乾燥機 ・使いやすいシステムキッチン ・温水洗浄便座 ・洗い物の時間を短縮できる、ビルトイン食洗器 ・TVモニター付きインターフォン ▼周辺環境 ・イオンフードスタイル日野駅前店 徒歩12分(約900m) ・セブンイレブン日野大坂上店 徒歩6分(約480m) ・大阪西公園 徒歩4分(約280m) ■ ご希望の住まい探しをお手伝いします ━━━━━・・・ 物件の詳細・ご相談はお気軽にお問い合わせください。
| 所在地 | GoogleMaps |
| 価格 | 6,699万円 |
| 交通 | 中央本線 日野駅 徒歩11分 |
| その他費用 | - |
| 間取り | 4LDK |
| 建物面積 | 97.71㎡(約29.55坪) |
| 土地面積 | 123.76㎡(約37.43坪) |
| 築年月 | 2026年07月築(予定) |
| 建物構造 | 木造2階建 |
| 現況 | 未完成 |
| 駐車場 | 有 |
| 土地権利 | 所有権 |
| 地目 | 宅地 |
| 接道状況 | 南側: 約 4m (私道)、西側: 約 4m (私道) |
| 建ぺい率 | 50% |
| 容積率 | 80% |
| 用途地域 | 第一種低層住居専用地域 |
| 都市計画 | 市街化区域 |
| 建築確認番号 | 第25UDI1W建12143号 |
| 備考 | 第一種高度地区、宅地造成等工事姿勢区域、 日影規制30h-2.0・1.5m、高さの限度10m 建ぺい率は角地緩和につき、50%に緩和されます |
| 引渡時期 | 2026年08月中旬以降 |
| 取引態様 | 仲介 |
| 更新日 | 2026年05月11日 |
| 次回更新予定 | 2026年05月25日 |
| 物件番号 | F29BGAED |
最新のAI技術を活用した相談サービスです。
お客様一人ひとりのニーズに合わせて最適な情報をご提供します。
リハウスAIチャットの詳しい説明はこちら
GoogleMaps
| スーパー | イオンフードスタイル日野駅前店 約900m(徒歩12分) |
| スーパー | コープ日野駅前店 約900m(徒歩12分) |
| 公園 | 大坂西公園 約280m(徒歩4分) |
| 病院 | 日野駅前病院 約970m(徒歩13分) |
| 小学校 | 日野市立日野第七小学校 約860m(徒歩11分) |
| 中学校 | 日野市立大坂上中学校 約500m(徒歩7分) |
| その他利便施設1 | セブンイレブン日野大坂上店 約480m(徒歩6分) |
| その他利便施設2 | ファミリーマート 日野日野台店 約530m(徒歩7分) |
| その他利便施設3 | マツモトキヨシ日野駅前店 約760m(徒歩10分) |
| その他利便施設4 | 日野多摩平六郵便局 約790m(徒歩10分) |
0120-311-541
0120-311-541
物件の売却をご検討の方は、 はやめの査定依頼がおすすめです!
買い替えをご検討の方はこちら0120-311-541

