日野市新町3丁目
中央本線 日野駅 徒歩13分
4LDK
建物面積:101.01㎡
土地面積:140.1㎡
2026年01月築(予定)
5,680万円



| 物件種別 | 新築戸建 |
| 所在地 | GoogleMaps |
| 交通 | 中央本線 日野駅 徒歩13分 |
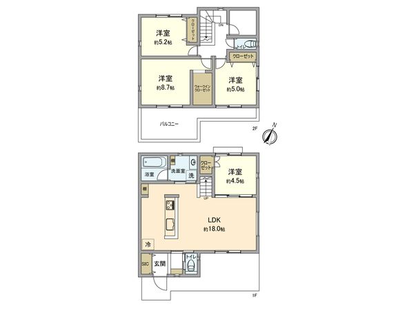
| 間取り | 4LDK |
| 建物面積 | 96.88㎡(約29.3坪) |
| 土地面積 | 140.09㎡(約42.37坪) ※別途私道約259.73㎡有 (共有持分 1/12) |
| 築年月 | 2026年01月築(予定) |
返済計画を入力すると毎月のお支払い目安を表示できます
■ アクセス━━━━━━━━━━━━━━━・・・・・ ○ JR中央本線「日野」駅徒歩13分 ■ おすすめポイント━━━━━━━━━━━━━━━・・・・・ ○ 土地面積140.09平米のゆとりある敷地 ○ 建物面積96.88平米 ○ 第一種低層住居専用地域の閑静な住宅街 ○ 南東向きにつき陽当り良好 ○ ゆったりとした約18帖のLDK ○ 2WAYキッチン ○ ウォークインクローゼット・シューズインクローク・床下収納等充実した収納 ○ ご家族団欒のリビング階段 ○ 東京電力・東京ガス・公営上水道・公共下水道完備 ※水路占用使用料が年間(975円)かかります。金額については、今年の金額となるため、来年変わる可能性がございます。
| 所在地 | GoogleMaps |
| 価格 | 5,680万円 |
| 交通 | 中央本線 日野駅 徒歩13分 |
| その他費用 | - |
| 間取り | 4LDK |
| 建物面積 | 96.88㎡(約29.3坪) |
| 土地面積 | 140.09㎡(約42.37坪) ※別途私道約259.73㎡有 (共有持分 1/12) |
| 築年月 | 2026年01月築(予定) |
| 建物構造 | 木造2階建 |
| 現況 | 未完成 |
| 駐車場 | 有 |
| 土地権利 | 所有権 |
| 地目 | 宅地 |
| 接道状況 | 南東側: 約 5m (私道) |
| 建ぺい率 | 40% |
| 容積率 | 80% |
| 用途地域 | 第一種低層住居専用地域 |
| 都市計画 | 市街化区域 |
| 建築確認番号 | 第25UDI1T建01605号 |
| 備考 | - |
| 引渡時期 | 相談 |
| 取引態様 | 仲介 |
| 更新日 | 2025年12月11日 |
| 次回更新予定 | 2025年12月25日 |
| 物件番号 | F31AGA9D |
最新のAI技術を活用した相談サービスです。
お客様一人ひとりのニーズに合わせて最適な情報をご提供します。
リハウスAIチャットの詳しい説明はこちら
GoogleMaps
| スーパー | コープ日野駅前店 約960m(徒歩12分) |
| 公園 | 新坂下公園 約600m(徒歩8分) |
| 病院 | 日野駅前病院 約1130m(徒歩15分) |
| 小学校 | 日野市立東光寺小学校 約580m(徒歩8分) |
| 中学校 | 日野市立大坂上中学校 約1000m(徒歩13分) |
| その他利便施設1 | セブンイレブン日野栄町4丁目店 約1020m(徒歩13分) |
| その他利便施設2 | ウエルシア日野栄町店 約900m(徒歩12分) |
| その他利便施設3 | 日野新町郵便局 約830m(徒歩11分) |
三井不動産リアルティ株式会社
国土交通大臣(15)第777号
0120-524-031
0120-524-031
物件の売却をご検討の方は、 はやめの査定依頼がおすすめです!
買い替えをご検討の方はこちら0120-524-031

