名古屋市千種区千種3丁目
名古屋市桜通線 吹上駅 徒歩5分
3SLDK
建物面積:105.8㎡
土地面積:73.91㎡
2026年08月築(予定)
4,990万円



| 物件種別 | 新築戸建 |
| 所在地 | GoogleMaps |
| 交通 | 名古屋市名城線 砂田橋駅 徒歩11分 |
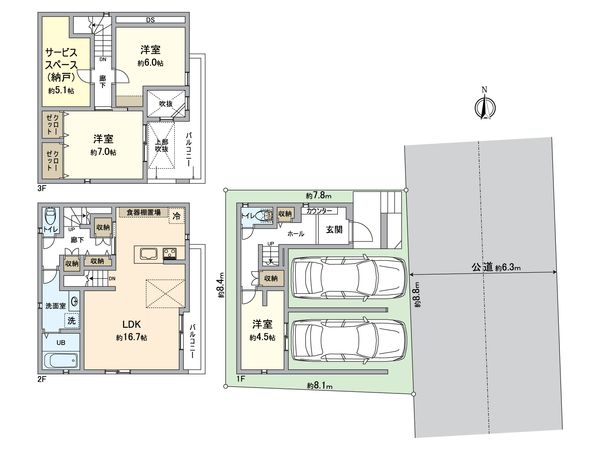
| 間取り | 3SLDK ※S・サービススペースは納戸です |
| 建物面積 | 144.57㎡(約43.73坪) |
| 土地面積 | 69.04㎡(約20.88坪) |
| 築年月 | 2026年07月築(予定) |
-物件のおすすめポイント- ▼立地 ・地下鉄名城線「砂田橋」駅徒歩11分 ▼特徴 ・LDK約16.7帖の3SLDK ・吹き抜けのある開放感あふれるリビングダイニング ・キッチンに食洗機・浄水器あり ・窓があり換気しやすく明るい浴室 ・雨の日でも洗濯物が乾く浴室換気乾燥機能 ・来客時に便利なTVモニター付インターホン ・各居室に収納スペースあり ▼周辺環境 ・上野小学校 300m ・振甫中学校 1270m ■ご希望の住まい探しをお手伝いします ━━━━━ ・・・ 物件の詳細・ご相談はお気軽にお問い合わせください。
| 所在地 | GoogleMaps |
| 価格 | 4,990万円 |
| 交通 | 名古屋市名城線 砂田橋駅 徒歩11分 |
| その他費用 | - |
| 間取り | 3SLDK ※S・サービススペースは納戸です |
| 建物面積 | 144.57㎡(約43.73坪) |
| 土地面積 | 69.04㎡(約20.88坪) |
| 築年月 | 2026年07月築(予定) |
| 建物構造 | 木造3階建 |
| 現況 | 未完成 |
| 駐車場 | - |
| 土地権利 | 所有権 |
| 地目 | 宅地 |
| 接道状況 | 東側: 約 6.3m (公道) |
| 建ぺい率 | 60% |
| 容積率 | 200% |
| 用途地域 | 第二種中高層住居専用地域 |
| 都市計画 | 市街化区域 |
| 建築確認番号 | 第R07確認建築CI東海A01995号 |
| 備考 | ※建物面積/144.57平米(車庫面積27.82平米含む) |
| 引渡時期 | 相談 |
| 取引態様 | 仲介 |
| 更新日 | 2026年05月11日 |
| 次回更新予定 | 2026年05月25日 |
| 物件番号 | F3CBGA24 |
最新のAI技術を活用した相談サービスです。
お客様一人ひとりのニーズに合わせて最適な情報をご提供します。
リハウスAIチャットの詳しい説明はこちら
GoogleMaps
| スーパー | ユーストア萱場店 約810m(徒歩11分) |
| スーパー | マックスバリュ砂田橋店 約880m(徒歩11分) |
| 公園 | 天満公園 約380m(徒歩5分) |
| 病院 | ヨシダファミリーメディカルクリニック 約230m(徒歩3分) |
| 小学校 | 上野小学校 約300m(徒歩4分) |
| 中学校 | 振甫中学校 約1270m(徒歩16分) |
| その他利便施設1 | スギドラッグ谷口店 約250m(徒歩4分) |
| その他利便施設2 | ファミリーマート千種天満通店 約460m(徒歩6分) |
| その他利便施設3 | 名古屋萱場郵便局 約580m(徒歩8分) |
0120-08-1531
0120-08-1531
物件の売却をご検討の方は、 はやめの査定依頼がおすすめです!
買い替えをご検討の方はこちら0120-08-1531

