所沢市東所沢3丁目
武蔵野線 東所沢駅 バス7分 亀ヶ谷公園 停歩3分
4LDK
建物面積:96.05㎡
土地面積:120.69㎡
2025年12月築(予定)
4,930万円



| 物件種別 | 新築戸建 |
| 所在地 | GoogleMaps |
| 交通 | 武蔵野線 東所沢駅 徒歩11分 |
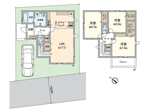
| 間取り | 3LDK |
| 建物面積 | 94.92㎡(約28.71坪) |
| 土地面積 | 100.01㎡(約30.25坪) |
| 築年月 | 2025年12月築(予定) |
返済計画を入力すると毎月のお支払い目安を表示できます
■ おすすめポイント ━━━━━━━━━━・・・・・ ○ 生活利便施設が整った住環境 ○ インテリアの映える広々としたリビング約17帖 ○ 家族との会話が弾む対面式キッチン ○ パントリー付 ○ ウォークインクローゼット等収納充実 ○ 南西側道路につき日当り良好 ○ 駐車場1台分あり(車種による) ■ 担当者からひとこと ━━━━━━━━━・・・・・ ○ 本物件は勿論、周辺環境や周辺施設も併せてご案内をさせていただきます。 ○ 本物件購入時にかかる諸費用・住宅ローン利用時の月々の返済例等を記載した資金計画表を作成させていただきます。 ○ お住みかえ(買いかえ)相談も合わせて承っております。 ○ 見学をご希望のお客様は、担当までお気軽にご連絡くださいませ。
| 所在地 | GoogleMaps |
| 価格 | 4,930万円 |
| 交通 | 武蔵野線 東所沢駅 徒歩11分 |
| その他費用 | - |
| 間取り | 3LDK |
| 建物面積 | 94.92㎡(約28.71坪) |
| 土地面積 | 100.01㎡(約30.25坪) |
| 築年月 | 2025年12月築(予定) |
| 建物構造 | 木造2階建 |
| 現況 | 未完成 |
| 駐車場 | 有 |
| 土地権利 | 所有権 |
| 地目 | 宅地 |
| 接道状況 | 南西側: 約 4m (公道) |
| 建ぺい率 | 60% |
| 容積率 | 200% |
| 用途地域 | 第一種住居地域 |
| 都市計画 | 市街化区域 |
| 建築確認番号 | 第HPAー25-08569-1号 |
| 備考 | - |
| 引渡時期 | 2026年01月下旬以降 |
| 取引態様 | 仲介 |
| 更新日 | 2025年10月25日 |
| 次回更新予定 | 2025年11月08日 |
| 物件番号 | F45AGB36 |
GoogleMaps
| スーパー | スーパーオザム東所沢店 約630m(徒歩8分) |
| 公園 | 名古屋公園 約590m(徒歩8分) |
| 病院 | くわのみ本郷クリニック 約120m(徒歩2分) |
| 小学校 | 所沢市立東所沢小学校 約1020m(徒歩13分) |
| 中学校 | 所沢市立柳瀬中学校 約1320m(徒歩17分) |
| その他利便施設1 | デイリーケアセイジョー所沢中央店 約670m(徒歩9分) |
| その他利便施設2 | ニューデイズ東所沢 約880m(徒歩11分) |
| その他利便施設3 | ファミリーマート東所沢駅南店 約920m(徒歩12分) |
0120-31-0130
新築戸建
4,390万円
所沢市東所沢3丁目
武蔵野線 東所沢駅 バス7分 亀ヶ谷公園 停歩3分
4LDK
建物面積:96.05㎡
土地面積:120.69㎡
2025年12月築(予定)
新築戸建
4,790万円
所沢市東所沢3丁目
武蔵野線 東所沢駅 バス7分 亀ヶ谷公園 停歩3分
4LDK
建物面積:99.77㎡
土地面積:125.15㎡
2025年12月築(予定)
新築戸建
4,390万円
所沢市東所沢3丁目
武蔵野線 東所沢駅 バス7分 亀ヶ谷公園 停歩3分
4LDK
建物面積:94.39㎡
土地面積:130.28㎡
2025年12月築(予定)
0120-31-0130
物件の売却をご検討の方は、 はやめの査定依頼がおすすめです!
買い替えをご検討の方はこちら0120-31-0130



