狭山市大字水野
西武池袋・豊島線 武蔵藤沢駅 徒歩17分
4LDK
建物面積:91.6㎡
土地面積:99.64㎡
2026年03月築(予定)
3,190万円



| 物件種別 | 新築戸建 |
| 所在地 | GoogleMaps |
| 交通 | 西武新宿線 入曽駅 徒歩14分 |
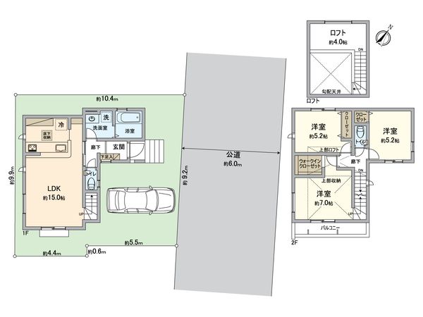
| 間取り | 3LDK |
| 建物面積 | 78.24㎡(約23.66坪) |
| 土地面積 | 97.96㎡(約29.63坪) |
| 築年月 | 2026年02月築(予定) |
返済計画を入力すると毎月のお支払い目安を表示できます
▼おすすめポイント ・令和8年2月完成予定の木造2階建 ・火を使わない安心のオール電化住宅 ・LDK部分約15帖の3LDK+ロフト ・ロフトは収納等に利用可 ・閑静な住宅街に立地 ・駐車スペース1台可(車種による) ▼設備 ・食洗機付カウンターキッチン ・お手入れがしやすいIHクッキングヒーター ・浴室換気乾燥機付 ・TVモニター付インターホン ・ウォークインクローゼットやロフトなど 収納豊富な間取り ・開放感のある上部吹抜の主寝室(約7.0帖) ・断熱効果のあるペアガラス ▼周辺環境 ・ヤオコー入曽店 徒歩11分(約810m) ・ファミリーマート入曽店 徒歩4分(約250m) ・セブンイレブン狭山水野店 徒歩7分(約550m) ■ ご希望の住まい探しをお手伝いします ━━━━━・・・ 物件の詳細・ご相談はお気軽にお問い合わせください。
| 所在地 | GoogleMaps |
| 価格 | 3,190万円 |
| 交通 | 西武新宿線 入曽駅 徒歩14分 |
| その他費用 | - |
| 間取り | 3LDK |
| 建物面積 | 78.24㎡(約23.66坪) |
| 土地面積 | 97.96㎡(約29.63坪) |
| 築年月 | 2026年02月築(予定) |
| 建物構造 | 木造2階建 |
| 現況 | 未完成 |
| 駐車場 | 有 |
| 土地権利 | 所有権 |
| 地目 | 宅地 |
| 接道状況 | 北東側: 約 6m (公道) |
| 建ぺい率 | 50% |
| 容積率 | 80% |
| 用途地域 | 第一種低層住居専用地域 |
| 都市計画 | 市街化区域 |
| 建築確認番号 | 第R07SHC116520号 |
| 備考 | - |
| 引渡時期 | 2026年02月下旬以降 |
| 取引態様 | 仲介 |
| 更新日 | 2026年01月31日 |
| 次回更新予定 | 2026年02月14日 |
| 物件番号 | F45AGBF7 |
最新のAI技術を活用した相談サービスです。
お客様一人ひとりのニーズに合わせて最適な情報をご提供します。
リハウスAIチャットの詳しい説明はこちら
GoogleMaps
| スーパー | ヤオコー入曽店 約810m(徒歩11分) |
| 病院 | ひなた内科 約980m(徒歩13分) |
| 小学校 | 狭山市立山王小学校 約1450m(徒歩19分) |
| 中学校 | 狭山市立山王中学校 約2050m(徒歩26分) |
| その他利便施設1 | ファミリーマート入曽店 約250m(徒歩4分) |
| その他利便施設2 | セブンイレブン狭山水野店 約550m(徒歩7分) |
0120-31-0130
0120-31-0130
物件の売却をご検討の方は、 はやめの査定依頼がおすすめです!
買い替えをご検討の方はこちら0120-31-0130

