さいたま市南区大谷場1丁目
9,280万円



| 物件種別 | 新築戸建 |
| 所在地 | GoogleMaps |
| 交通 | |
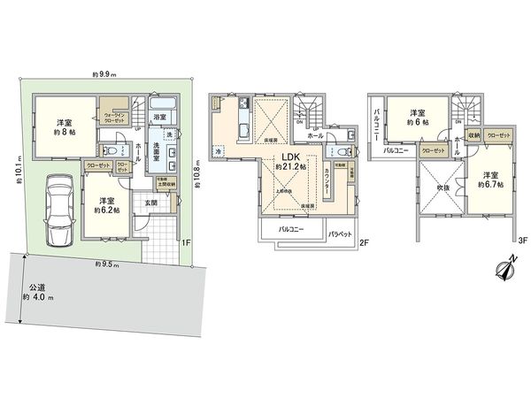
| 間取り | 4LDK |
| 建物面積 | 125.02㎡(約37.81坪) |
| 土地面積 | 101.83㎡(約30.8坪) |
| 築年月 | 2025年09月築 |
この物件情報を共有する
毎月のお支払い目安
返済計画を入力すると毎月のお支払い目安を表示できます
- ローン261,961円
- 管理費+修繕積立金0円
- その他費用0円
おすすめポイント
設備
- 床暖房
- 浴室乾燥機
- TVモニタ付インターホン
- 食器洗乾燥機
特徴
- LDK20畳以上
-物件のおすすめポイント- ▼立地 ・4路線2駅利用可(浦和駅徒歩15分・南浦和駅徒歩15分) ▼建物の特徴 ・2025年9月築の新築戸建 ・駐車スペースには電気自動車の充電設備あり ・南東側道路につき陽当たり良好 ▼お部屋の特徴 ・約21帖のゆったりしたLDK(一部床暖房付) ・吹き抜けが特徴的なリビングダイニング ・全居室フローリング仕様で、落ち着いた雰囲気の内装 ・全居室二面採光で明るく風通しのいい空間 ▼設備 ・リビングダイニングと一体感のある対面式キッチン ・浄水器、食洗機付のシステムキッチン ・雨の日の洗濯にも便利な浴室換気乾燥機 ・ホテルライクな2ボウルタイプの洗面化粧台 ・収納豊富なため各居室の居住空間を有効活用できる4LDK ・来客時に便利なTVモニター付インターホン ・留守中でも荷物を受け取れる宅配ボックス ▼周辺環境 ・大谷場小学校(約590m)前地1丁目第一公園(約190m)と子育てしやすい住環境 ■ ご希望の住まい探しをお手伝いします ━━━━━・・・ 物件の詳細・ご相談はお気軽にお問い合わせください。
物件情報
| 所在地 | GoogleMaps |
| 価格 | 9,280万円 |
| 交通 | |
| その他費用 | - |
| 間取り | 4LDK |
| 建物面積 | 125.02㎡(約37.81坪) |
| 土地面積 | 101.83㎡(約30.8坪) |
| 築年月 | 2025年09月築 |
| 建物構造 | 木造3階建 |
| 現況 | 空家 |
| 駐車場 | 有 |
| 土地権利 | 所有権 |
| 地目 | 宅地 |
| 接道状況 | 南東側: 約 4m (公道) |
| 建ぺい率 | 60% |
| 容積率 | 200%(但し、前面道路幅員により160%に制限されます。) |
| 用途地域 | 第一種住居地域 |
| 都市計画 | 市街化区域 |
| 備考 | 準防火地域、高度地区(20m地区)、容積率は前面道路幅員により160%に制限されます |
| 引渡時期 | 相談 |
| 取引態様 | 仲介 |
| 更新日 | 2025年11月23日 |
| 次回更新予定 | 2025年12月07日 |
| 物件番号 | F49AGB55 |
この物件のことを
AIに聞いてみませんか?
最新のAI技術を活用した相談サービスです。
お客様一人ひとりのニーズに合わせて最適な情報をご提供します。
周辺情報
GoogleMaps
| スーパー | スーパーみらべる南浦和店 約940m(徒歩12分) |
| スーパー | サミットストア太田窪店 約1010m(徒歩13分) |
| 公園 | 前地1丁目第一公園 約190m(徒歩3分) |
| 小学校 | 大谷場小学校 約590m(徒歩8分) |
| 中学校 | 大谷場中学校 約1000m(徒歩13分) |
| その他利便施設1 | ローソン浦和東岸町店 約700m(徒歩9分) |
| その他利便施設2 | セブンイレブン浦和東高砂町店 約700m(徒歩9分) |
| その他利便施設3 | ドラッグセイムス太田窪店 約600m(徒歩8分) |
| その他利便施設4 | 浦和太田窪二郵便局 約720m(徒歩9分) |
| その他利便施設5 | 浦和パルコ 約1100m(徒歩14分) |
取扱店舗
- 営業時間
- 10:00~18:00
- 定休日
- 毎週火曜日・水曜日
- 住所
- 埼玉県さいたま市浦和区高砂2-2-3 JREさいたま浦和ビル1F
三井不動産リアルティ株式会社
国土交通大臣(15)第777号
三井のリハウス 浦和センター
- 営業時間10:00~18:00
- 定休日毎週火曜日・水曜日
0120-377-231
さいたま市南区の物件情報
この物件を見学してみませんか?
この物件についてお問い合わせ
物件・住環境の詳しい情報、購入・ローン相談など、ささいなことでもお気軽にお問い合わせください。三井のリハウス 浦和センター
- 営業時間10:00~18:00
- 定休日毎週火曜日・水曜日
0120-377-231

物件の売却をご検討の方は、 はやめの査定依頼がおすすめです!
買い替えをご検討の方はこちら見学予約
お問い合わせ
0120-377-231
- 営業時間 10:00~18:00
- 定休日 毎週火曜日・水曜日

