さいたま市西区大字中野林
京浜東北・根岸線 大宮駅 バス14分 二ツ宮新道 停歩9分
3LDK
建物面積:106.4㎡
土地面積:150.62㎡
新築
3,998万円



| 物件種別 | 新築戸建 |
| 所在地 | GoogleMaps |
| 交通 | 京浜東北・根岸線 大宮駅 バス29分 中野林 停歩5分 |
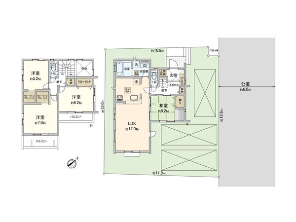
| 間取り | 4LDK |
| 建物面積 | 103.03㎡(約31.16坪) |
| 土地面積 | 159.69㎡(約48.3坪) |
| 築年月 | 2026年06月築(予定) |
■ おすすめポイント ━━━━━━━━━━━━━━━・・・・・ ○ 令和8年6月完成予定の新築戸建4LDK ○ 閑静な住宅街に立地 ○ 広々とした約17.0帖のLDK ○ 家族との会話が弾む対面式キッチン ○ 全居室収納スペース有り ○ 収納豊富(ウォークインクローゼット2か所、床下収納等) ○ 開放感のある折り上げ天井 ○ 雨の日でも安心な室内物干 ○ 吹抜けあり ○ ゆとりのある前面公道幅員約6.0m ○ 駐車スペース有り(車種によります)
| 所在地 | GoogleMaps |
| 価格 | 3,998万円 |
| 交通 | 京浜東北・根岸線 大宮駅 バス29分 中野林 停歩5分 |
| その他費用 | - |
| 間取り | 4LDK |
| 建物面積 | 103.03㎡(約31.16坪) |
| 土地面積 | 159.69㎡(約48.3坪) |
| 築年月 | 2026年06月築(予定) |
| 建物構造 | 木造2階建 |
| 現況 | 未完成 |
| 駐車場 | 有 |
| 土地権利 | 所有権 |
| 地目 | 宅地 |
| 接道状況 | 北東側: 約 6m (公道) |
| 建ぺい率 | 60% |
| 容積率 | 200% |
| 用途地域 | なし |
| 都市計画 | 市街化調整区域 |
| 建築確認番号 | 第25UDI1W建13537号 |
| 備考 | ※建物面積に車庫部分約3.31平米含む ※二ツ宮団地地区地区計画区域内 市街化調整区域。建物の建築等は原則不可。ただし、建築許可が得られた場合、建築物の建築可。 |
| 引渡時期 | 相談 |
| 取引態様 | 仲介 |
| 更新日 | 2026年04月16日 |
| 次回更新予定 | 2026年04月30日 |
| 物件番号 | F50BCA14 |
最新のAI技術を活用した相談サービスです。
お客様一人ひとりのニーズに合わせて最適な情報をご提供します。
リハウスAIチャットの詳しい説明はこちら
GoogleMaps
| スーパー | マルエツ佐知川店 約1500m(徒歩19分) |
| スーパー | ディスカウントストアトライアル佐知川店 約1510m(徒歩19分) |
| 病院 | 二ツ宮内科クリニック 約220m(徒歩3分) |
| 小学校 | 植水小学校 約1620m(徒歩21分) |
| 中学校 | 植水中学校 約460m(徒歩6分) |
| その他利便施設1 | セブンイレブンさいたま中野林中郷店 約450m(徒歩6分) |
| その他利便施設2 | ファミリーマートさいたま三条店 約650m(徒歩9分) |
0120-031-631
0120-031-631
物件の売却をご検討の方は、 はやめの査定依頼がおすすめです!
買い替えをご検討の方はこちら0120-031-631

