さいたま市北区盆栽町
湘南新宿ライン(宇都宮~逗子) 土呂駅 徒歩5分
1SLDK
建物面積:91.34㎡
土地面積:75.43㎡
新築
5,190万円



| 物件種別 | 新築戸建 |
| 所在地 | GoogleMaps |
| 交通 | 湘南新宿ライン(宇都宮~逗子) 土呂駅 徒歩5分 |
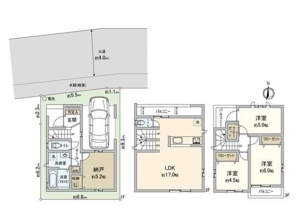
| 間取り | 3SLDK ※S・サービススペースは納戸です |
| 建物面積 | 102.26㎡(約30.93坪) |
| 土地面積 | 60.2㎡(約18.21坪) |
| 築年月 | 2026年02月築 |
■ おすすめポイント ━━━━━━━━━━━━━━━・・・・・ ○ 令和8年2月完成の新築戸建て ○ リビングが見渡せる対面式キッチン ○ 周辺環境充実 ・スーパー・コンビニ・ドラッグストアまで徒歩5分圏内 ■ 設備・仕様 ━━━━━━━━━━━━━━━・・・・・ ○ 全居室収納有 ○ LDK約17帖 ○ 閑静な住宅街
室内を内覧しているように物件を見学することができます。
| 所在地 | GoogleMaps |
| 価格 | 5,190万円 |
| 交通 | 湘南新宿ライン(宇都宮~逗子) 土呂駅 徒歩5分 |
| その他費用 | - |
| 間取り | 3SLDK ※S・サービススペースは納戸です |
| 建物面積 | 102.26㎡(約30.93坪) |
| 土地面積 | 60.2㎡(約18.21坪) |
| 築年月 | 2026年02月築 |
| 建物構造 | 木造3階建 |
| 現況 | 空家 |
| 駐車場 | 有 |
| 土地権利 | 所有権 |
| 地目 | 宅地 |
| 接道状況 | 北側: 約 4m (公道) |
| 建ぺい率 | 60% |
| 容積率 | 200% |
| 用途地域 | 第一種住居地域 |
| 都市計画 | 市街化区域 |
| 備考 | ※車庫面積9.93平米含む ※15m高度地区 |
| 引渡時期 | 即時 |
| 取引態様 | 仲介 |
| 更新日 | 2026年05月08日 |
| 次回更新予定 | 2026年05月22日 |
| 物件番号 | F5HBGA09 |
最新のAI技術を活用した相談サービスです。
お客様一人ひとりのニーズに合わせて最適な情報をご提供します。
リハウスAIチャットの詳しい説明はこちら
GoogleMaps
| 公園 | 富士見公園 約280m(徒歩4分) |
| 病院 | 大宮ほほえみクリニック 約130m(徒歩2分) |
| 小学校 | さいたま市立植竹小学校 約300m(徒歩4分) |
| 中学校 | さいたま市立植竹中学校 約700m(徒歩9分) |
| その他利便施設1 | ドラッグセイムス土呂駅前店 約250m(徒歩4分) |
| その他利便施設2 | さいたま市北区役所 約1400m(徒歩18分) |
| その他利便施設3 | 土呂西口郵便局 約400m(徒歩5分) |
三井不動産リアルティ株式会社
国土交通大臣(15)第777号
0120-031-631
0120-031-631
物件の売却をご検討の方は、 はやめの査定依頼がおすすめです!
買い替えをご検討の方はこちら0120-031-631

