三郷市高州2丁目
つくばエクスプレス 三郷中央駅 バス24分 高州四丁目 停歩6分
4LDK
建物面積:93.14㎡
土地面積:100.03㎡
2025年11月築(予定)
3,780万円



| 物件種別 | 新築戸建 |
| 所在地 | GoogleMaps |
| 交通 | つくばエクスプレス 三郷中央駅 徒歩21分 |
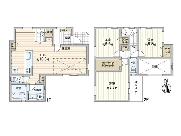
| 間取り | 3LDK |
| 建物面積 | 90.66㎡(約27.42坪) |
| 土地面積 | 83.73㎡(約25.32坪) |
| 築年月 | 2025年11月築(予定) |
返済計画を入力すると毎月のお支払い目安を表示できます
■おすすめポイント ━━━━━━━━━━━━━━━・・・・・ 〇 つくばエクスプレス「三郷中央」駅 徒歩21分 〇 令和7年11月完成予定の新築戸建 〇 土地面積:83.73平米(約25.32坪) 〇 建物面積:90.66平米(約27.42坪)の3LDK 〇 足元からお部屋を暖める床暖房(LD一部分) 〇 ゆとりある約18.3帖のLDK 〇 ご家族との対話が弾む対面式キッチン (食器洗浄乾燥機・浄水器付き) 〇 雨の日の洗濯にも便利な浴室暖房乾燥機 〇 WIC等、充実の収納スペース ■ライフインフォメーション ━━━━━━━━━━━━━━━・・・・・ 〇 田中ストアー 約120m 〇 セブンイレブン三郷新和3丁目店 約380m 〇 埼玉みさと総合リハビリテーション病院 約220m 〇 三郷市立鷹野小学校 約1390m 〇 三郷市立栄中学校 約870m
| 所在地 | GoogleMaps |
| 価格 | 3,780万円 |
| 交通 | つくばエクスプレス 三郷中央駅 徒歩21分 |
| その他費用 | - |
| 間取り | 3LDK |
| 建物面積 | 90.66㎡(約27.42坪) |
| 土地面積 | 83.73㎡(約25.32坪) |
| 築年月 | 2025年11月築(予定) |
| 建物構造 | 木造2階建 |
| 現況 | 未完成 |
| 駐車場 | 有 |
| 土地権利 | 所有権 |
| 地目 | 宅地 |
| 接道状況 | 東側: 約 5.5m (公道)、北側: 約 4m (私道) |
| 建ぺい率 | 60% |
| 容積率 | 200% |
| 用途地域 | 準工業地域 |
| 都市計画 | 市街化区域 |
| 建築確認番号 | 第BNV確済25-416号 |
| 備考 | 小学校・中学校までの距離は通学路ではございません。 |
| 引渡時期 | 相談 |
| 取引態様 | 仲介 |
| 更新日 | 2025年10月27日 |
| 次回更新予定 | 2025年11月10日 |
| 物件番号 | F77AGAFE |
GoogleMaps
| スーパー | 田中ストアー 約120m(徒歩2分) |
| 病院 | 埼玉みさと総合リハビリテーション病院 約220m(徒歩3分) |
| 小学校 | 三郷市立鷹野小学校 約1390m(徒歩18分) |
| 中学校 | 三郷市立栄中学校 約870m(徒歩11分) |
| その他利便施設1 | 三郷中央駅(首都圏新都市鉄道 つくばエクスプレス) 約1660m(徒歩21分) |
| その他利便施設2 | セブンイレブン三郷新和3丁目店 約380m(徒歩5分) |
0120-984-331
0120-984-331
物件の売却をご検討の方は、 はやめの査定依頼がおすすめです!
買い替えをご検討の方はこちら0120-984-331
