相模原市南区相模台4丁目
小田急電鉄小田原線 小田急相模原駅 徒歩17分
3LDK
建物面積:100.6㎡
土地面積:105.3㎡
2026年09月築(予定)
3,298万円



| 物件種別 | 新築戸建 |
| 所在地 | GoogleMaps |
| 交通 | |
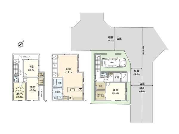
| 間取り | 3SLDK ※S・サービススペースは納戸です |
| 建物面積 | 117.16㎡(約35.44坪) |
| 土地面積 | 67.09㎡(約20.29坪) |
| 築年月 | 2025年12月築 |
■ おすすめポイント ━━━━━━━━━━━━━━━・・・ ○ 土地面積67.09平米 建物面積117.16平米の3SLDKの新築戸建 ○ 角地につき、開放感あり ○ 2面バルコニー・全居室2面採光につき、通風良好 ○ 全居室収納付き ○ 約18.1帖LDK&対面式キッチン ○ あると便利なパントリー・約3帖のホール収納・WIC・約4.4帖の納戸(サービススペース) ○ 公園、小学校が徒歩6分圏内 子育て環境良好 ○ 生活利便性良好 ○ 駐車スペース1台分(車種による) ○ 省エネ性能評価 BELS取得 ■ 三井のリハウス相模大野センターへお車でご来店いただく場合 ━━━━━━━━━━━━━━━・・・ ・ボーノ相模大野内にある【タイムズ相模原市営相模大野駅西側自動車駐車場】もしくは ・行幸通り沿いにある【タイムズ相模原市営相模大野立体駐車場】をご利用ください。 (入庫されたお時間確認のため、発行された駐車券はお手数ですが店舗までお持ちください) お帰りの際【駐車サービス券】をお渡しいたします。
| 所在地 | GoogleMaps |
| 価格 | 3,298万円 |
| 交通 | |
| その他費用 | - |
| 間取り | 3SLDK ※S・サービススペースは納戸です |
| 建物面積 | 117.16㎡(約35.44坪) |
| 土地面積 | 67.09㎡(約20.29坪) |
| 築年月 | 2025年12月築 |
| 建物構造 | 木造3階建 |
| 現況 | 空家 |
| 駐車場 | - |
| 土地権利 | 所有権 |
| 地目 | 宅地 |
| 接道状況 | - |
| 建ぺい率 | 80% |
| 容積率 | 137% |
| 用途地域 | 第一種中高層住居専用地域 |
| 都市計画 | 市街化区域 |
| 備考 | 建物面積に車庫部分11.59平米含む |
| 引渡時期 | 相談 |
| 取引態様 | 仲介 |
| 更新日 | 2026年05月07日 |
| 次回更新予定 | 2026年05月21日 |
| 物件番号 | F80AGBAB |
最新のAI技術を活用した相談サービスです。
お客様一人ひとりのニーズに合わせて最適な情報をご提供します。
リハウスAIチャットの詳しい説明はこちら
GoogleMaps
| スーパー | トップ相模台店 約300m(徒歩4分) |
| 公園 | 若草公園 約320m(徒歩4分) |
| 病院 | 北村ファミリークリニック 約400m(徒歩5分) |
| 小学校 | 相模原市立若草小学校 約470m(徒歩6分) |
| 中学校 | 相模原市立若草中学校 約230m(徒歩3分) |
| その他利便施設1 | クリエイトエス・ディー相模台店 約830m(徒歩11分) |
| その他利便施設2 | 相模原双葉郵便局 約1080m(徒歩14分) |
| その他利便施設3 | 相模台公園テニス場 約400m(徒歩5分) |
| その他利便施設4 | セブンイレブン相模原相模台6丁目店 約180m(徒歩3分) |
三井不動産リアルティ株式会社
国土交通大臣(15)第777号
0120-944-131
0120-944-131
物件の売却をご検討の方は、 はやめの査定依頼がおすすめです!
買い替えをご検討の方はこちら0120-944-131

