相模原市南区若松3丁目
小田急電鉄小田原線 相模大野駅 徒歩19分
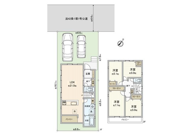
4LDK
建物面積:104.35㎡
土地面積:140.29㎡
2026年08月築(予定)
4,990万円



| 物件種別 | 新築戸建 |
| 所在地 | GoogleMaps |
| 交通 | |
| 間取り | 4LDK |
| 建物面積 | 101.02㎡(約30.55坪) |
| 土地面積 | 106.84㎡(約32.31坪) |
| 築年月 | 2026年05月築(予定) |
■ おすすめポイント ━━━━━━━━━━━━━━━・・・ ○ 土地面積106.84平米 建物面積101.02平米の4LDKの新築戸建 ○ 小田急小田原線・小田急江ノ島線「相模大野」駅 徒歩23分 ○ 駅まで平坦 ○ 南東向き、全居室2面採光につき、陽当り・通風良好 ○ 第一種低層住居専用地域 ○ 全居室収納付 ○ 大容量のパントリー収納 ○ 広々LDK約21帖 ○ 会話が弾む対面式キッチン ○ 駐車スペース2台分(車種による) ○ 公園・小学校まで、徒歩7分圏内 子育て環境良好 ○ スーパー・コンビニ・ドラッグストアまで、徒歩8分圏内 ■ 三井のリハウス相模大野センターへお車でご来店いただく場合 ━━━━━━━━━━━━━━━・・・ ・ボーノ相模大野内にある【タイムズ相模原市営相模大野駅西側自動車駐車場】もしくは ・行幸通り沿いにある【タイムズ相模原市営相模大野立体駐車場】をご利用ください。 (入庫されたお時間確認のため、発行された駐車券はお手数ですが店舗までお持ちください) お帰りの際【駐車サービス券】をお渡しいたします。
| 所在地 | GoogleMaps |
| 価格 | 4,990万円 |
| 交通 | |
| その他費用 | - |
| 間取り | 4LDK |
| 建物面積 | 101.02㎡(約30.55坪) |
| 土地面積 | 106.84㎡(約32.31坪) |
| 築年月 | 2026年05月築(予定) |
| 建物構造 | 木造2階建 |
| 現況 | 未完成 |
| 駐車場 | - |
| 土地権利 | 所有権 |
| 地目 | 宅地 |
| 接道状況 | 北西側: 約 4.4m (公道) |
| 建ぺい率 | 50% |
| 容積率 | 100% |
| 用途地域 | 第一種低層住居専用地域 |
| 都市計画 | 市街化区域 |
| 建築確認番号 | 第25KAK確02212号 |
| 備考 | - |
| 引渡時期 | 相談 |
| 取引態様 | 仲介 |
| 更新日 | 2026年04月13日 |
| 次回更新予定 | 2026年04月27日 |
| 物件番号 | F80BGA1D |
最新のAI技術を活用した相談サービスです。
お客様一人ひとりのニーズに合わせて最適な情報をご提供します。
リハウスAIチャットの詳しい説明はこちら
GoogleMaps
| スーパー | 新鮮市場なかや 相模原大沼店 約500m(徒歩7分) |
| スーパー | ライフ相模原若松店 約510m(徒歩7分) |
| 公園 | 若松東通り公園 約250m(徒歩4分) |
| 病院 | 窪田医院 約360m(徒歩5分) |
| 小学校 | 相模原市立大沼小学校 約550m(徒歩7分) |
| 中学校 | 相模原市立大野南中学校 約820m(徒歩11分) |
| その他利便施設1 | 相模大野駅(小田急小田原線・小田急江ノ島線) 約1820m(徒歩23分) |
| その他利便施設2 | クリエイトエス・ディー相模原東大沼店 約580m(徒歩8分) |
| その他利便施設3 | ファミリーマート相模原若松三丁目店 約520m(徒歩7分) |
| その他利便施設4 | 相模原若松郵便局 約480m(徒歩6分) |
三井不動産リアルティ株式会社
国土交通大臣(15)第777号
0120-944-131
0120-944-131
物件の売却をご検討の方は、 はやめの査定依頼がおすすめです!
買い替えをご検討の方はこちら0120-944-131

