相模原市南区大野台4丁目
横浜線 古淵駅 バス12分 大野台四丁目 停歩2分
4LDK
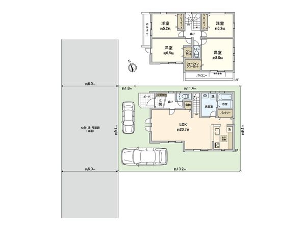
建物面積:101.19㎡
土地面積:100.38㎡
2026年07月築(予定)
5,199万円



| 物件種別 | 新築戸建 |
| 所在地 | GoogleMaps |
| 交通 | |
| 間取り | 4LDK |
| 建物面積 | 108.47㎡(約32.81坪) |
| 土地面積 | 121.24㎡(約36.67坪) |
| 築年月 | 2026年05月築 |
-物件のおすすめポイント- ▼立地 ・JR横浜線「淵野辺」駅 徒歩24分 もしくはバス11分「大野台中央」停歩3分 ▼建物の特徴 ・約121平米の整形地 ・駐車スペース2台分 ※車種による ・収納豊富な4LDK・新築戸建 ▼お部屋の特徴 ・約20.7帖のゆとりあるLDK 一部アクセントクロスを用いたオシャレな内装です ・家族の会話が弾むリビング階段 ・パントリー付きのキッチン 対面式キッチンのため、お料理をしながらお部屋全体を見渡せます ・WIC含む全居室収納 ・2面バルコニーのため日照・通風良好 ・前面道路は約6.0mと開放感がございます ▼設備 ・TVモニター付きインターホン ・手すり付き階段 ・全面フローリング ・24時間換気 ・一坪UB ・浴室乾燥機 ・浄水器 ・ビルトイン食洗機 ・ハンドシャワー付洗面台 ・ウォシュレット付トイレ ほか ■ 三井のリハウス相模大野センターへお車でご来店いただく場合 ━━━━━━━━━━━━━━━・・・・・ ・ボーノ相模大野内にある【タイムズ相模原市営相模大野駅西側自動車駐車場】もしくは ・行幸通り沿いにある【タイムズ相模原市営相模大野立体駐車場】をご利用ください。 (入庫されたお時間確認のため、発行された駐車券はお手数ですが店舗までお持ちください) お帰りの際【駐車サービス券】をお渡しいたします。
| 所在地 | GoogleMaps |
| 価格 | 5,199万円 |
| 交通 | |
| その他費用 | - |
| 間取り | 4LDK |
| 建物面積 | 108.47㎡(約32.81坪) |
| 土地面積 | 121.24㎡(約36.67坪) |
| 築年月 | 2026年05月築 |
| 建物構造 | 木造2階建 |
| 現況 | 空家 |
| 駐車場 | - |
| 土地権利 | 所有権 |
| 地目 | 宅地 |
| 接道状況 | 北西側: 約 6m (公道) |
| 建ぺい率 | 60% |
| 容積率 | 200% |
| 用途地域 | 第二種中高層住居専用地域 |
| 都市計画 | 市街化区域 |
| 備考 | - |
| 引渡時期 | 相談 |
| 取引態様 | 仲介 |
| 更新日 | 2026年05月30日 |
| 次回更新予定 | 2026年06月13日 |
| 物件番号 | F80BGA68 |
最新のAI技術を活用した相談サービスです。
お客様一人ひとりのニーズに合わせて最適な情報をご提供します。
リハウスAIチャットの詳しい説明はこちら
GoogleMaps
| 公園 | 大野台なかよし公園 約500m(徒歩7分) |
| 小学校 | 相模原市立大野台中央小学校 約930m(徒歩12分) |
| 中学校 | 相模原市立由野台中学校 約560m(徒歩7分) |
| その他利便施設1 | セブンイレブン相模原大野台3丁目店 約280m(徒歩4分) |
| その他利便施設2 | ファミリーマート松が丘二丁目店 約680m(徒歩9分) |
| その他利便施設3 | クリエイトS・D相模原大野台店 約780m(徒歩10分) |
| その他利便施設4 | 相模原大野台郵便局 約570m(徒歩8分) |
三井不動産リアルティ株式会社
国土交通大臣(15)第777号
0120-944-131
0120-944-131
物件の売却をご検討の方は、 はやめの査定依頼がおすすめです!
買い替えをご検討の方はこちら0120-944-131

