相模原市中央区由野台1丁目
横浜線 淵野辺駅 徒歩15分
3LDK
建物面積:87.76㎡
土地面積:88.05㎡
2026年09月築(予定)
4,799万円



| 物件種別 | 新築戸建 |
| 所在地 | GoogleMaps |
| 交通 | 横浜線 淵野辺駅 徒歩15分 |
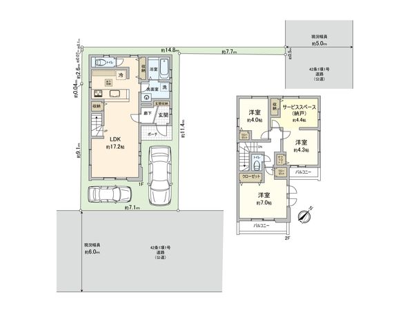
| 間取り | 3SLDK ※S・サービススペースは納戸です |
| 建物面積 | 88.14㎡(約26.66坪) |
| 土地面積 | 89㎡(約26.92坪) |
| 築年月 | 2026年09月築(予定) |
-物件のおすすめポイント- ▼立地 ・JR横浜線「淵野辺」駅 徒歩15分 ・第一種低層住居専用地域内の閑静な住宅街 ▼建物の特徴 ・3LDK新築戸建 ・前面道路は約6mと開放感がございます ・駐車2台可 ※車種による ▼お部屋の特徴 ・約17.2帖のLDK 家族の会話が弾むリビング階段です ・キッチンを折下天井にすることで空間にメリハリをつけ、開放感を演出してくれます ・対面式キッチンのため、お料理をしながらお部屋全体を見渡せます ・全居室収納 ・主寝室は約8.7帖 間仕切り壁を設けることで2部屋としてもご利用可能です ※別途費用あり ・南面バルコニーのため日照良好 ▼設備 ・24時間換気 ・浴室乾燥機 ・一坪UB ・浄水器 ・ビルトイン食洗機 ・ハンドシャワー付き洗面台 ・ビルトイン食洗機 ・TVモニター付きインターホン ・手すり付き階段 ・床下収納 ・全面フローリング ■ 三井のリハウス相模大野センターへお車でご来店いただく場合 ━━━━━━━━━━━━━━━・・・・・ ・ボーノ相模大野内にある【タイムズ相模原市営相模大野駅西側自動車駐車場】もしくは ・行幸通り沿いにある【タイムズ相模原市営相模大野立体駐車場】をご利用ください。 (入庫されたお時間確認のため、発行された駐車券はお手数ですが店舗までお持ちください) お帰りの際【駐車サービス券】をお渡しいたします。
| 所在地 | GoogleMaps |
| 価格 | 4,799万円 |
| 交通 | 横浜線 淵野辺駅 徒歩15分 |
| その他費用 | - |
| 間取り | 3SLDK ※S・サービススペースは納戸です |
| 建物面積 | 88.14㎡(約26.66坪) |
| 土地面積 | 89㎡(約26.92坪) |
| 築年月 | 2026年09月築(予定) |
| 建物構造 | 木造2階建 |
| 現況 | 未完成 |
| 駐車場 | - |
| 土地権利 | 所有権 |
| 地目 | 宅地 |
| 接道状況 | 南東側: 約 6m (公道)、北東側: 約 5m (公道) |
| 建ぺい率 | 50% |
| 容積率 | 100% |
| 用途地域 | 第一種低層住居専用地域 |
| 都市計画 | 市街化区域 |
| 建築確認番号 | 第25UDⅠ1W建14452号 |
| 備考 | - |
| 引渡時期 | 相談 |
| 取引態様 | 仲介 |
| 更新日 | 2026年04月27日 |
| 次回更新予定 | 2026年05月11日 |
| 物件番号 | F80BGA7F |
最新のAI技術を活用した相談サービスです。
お客様一人ひとりのニーズに合わせて最適な情報をご提供します。
リハウスAIチャットの詳しい説明はこちら
GoogleMaps
| スーパー | ビッグ・エー 相模原共和店 約640m(徒歩8分) |
| 公園 | 由野台第3公園 約290m(徒歩4分) |
| 小学校 | 相模原市立共和小学校 約300m(徒歩4分) |
| 中学校 | 相模原市立由野台中学校 約900m(徒歩12分) |
| その他利便施設1 | セブンイレブン相模原大野台3丁目店 約880m(徒歩11分) |
| その他利便施設2 | ツルハドラッグ相模原由野台店 約450m(徒歩6分) |
| その他利便施設3 | クリエイトS・D相模原大野台店 約860m(徒歩11分) |
| その他利便施設4 | 相模原大野台郵便局 約460m(徒歩6分) |
三井不動産リアルティ株式会社
国土交通大臣(15)第777号
0120-944-131
0120-944-131
物件の売却をご検討の方は、 はやめの査定依頼がおすすめです!
買い替えをご検討の方はこちら0120-944-131

